H&Iビル9階の賃貸情報
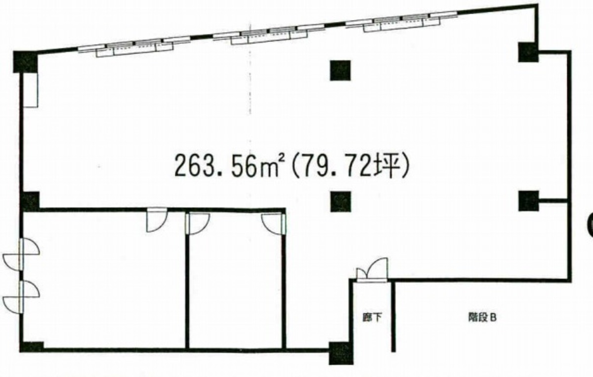
79.72 坪 (263.54m²)
※このサイトに記載がある賃貸条件は、敷金・保証金などの預かり金を除き、別途消費税がかかります。
H&Iビルの建物概要
設備詳細
| 空調 | 個別空調 |
|---|---|
| トイレ | - |
| 床仕様 | - |
| エレベータ | 1 基 / エレベーター有 |
| 駐車場設備 | 空有 |
| その他 | 大型ビル |
H&Iビルについて
H&Iビルは、東京都新宿区新宿5丁目に位置する質の高いオフィスビルです。この物件は1989年に竣工し、新耐震基準に適合した鉄骨鉄筋コンクリート造りの建築物で、オフィスとしての安全性と安定性を兼ね備えています。全9階建てのこのビルは、基準階約257坪という広々としたオフィススペースを提供しており、大型の企業でも快適に業務を行うことができます。 立地に関して、H&Iビルは新宿三丁目駅から徒歩4分というアクセスの良さを誇ります。また、西武新宿駅や新宿駅も徒歩圏内にあり、東京都内はもちろん、都外への移動も容易です。靖国通りから一本入った場所に位置しており、周辺は商業施設や飲食店が豊富で、ビジネスの機会が広がります。隣接する花園神社の存在は、都心の喧騒から一歩離れた静かな環境を提供し、働く人々にとっての良好な職場環境を形成しています。 ビルの設備面においても、H&Iビルは最新の設備を完備しています。ビル内には駐車場があり、利用可能なスペースについてはお問い合わせいただくことができます。また、エレベーターは4基設置されており、ビル内の移動もスムーズです。セキュリティ面では、機械警備と有人警備を併用しており、入居企業と従業員の安全を確保しています。 H&Iビルの特徴としては、耐震性に優れた構造、優れたアクセスの立地、広々としたオフィススペース、最新の設備、そして安全なセキュリティシステムが挙げられます。これらの特性は、ビジネスの成長と効率的な業務運営に欠かせない要素を提供します。新宿という東京を代表するビジネスエリアにおいて、多くの企業が求める条件を満たすH&Iビルは、企業の拠点として理想的な選択です。
H&Iビルのこだわり
自分で探すより問い合わせる方が早いことがあります
WEB非公開物件があるから
オーナー様のご希望により「WEBでは非公開」にしている物件があります。 それらはWEBでいくら検索しても見つかりません。 先ずは条件などお知らせ頂けましたら非公開物件含め ピッタリのオフィスをご提案させて頂きます。 無理なお勧めはしておりませんので、お気軽にお問い合わせください。
対面でのご相談も受け付けております
ご来店も歓迎です
オフィス移転は社内・社外ともに非公開に行われることが殆どです。そのためアットオフィスでは、基本的に訪問によるコンサルティングを行っておりますが、ご来店の相談も歓迎です。お一人おひとりに親身にご対応させて頂きたい為、要予約とさせて頂いております。ご来店の際は先ずは下記よりご予約下さい。
新宿/西新宿エリアでH&Iビルに似た条件の物件
読込中...
H&Iビルと同じ最寄駅の物件
読込中...
| 取扱様態 | 仲介 |
|---|---|
| 取扱会社 | 株式会社 アットオフィス |