※このサイトに記載がある賃貸条件は、敷金・保証金などの預かり金を除き、別途消費税がかかります。
物件情報
設備詳細
| 空調 | - |
|---|---|
| トイレ | - |
| 床仕様 | - |
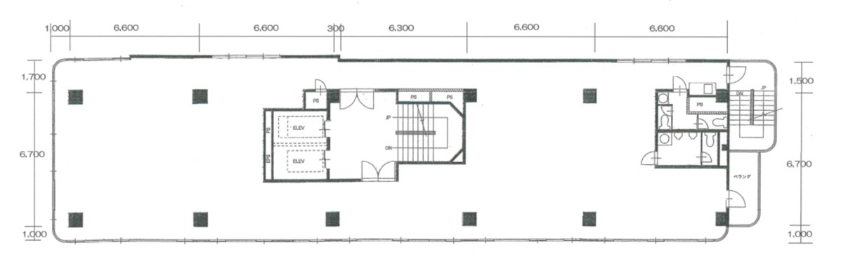
| エレベータ | 3 基 |
| 駐車場設備 | - |
| その他 | 機械警備 / 24時間利用可 / 新耐震基準 |
エクレ新宿ビルの賃貸オフィス・事務所に関するお問い合わせ
エクレ新宿ビルについて
エクレ新宿へようこそ!新宿3丁目、活気あふれるこの地に位置する当ビルは、1990年に竣工し、新耐震基準に対応した鉄骨鉄筋コンクリート造りの13階建てオフィスビルです。新宿三丁目駅からわずか徒歩2分、新宿駅からも徒歩7分という圧倒的なアクセスの良さで、ビジネスの拠点として理想的な立地条件を提供しております。 このビルの特徴は、その設備の充実にあります。3基のエレベーターはスムーズな移動を保証し、個別空調システムによって、各テナントが快適な環境を自由にコントロールできます。さらに、男女別のトイレ、給湯スペース、個室トイレなど、快適なオフィス環境をサポートする設備が整っており、24時間利用可能なセキュリティシステムにより、安心して働ける環境がここにあります。 居抜き物件としても提供されることがあり、初期費用の削減にも繋がります。店舗やクリニックなど、様々なビジネスニーズに対応するフレキシブルなレイアウトを実現しています。また、ビルの外観はダークブラウンの落ち着いた色合いで、重厚感あるエントランスは訪れる人々に良い印象を与えます。 周辺環境も魅力の一つです。新宿三丁目駅周辺には、飲食店や専門店、コンビニが豊富にあり、仕事後のショッピングや食事にも困りません。また、伊勢丹新宿店や新宿マルイなど大型ショッピングモールも近く、ビジネスだけでなくプライベートも充実させることができます。 エクレ新宿は、その立地、設備、周辺環境が絶妙に融合した、ビジネスにおいて最適な環境を提供するオフィスビルです。アクセスの良さと快適なオフィスライフを求めるすべての方々に、是非ともおすすめしたい物件です。エクレ新宿で、新しいビジネスの成功を一緒に築き上げましょう。
エクレ新宿ビルのこだわり
自分で探すより問い合わせる方が早いことがあります
WEB非公開物件があるから
オーナー様のご希望により「WEBでは非公開」にしている物件があります。 それらはWEBでいくら検索しても見つかりません。 先ずは条件などお知らせ頂けましたら非公開物件含め ピッタリのオフィスをご提案させて頂きます。 無理なお勧めはしておりませんので、お気軽にお問い合わせください。
対面でのご相談も受け付けております
ご来店も歓迎です
オフィス移転は社内・社外ともに非公開に行われることが殆どです。そのためアットオフィスでは、基本的に訪問によるコンサルティングを行っておりますが、ご来店の相談も歓迎です。お一人おひとりに親身にご対応させて頂きたい為、要予約とさせて頂いております。ご来店の際は先ずは下記よりご予約下さい。
募集終了のテナント区画
| 階数 | 坪数 | 賃料 + 共益費 | 敷金/礼金敷金 礼金 | 検討 |
|---|---|---|---|---|
| B1階 | 11.58坪 (38.28m²) | 募集終了 | - | - |
| B1階 | 18.38坪 (60.75m²) | 募集終了 | - | - |
| 1階 | 33.01坪 (109.12m²) | 募集終了 | - | - |
| 1階 | 13.16坪 (43.5m²) | 募集終了 | - | - |
| 1階 | 11.15坪 (36.85m²) | 募集終了 | - | - |
| 1階 | 19.65坪 (64.96m²) | 募集終了 | - | - |
| 2階 | 30.82坪 (101.88m²) | 募集終了 | - | - |
| 2階 | 16.61坪 (54.9m²) | 募集終了 | - | - |
| 3階 | 37.37坪 (123.54m²) | 募集終了 | - | - |
| 3階 | 20.41坪 (67.49m²) | 募集終了 | - | - |
| 3階 | 12.77坪 (42.21m²) | 募集終了 | - | - |
| 3階 | 10.04坪 (33.2m²) | 募集終了 | - | - |
| 3階 | 15.37坪 (50.81m²) | 募集終了 | - | - |
| 4階 | 37.02坪 (122.38m²) | 募集終了 | - | - |
| 4階 | 17.8坪 (58.84m²) | 募集終了 | - | - |
| 4階 | 12.95坪 (42.81m²) | 募集終了 | - | - |
| 5階 | 9.8坪 (32.4m²) | 募集終了 | - | - |
| 5階 | 35.75坪 (118.18m²) | 募集終了 | - | - |
| 5階 | 9.57坪 (31.63m²) | 募集終了 | - | - |
| 5階 | 7.44坪 (24.59m²) | 募集終了 | - | - |
| 5階 | 37.37坪 (123.53m²) | 募集終了 | - | - |
| 6階 | 38.46坪 (127.14m²) | 募集終了 | - | - |
| 6階 | 37.1坪 (122.64m²) | 募集終了 | - | - |
| 7階 | 30.75坪 (101.65m²) | 募集終了 | - | - |
| 7階 | 36.11坪 (119.37m²) | 募集終了 | - | - |
| 8階 | 79.75坪 (263.65m²) | 募集終了 | - | - |
| 9階 | 84.41坪 (279.04m²) | 募集終了 | - | - |
| 10階 | 84.41坪 (279.04m²) | 募集終了 | - | - |
| 11階 | 84.41坪 (279.04m²) | 募集終了 | - | - |
| 11階 | 19.55坪 (64.63m²) | 募集終了 | - | - |
| 11階 | 16.83坪 (55.65m²) | 募集終了 | - | - |
| 12階 | 64.65坪 (213.71m²) | 募集終了 | - | - |
| 13階 | 63.74坪 (210.71m²) | 募集終了 | - | - |
読込中...
新宿/西新宿エリアでエクレ新宿ビルに似た条件の物件
読込中...
| 取扱様態 | 仲介 |
|---|---|
| 取扱会社 | 株式会社 アットオフィス |