エクレ新宿ビル8階の賃貸情報
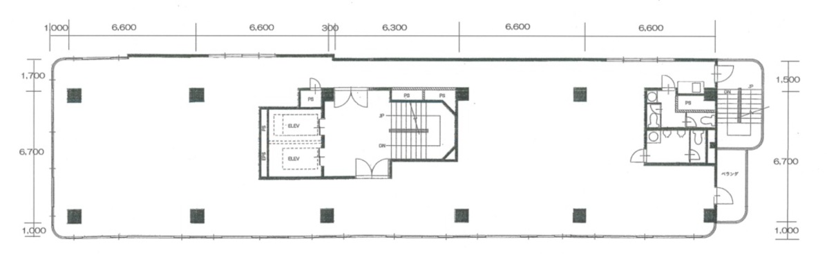
79.75 坪 (263.65m²)
※このサイトに記載がある賃貸条件は、敷金・保証金などの預かり金を除き、別途消費税がかかります。
エクレ新宿ビルの建物概要
設備詳細
| 空調 | 個別空調 |
|---|---|
| トイレ | - |
| 床仕様 | OA対応床(フリーアクセス) |
| エレベータ | 3 基 |
| 駐車場設備 | - |
| その他 | 機械警備 / 24時間利用可 / 新耐震基準 / クリニック / フリーレント / 東京賃料が坪11000円以下 |
部屋の雰囲気
室内写真1
室内写真2
室内写真3
室内写真4
トイレ
水周り
エクレ新宿ビル8階の賃貸オフィス・事務所に関するお問い合わせ
エクレ新宿ビルについて
エクレ新宿へようこそ!新宿3丁目、活気あふれるこの地に位置する当ビルは、1990年に竣工し、新耐震基準に対応した鉄骨鉄筋コンクリート造りの13階建てオフィスビルです。新宿三丁目駅からわずか徒歩2分、新宿駅からも徒歩7分という圧倒的なアクセスの良さで、ビジネスの拠点として理想的な立地条件を提供しております。 このビルの特徴は、その設備の充実にあります。3基のエレベーターはスムーズな移動を保証し、個別空調システムによって、各テナントが快適な環境を自由にコントロールできます。さらに、男女別のトイレ、給湯スペース、個室トイレなど、快適なオフィス環境をサポートする設備が整っており、24時間利用可能なセキュリティシステムにより、安心して働ける環境がここにあります。 居抜き物件としても提供されることがあり、初期費用の削減にも繋がります。店舗やクリニックなど、様々なビジネスニーズに対応するフレキシブルなレイアウトを実現しています。また、ビルの外観はダークブラウンの落ち着いた色合いで、重厚感あるエントランスは訪れる人々に良い印象を与えます。 周辺環境も魅力の一つです。新宿三丁目駅周辺には、飲食店や専門店、コンビニが豊富にあり、仕事後のショッピングや食事にも困りません。また、伊勢丹新宿店や新宿マルイなど大型ショッピングモールも近く、ビジネスだけでなくプライベートも充実させることができます。 エクレ新宿は、その立地、設備、周辺環境が絶妙に融合した、ビジネスにおいて最適な環境を提供するオフィスビルです。アクセスの良さと快適なオフィスライフを求めるすべての方々に、是非ともおすすめしたい物件です。エクレ新宿で、新しいビジネスの成功を一緒に築き上げましょう。
自分で探すより問い合わせる方が早いことがあります
WEB非公開物件があるから
オーナー様のご希望により「WEBでは非公開」にしている物件があります。 それらはWEBでいくら検索しても見つかりません。 先ずは条件などお知らせ頂けましたら非公開物件含め ピッタリのオフィスをご提案させて頂きます。 無理なお勧めはしておりませんので、お気軽にお問い合わせください。
対面でのご相談も受け付けております
ご来店も歓迎です
オフィス移転は社内・社外ともに非公開に行われることが殆どです。そのためアットオフィスでは、基本的に訪問によるコンサルティングを行っておりますが、ご来店の相談も歓迎です。お一人おひとりに親身にご対応させて頂きたい為、要予約とさせて頂いております。ご来店の際は先ずは下記よりご予約下さい。
新宿/西新宿エリアでエクレ新宿ビルに似た条件の物件
読込中...
エクレ新宿ビルと同じ最寄駅の物件
読込中...
| 取扱様態 | 仲介 |
|---|---|
| 取扱会社 | 株式会社 アットオフィス |