※このサイトに記載がある賃貸条件は、敷金・保証金などの預かり金を除き、別途消費税がかかります。
物件情報
設備詳細
| 空調 | 個別空調 |
|---|---|
| トイレ | 男女別トイレ室外 |
| 床仕様 | OA対応床(フリーアクセス) |
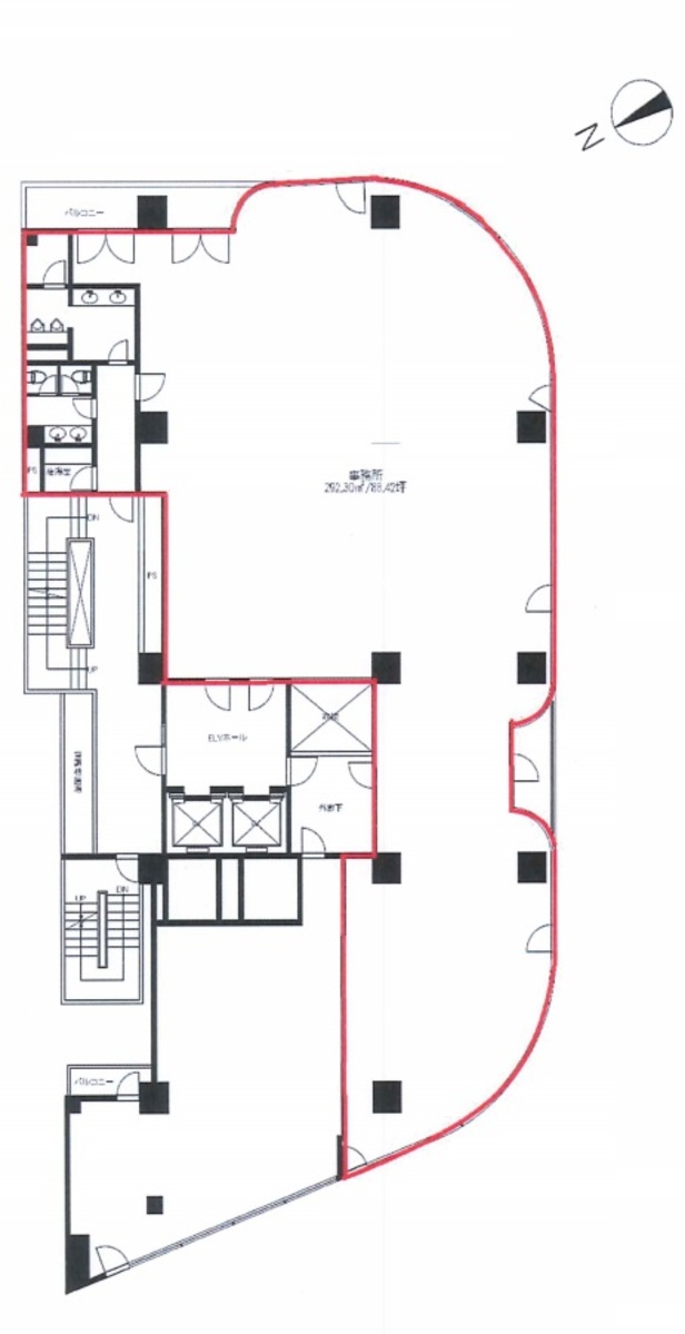
| エレベータ | 2 基 |
| 駐車場設備 | 近隣有 |
| その他 | 機械警備 / 24時間利用可 / 光ファイバー / オートロック / 新耐震基準 / クリニック / 店舗可(飲食不可) / スケルトン |
アコード新宿の賃貸オフィス・事務所に関するお問い合わせ
アコード新宿について
アコード新宿ビルは、東京都新宿区新宿2丁目に位置する賃貸オフィスビルであり、1991年に竣工された10階建ての建物です。このビルの最大の魅力は、新宿三丁目駅から徒歩1分という優れたアクセス性にあります。また、新宿御苑前駅からも徒歩6分の距離にあり、新宿の中心部に位置しながらも、公共交通機関を利用しやすい環境にある点が特筆されます。 建物は鉄骨鉄筋コンクリート造りであり、耐震性に優れると同時に、2基のエレベーターを備えております。これにより、高い機能性と利便性を兼ね備えたオフィス環境を提供します。オフィスフロアはOAフロアを採用し、ケーブル類を床下に収納することで、すっきりとした職場環境を実現しています。また、個別空調システムにより、各テナントが快適な室温を自由にコントロールできる点も魅力の一つです。 通信設備に関しても、高速通信を支える光ファイバーを導入しており、ビジネスの迅速な情報交換をサポートします。セキュリティ面では、機械警備システムによる安全管理を行っており、テナント企業に安心してご利用いただける環境を提供しています。 アコード新宿ビルは、店舗やクリニックなどの多様なビジネスニーズに対応可能な物件としても設計されており、24時間利用可能な点や、居抜き物件としての提供が可能な点も、コスト削減と運営の効率化を図る企業にとって大きなメリットとなります。 立地条件としては、新宿御苑や商業施設が近隣に多数存在し、ビジネスだけでなく社員の生活利便性も大いに向上させることができるでしょう。ビル周辺には飲食店やコンビニエンスストアが豊富にあるため、ランチタイムや仕事終わりの利用に便利です。 結論として、アコード新宿ビルは、優れた立地、高機能なオフィス設備、そしてビジネスニーズに応える柔軟な物件構成により、多様な企業にとって理想的なオフィス選択肢を提供します。新宿というビジネスの中心地で、効率的かつ快適なオフィス環境を求める企業にとって、アコード新宿ビルは最適な選択と言えるでしょう。
アコード新宿のこだわり
自分で探すより問い合わせる方が早いことがあります
WEB非公開物件があるから
オーナー様のご希望により「WEBでは非公開」にしている物件があります。 それらはWEBでいくら検索しても見つかりません。 先ずは条件などお知らせ頂けましたら非公開物件含め ピッタリのオフィスをご提案させて頂きます。 無理なお勧めはしておりませんので、お気軽にお問い合わせください。
対面でのご相談も受け付けております
ご来店も歓迎です
オフィス移転は社内・社外ともに非公開に行われることが殆どです。そのためアットオフィスでは、基本的に訪問によるコンサルティングを行っておりますが、ご来店の相談も歓迎です。お一人おひとりに親身にご対応させて頂きたい為、要予約とさせて頂いております。ご来店の際は先ずは下記よりご予約下さい。
募集終了のテナント区画
| 階数 | 坪数 | 賃料 + 共益費 | 敷金/礼金敷金 礼金 | 検討 |
|---|---|---|---|---|
| 2階 | 23.76坪 (78.55m²) | 募集終了 | - | - |
| 4階 | 23.94坪 (79.17m²) | 募集終了 | - | - |
| 6階 | 89.35坪 (295.38m²) | 募集終了 | - | - |
| 7階 | 89.35坪 (295.37m²) | 募集終了 | - | - |
| 9-10階 | 28.5坪 (94.24m²) | 募集終了 | - | - |
読込中...
新宿/西新宿エリアでアコード新宿に似た条件の物件
読込中...
| 取扱様態 | 仲介 |
|---|---|
| 取扱会社 | 株式会社 アットオフィス |