新宿第7葉山ビル4階の賃貸情報
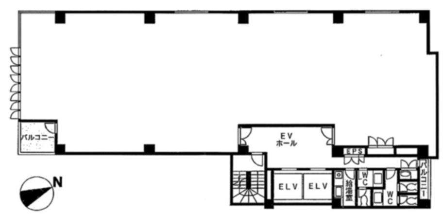
76.75 坪 (253.72m²)
※このサイトに記載がある賃貸条件は、敷金・保証金などの預かり金を除き、別途消費税がかかります。
新宿第7葉山ビルの建物概要
設備詳細
| 空調 | 個別空調 |
|---|---|
| トイレ | 男女別トイレ室外 |
| 床仕様 | OA対応床(フリーアクセス) |
| エレベータ | 2 基 |
| 駐車場設備 | 空有 |
| その他 | 機械警備 / 24時間利用可 / 光ファイバー / オートロック / 新耐震基準 / 居抜き |
新宿第7葉山ビルについて
新宿区の中心に位置する新宿第七葉山ビルは、都市の活気あるライフスタイルとビジネスの中心地であることの両方を提供する、1989年竣工の耐震性に優れたオフィスビルです。新宿三丁目駅からわずか徒歩3分の距離にあり、新宿御苑前駅や新宿駅も容易にアクセス可能なこのビルは、3駅以上利用できる抜群の立地条件を誇ります。その立地は、ビジネスにおけるアクセシビリティと都市の便利さを兼ね備えています。 新宿第七葉山ビルは、10階建てで基準階約76坪の広さを提供しており、OAフロアを完備した2650mmの高い天井が特徴です。これにより、広々とした室内空間が確保され、多様なオフィスレイアウトが可能となっています。各フロアには男女別のトイレが設置されており、24時間利用可能なセキュリティシステムにより、安心して働くことができます。 ビル内には月極駐車場があり、エレベーターは2基設置されています。これにより、来訪者の快適な移動が保証されます。また、ビルのエントランスは黒い御影石で装飾されており、訪れる人々に対して高級感と重厚感を与えます。このような細部にわたる配慮は、ビルに入居する企業のイメージ向上に寄与します。 立地の面では、新宿第七葉山ビルは花園通り沿いに位置し、周辺には飲食店やコンビニが多数存在します。これにより、日々のランチやちょっとした買い物にも困らない利便性の高い環境が提供されます。また、新宿御苑前駅や新宿三丁目駅の近くにあるため、都心へのアクセスも容易で、ビジネスの拠点として理想的です。 セキュリティ面では、機械警備システムと夜間オートロックシステムが導入されており、入居企業とその従業員の安全を守ります。また、光ケーブル対応のオフィスは、最先端のビジネスニーズにも応えることができる設備を整えています。 新宿第七葉山ビルは、その優れた耐震性、便利な立地、充実した設備、そして安全性の高さにより、新宿区でビジネスを行う企業にとって魅力的な選択肢です。立地の利便性と快適なオフィス環境が、企業の成長と従業員の満足度向上に貢献することでしょう。
新宿第7葉山ビルのこだわり
自分で探すより問い合わせる方が早いことがあります
WEB非公開物件があるから
オーナー様のご希望により「WEBでは非公開」にしている物件があります。 それらはWEBでいくら検索しても見つかりません。 先ずは条件などお知らせ頂けましたら非公開物件含め ピッタリのオフィスをご提案させて頂きます。 無理なお勧めはしておりませんので、お気軽にお問い合わせください。
対面でのご相談も受け付けております
ご来店も歓迎です
オフィス移転は社内・社外ともに非公開に行われることが殆どです。そのためアットオフィスでは、基本的に訪問によるコンサルティングを行っておりますが、ご来店の相談も歓迎です。お一人おひとりに親身にご対応させて頂きたい為、要予約とさせて頂いております。ご来店の際は先ずは下記よりご予約下さい。
新宿/西新宿エリアで新宿第7葉山ビルに似た条件の物件
読込中...
新宿第7葉山ビルと同じ最寄駅の物件
読込中...
| 取扱様態 | 仲介 |
|---|---|
| 取扱会社 | 株式会社 アットオフィス |