アクティブ代々木の賃料条件
| 階数 | 坪数 | 賃料 + 共益費 | 敷金/礼金敷金 礼金 | 検討 |
|---|---|---|---|---|
| 3階 | 71.64坪 (236.83m²) | 1,100,000円 (坪:15,354 円) | 10ヶ月 1ヶ月10ヶ月/1ヶ月 | |
| 4階 | 48.6坪 (160.67m²) | 746,204円 (坪:15,353 円) | 10ヶ月 1ヶ月10ヶ月/1ヶ月 |
※このサイトに記載がある賃貸条件は、敷金・保証金などの預かり金を除き、別途消費税がかかります。
物件情報
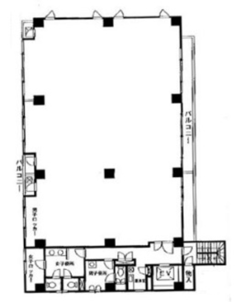
設備詳細
| 空調 | 個別空調 |
|---|---|
| トイレ | 男女別トイレ室外 |
| 床仕様 | OA対応床(フリーアクセス) |
| エレベータ | 1 基 |
| 駐車場設備 | - |
| その他 | 機械警備 / 光ファイバー / 新耐震基準 |
アクティブ代々木の賃貸オフィス・事務所に関するお問い合わせ
アクティブ代々木について
アクティブ代々木ビルは、1993年に竣工された地上5階建て、地下1階を有する賃貸オフィスビルです。本物件は渋谷区代々木3丁目に所在し、小田急線「参宮橋」駅から徒歩約3分の距離に位置しております。この立地は、ビジネスと生活の利便性を高める理想的なエリアと言えるでしょう。近隣には飲食店、コンビニエンスストア、郵便局などの生活に必要な施設が揃っており、また代々木駅や南新宿駅も徒歩圏内にあります。新宿へのアクセスも容易であるため、都内主要ビジネスエリアへの移動がスムーズです。 建物自体は、新耐震基準に適合した1993年施工のオフィスビルで、1階にはオートロックシステムが導入されており、セキュリティ面でも安心感があります。また、エントランスロビーには観賞用の水槽が設置されており、訪れる人々に安らぎを提供します。物件内には1基のエレベーターが設置されており、ビル内の移動もスムーズです。 基準階の賃貸オフィスは約80坪となっており、フロアによっては分割区画もあります。これにより、テナントのニーズに応じた柔軟なオフィス環境を実現できます。オフィス内の水回り設備は室外に配置されており、男女別のトイレも設置されています。また、給湯設備や個室トイレ、空調収納スペースなど、オフィスでの快適な業務をサポートする設備が充実しています。 アクティブ代々木ビルの魅力は、その立地、設備、セキュリティ体制に加え、赤いレンガ造りの外観が特徴的で、周囲の住宅街と調和した落ち着いた雰囲気を持っている点です。ビジネスオフィスとしての利便性はもちろん、働く人々の心地よさも考慮された設計となっており、業務効率向上にも寄与します。 本ビルは、都心部へのアクセスの良さと静かな住環境が魅力の一つであり、企業のオフィスとして理想的な環境を提供します。閑静な住宅街に位置しながらも、都心へのアクセスが容易であるため、ビジネスの拠点としてはもちろん、従業員の働きやすい環境作りにも貢献するでしょう。
アクティブ代々木のこだわり
自分で探すより問い合わせる方が早いことがあります
WEB非公開物件があるから
オーナー様のご希望により「WEBでは非公開」にしている物件があります。 それらはWEBでいくら検索しても見つかりません。 先ずは条件などお知らせ頂けましたら非公開物件含め ピッタリのオフィスをご提案させて頂きます。 無理なお勧めはしておりませんので、お気軽にお問い合わせください。
対面でのご相談も受け付けております
ご来店も歓迎です
オフィス移転は社内・社外ともに非公開に行われることが殆どです。そのためアットオフィスでは、基本的に訪問によるコンサルティングを行っておりますが、ご来店の相談も歓迎です。お一人おひとりに親身にご対応させて頂きたい為、要予約とさせて頂いております。ご来店の際は先ずは下記よりご予約下さい。
募集終了のテナント区画
| 階数 | 坪数 | 賃料 + 共益費 | 敷金/礼金敷金 礼金 | 検討 |
|---|---|---|---|---|
| 1階 | 21.78坪 (72m²) | 募集終了 | - | - |
| 1階 | 22.69坪 (75m²) | 募集終了 | - | - |
| 3階 | 79.57坪 (263.04m²) | 募集終了 | - | - |
| 4階 | 57.75坪 (190.9m²) | 募集終了 | - | - |
読込中...
近くのエリアで探してみる
代々木/初台/幡ヶ谷エリアでアクティブ代々木に似た条件の物件
読込中...
| 取扱様態 | 仲介 |
|---|---|
| 取扱会社 | 株式会社 アットオフィス |