MFビルの賃料条件
| 階数 | 坪数 | 賃料 + 共益費 | 敷金/礼金敷金 礼金 | 検討 |
|---|---|---|---|---|
| 2階 | 91.2坪 (301.49m²) | 2,097,600円 (坪:23,000 円) | 8ヶ月 無8ヶ月/無 | |
| 3階 | 89坪 (294.21m²) | 2,047,000円 (坪:23,000 円) | 8ヶ月 無8ヶ月/無 |
※このサイトに記載がある賃貸条件は、敷金・保証金などの預かり金を除き、別途消費税がかかります。
物件情報
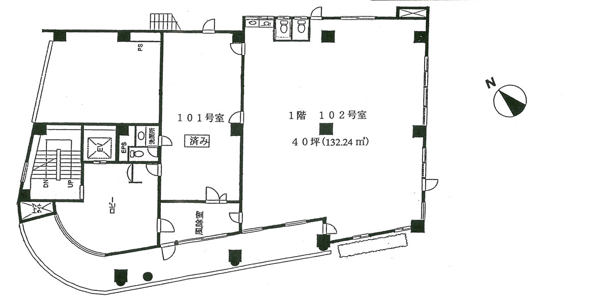
設備詳細
| 空調 | 個別空調 |
|---|---|
| トイレ | 男女別トイレ室外 |
| 床仕様 | - |
| エレベータ | 1 基 |
| 駐車場設備 | - |
| その他 | 機械警備 / 新耐震基準 / フリーレント / 居抜き |
MFビルの賃貸オフィス・事務所に関するお問い合わせ
MFビルについて
渋谷区代々木に立地する「MFビル」は、1992年に竣工された洗練されたデザインの賃貸オフィスビルです。二駅利用可能な好立地に加え、築浅物件であるため、企業のオフィスとしての魅力が溢れています。このビルは、特にクリエイティブな業種の企業にぴったりの特長を持っています。今回はその魅力とビジネスにおける利点をご紹介します。 まず、目を引くのはその外観。レンガ調のファサードが印象的で、一目でその存在を際立たせます。エントランスはオートロックが完備され、セキュリティ面でも安心です。また、駐車スペースとして1階に平置き駐車場が併設されており、来訪者にとっても便利です。 内部に目を向けると、最上階には広々としたバルコニーが付属しており、開放的な眺望で仕事のストレスを解消できます。このバルコニーからの眺めは、MFビルならではの特権です。また、窓が多く、自然光がたっぷりと入るため、作業環境も明るく快適です。床はフローリング調となっており、かつて住居として使用されていた名残を感じさせる温もりのあるオフィス空間を提供します。 立地に関しても、代々木駅と南新宿駅から徒歩約5分と、アクセスの良さは抜群。首都高が目の前にありながら、周辺は住宅街となっており、静かで落ち着いた環境で働くことができます。近隣には飲食店やコンビニも充実しており、ビジネスのみならず日常生活においても便利です。 面積はワンフロア40~50坪程度で、リノベーションされた室内は男女別トイレ完備となっており、機能性も考慮されています。こうした設備は、企業がオフィスを選ぶ上で重要なポイントとなるでしょう。 MFビルは、デザイン性の高い外観、最上階の特別なバルコニー、快適な室内環境、そして便利な立地条件を兼ね備えた賃貸オフィス物件です。クリエイティブな業種の企業からのニーズが高く、新たなビジネスの拠点として最適な環境を提供します。この機会に、ぜひ一度MFビルでのオフィスライフをご検討ください。
MFビルのこだわり
自分で探すより問い合わせる方が早いことがあります
WEB非公開物件があるから
オーナー様のご希望により「WEBでは非公開」にしている物件があります。 それらはWEBでいくら検索しても見つかりません。 先ずは条件などお知らせ頂けましたら非公開物件含め ピッタリのオフィスをご提案させて頂きます。 無理なお勧めはしておりませんので、お気軽にお問い合わせください。
対面でのご相談も受け付けております
ご来店も歓迎です
オフィス移転は社内・社外ともに非公開に行われることが殆どです。そのためアットオフィスでは、基本的に訪問によるコンサルティングを行っておりますが、ご来店の相談も歓迎です。お一人おひとりに親身にご対応させて頂きたい為、要予約とさせて頂いております。ご来店の際は先ずは下記よりご予約下さい。
読込中...
近くのエリアで探してみる
代々木/初台/幡ヶ谷エリアでMFビルに似た条件の物件
読込中...
| 取扱様態 | 仲介 |
|---|---|
| 取扱会社 | 株式会社 アットオフィス |