インターパーク代々木の賃料条件
| 階数 | 坪数 | 賃料 + 共益費 | 敷金/礼金敷金 礼金 | 検討 |
|---|---|---|---|---|
| 7階 | 70.84坪 (234.18m²) | 1,487,640円 (坪:21,000 円) | 8ヶ月 無8ヶ月/無 |
※このサイトに記載がある賃貸条件は、敷金・保証金などの預かり金を除き、別途消費税がかかります。
お電話でもお気軽にお問い合わせください
物件情報
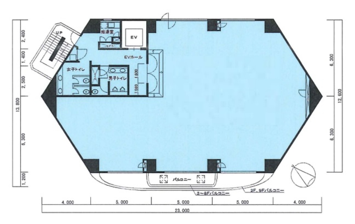
設備詳細
| 空調 | 個別空調 |
|---|---|
| トイレ | 男女別トイレ室外 |
| 床仕様 | OA対応床(フリーアクセス) |
| エレベータ | 1 基 |
| 駐車場設備 | - |
| その他 | 光ファイバー / 24時間利用可 / 機械警備 / 新耐震基準 / フリーレント |
アクセスマップ
インターパーク代々木ビルは、渋谷区代々木1丁目に位置する、1991年竣工の地上9階建ての賃貸オフィスビルです。代々木エリアにおけるオフィスの選定に際し、立地、設備、セキュリティの面から優れた選択肢を提供します。本ビルは、エレベーターを1基備え、機械警備システムによるセキュリティ対策を整えており、入居企業には24時間のオフィス利用が可能です。このような特徴は、ビルを利用するビジネスマンにとって、高い利便性と安心感を提供します。 立地においては、インターパーク代々木ビルは、代々木駅から徒歩4分という近接性を誇ります。さらに、北参道駅も徒歩圏内にあり、都心へのアクセスの良さは、ビジネスの機動性を高める要因となります。周辺には、コンビニや郵便局が点在し、日常の業務に必要なさまざまなサービスが手軽に利用できる点も、このビルの魅力の一つです。 ビルの構造としては、角地に位置するため、視認性が高く、企業のブランドイメージ向上に貢献します。また、四谷角筈線沿いという立地は、周辺のオフィス街とのシナジー効果を生み出し、ビジネスの拡大にも寄与するでしょう。 インターパーク代々木ビルのセキュリティシステムには、最新の機械警備が導入されており、入居企業とその従業員の安全を確保します。これにより、夜間や休日も含めて、安心して業務を行うことが可能です。 総じて、インターパーク代々木ビルは、立地の利便性、セキュリティの確実性、そして周辺環境の充実性を兼ね備えた賃貸オフィスビルです。これらの特長は、様々なビジネスシーンにおいて、企業にとっての競争力を高め、業務効率の向上に寄与することでしょう。代々木エリアでのオフィス探しを考えている企業にとって、インターパーク代々木ビルは、ぜひ検討いただきたい選択肢の一つです。
募集終了のテナント区画
| 階数 | 坪数 | 賃料 + 共益費 | 敷金/礼金敷金 礼金 | 検討 |
|---|---|---|---|---|
| 1階 | 48.4坪 (160.02m²) | 募集終了 | - | - |
| 2階 | 70.84坪 (234.18m²) | 募集終了 | - | - |
| 3階 | 70.84坪 (234.18m²) | 募集終了 | - | - |
| 4階 | 70.84坪 (234.18m²) | 募集終了 | - | - |
| 5階 | 58.53坪 (193.48m²) | 募集終了 | - | - |
| 5階 | 70.84坪 (234.18m²) | 募集終了 | - | - |
| 6階 | 58.53坪 (193.48m²) | 募集終了 | - | - |
| 8階 | 70.84坪 (234.18m²) | 募集終了 | - | - |
| 9階 | 58.53坪 (193.48m²) | 募集終了 | - | - |
WEB非公開物件がございます
オーナー様ご希望によるWEB非公開の物件もございます。先ずは条件などお知らせ頂けましたら、非公開物件含めピッタリのオフィスをご提案させて頂きます。具体的な物件がお決まりでない場合でも問題ございません。無理なお勧めはしておりませんので、お気軽にお問い合わせください。
ご来店も歓迎です
オフィス移転は社内・社外ともに非公開に行われることが殆どです。そのためアットオフィスでは、基本的に訪問によるコンサルティングを行っておりますが、ご来店の相談も歓迎です。
※お一人おひとりに親身にご対応させて頂きたい為、要予約とさせて頂いております。ご来店の際は先ずは上記よりご予約下さい。
読込中...
近くのエリアで探してみる
代々木/初台/幡ヶ谷エリアでインターパーク代々木に似た条件の物件
読込中...