※このサイトに記載がある賃貸条件は、敷金・保証金などの預かり金を除き、別途消費税がかかります。
お電話でもお気軽にお問い合わせください
物件情報
設備詳細
| 空調 | - |
|---|---|
| トイレ | - |
| 床仕様 | - |
| エレベータ | 1 基 |
| 駐車場設備 | - |
| その他 | 機械警備 / 光ファイバー / 新耐震基準 |
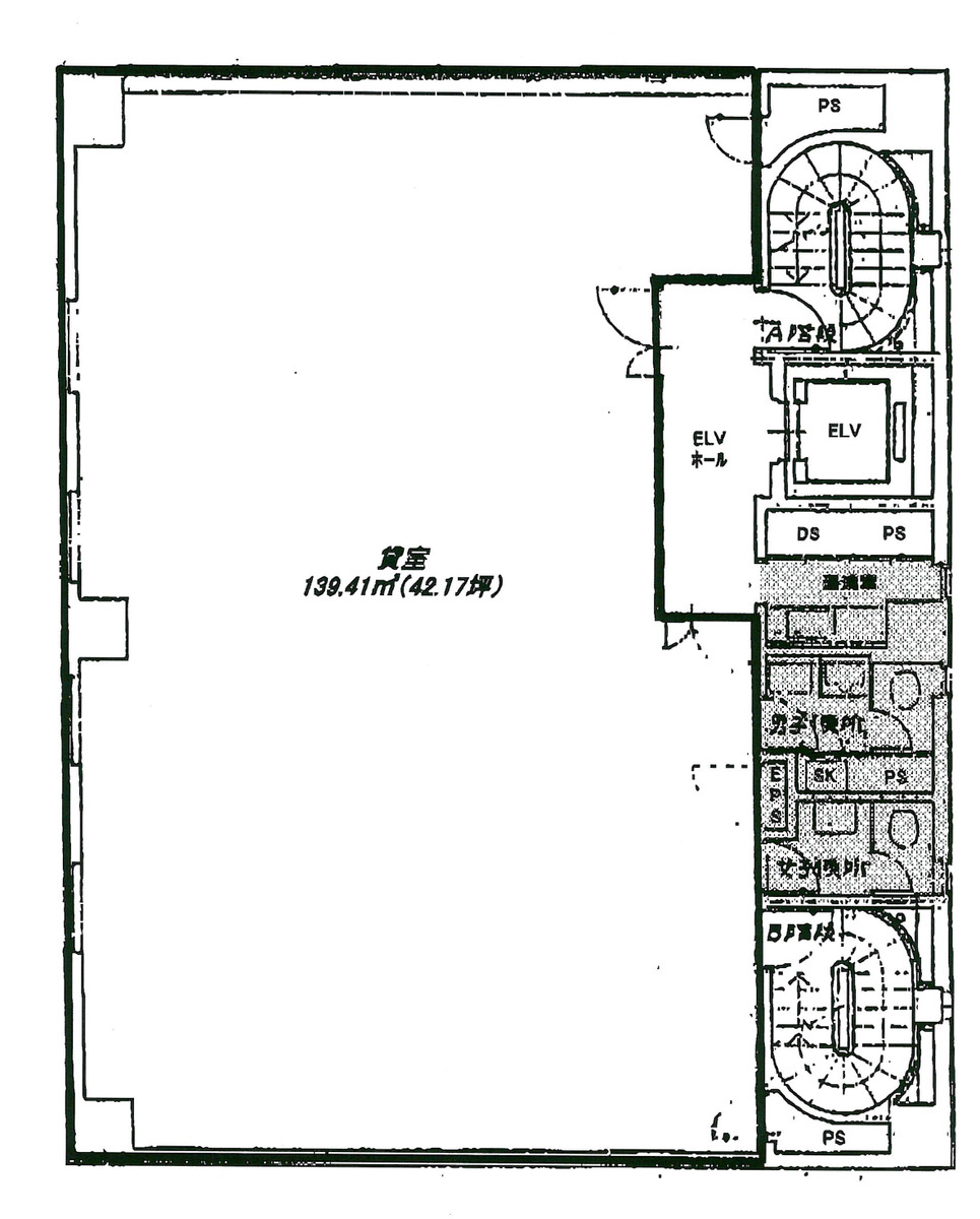
イースト渋谷ビルは、東京都渋谷区渋谷に位置する1985年竣工の9階建ての賃貸オフィスビルです。この物件はビジネスの中心地渋谷にあり、渋谷駅から徒歩5分というアクセスの良さが魅力の一つです。ビルは六本木通り沿いに位置し、首都高速3号渋谷線の近くにあるため、都心への移動が容易です。 基準となるオフィスフロアの規模は約40坪で、室内には水回りが設置されており、中小企業やスタートアップ企業にとって使い勝手が良い設計となっています。ビル内にはエレベーターが1基設置されており、効率的な移動をサポートします。 セキュリティ面では、機械警備システムを導入しており、入居企業とその従業員の安心と安全を確保しています。また、1階にはコンビニエンスストアが入居しており、日常的な買い物に非常に便利です。 イースト渋谷ビルの立地は、ビジネスだけでなく、生活面での利点も多くあります。周辺には飲食店や銀行などが豊富にあり、ビジネス街ならではの利便性を享受できます。さらに、徒歩圏内には渋谷ヒカリエなどの大型商業施設もあり、ショッピングや食事、娯楽を手軽に楽しむことができます。 ビルの外観は、白鼠色の御影石で化粧された1階部分を持ち、シンプルながらも上品な印象を与えます。エレベーターホールは白い大理石風の内壁で装飾されており、訪れる人々に良質な印象を与えます。 イースト渋谷ビルは、その立地、設備、セキュリティ面で、ビジネスの拠点として最適な選択肢の一つです。アクセスの良さと周辺環境の充実は、働く人々の日々の生活を支え、ビジネスの成功を後押しするでしょう。
募集終了のテナント区画
| 階数 | 坪数 | 賃料 + 共益費 | 敷金/礼金敷金 礼金 | 検討 |
|---|---|---|---|---|
| 5階 | 42.18坪 (139.44m²) | 募集終了 | - | - |
| 7階 | 42.17坪 (139.4m²) | 募集終了 | - | - |
WEB非公開物件がございます
オーナー様ご希望によるWEB非公開の物件もございます。先ずは条件などお知らせ頂けましたら、非公開物件含めピッタリのオフィスをご提案させて頂きます。具体的な物件がお決まりでない場合でも問題ございません。無理なお勧めはしておりませんので、お気軽にお問い合わせください。
ご来店も歓迎です
オフィス移転は社内・社外ともに非公開に行われることが殆どです。そのためアットオフィスでは、基本的に訪問によるコンサルティングを行っておりますが、ご来店の相談も歓迎です。
※お一人おひとりに親身にご対応させて頂きたい為、要予約とさせて頂いております。ご来店の際は先ずは上記よりご予約下さい。
読込中...
渋谷エリアでイースト渋谷ビルに似た条件の物件
読込中...