日本薬学会長井記念館の賃料条件
| 階数 | 坪数 | 賃料 + 共益費 | 敷金/礼金敷金 礼金 | 検討 |
|---|---|---|---|---|
| 6階 | 299.51坪 (990.11m²) | お問合せ下さい (坪:-) | 12ヶ月 無12ヶ月/無 | |
| 7階 | 62.78坪 (207.54m²) | お問合せ下さい (坪:-) | 12ヶ月 無12ヶ月/無 |
※このサイトに記載がある賃貸条件は、敷金・保証金などの預かり金を除き、別途消費税がかかります。
物件情報
設備詳細
| 空調 | セントラル空調 |
|---|---|
| トイレ | 男女別トイレ室外 |
| 床仕様 | OA対応床(フリーアクセス) |
| エレベータ | 3 基 |
| 駐車場設備 | - |
| その他 | 大型ビル / 新耐震基準 / 会議室 / 光ファイバー / フリーレント |
日本薬学会長井記念館の賃貸オフィス・事務所に関するお問い合わせ
日本薬学会長井記念館について
日本薬学会長井記念館ビルは、東京都渋谷区渋谷2-12-15に位置する賃貸オフィス物件です。1991年6月に竣工したこのビルは、地下2階地上8階建の鉄骨鉄筋コンクリート造となっており、地震に対する耐性を持つ新耐震基準に準拠しています。延床面積は3,297坪、基準階面積は299坪となっており、一フロア最大300坪の広々としたオフィス空間が特徴です。 立地としては、JR渋谷駅から徒歩7分、東京メトロ渋谷駅から徒歩7分、東京メトロ表参道駅から徒歩10分の距離にあり、複数の駅が利用可能なため非常にアクセスが良好です。さらに、六本木通りに面しており、視認性とアクセスの良さから、ビジネスの拠点として最適な立地条件を備えています。 設備面では、エレベーターは3基設置されており、24時間入退館が可能なセキュリティシステムや、セントラル空調、OAフロア、光ケーブル導入済みの設備が整っています。また、ビル内には貸会議室や貸ホールがあり、ビジネス上の会議やセミナー、式典など多目的に利用できる点も魅力の一つです。ビルのエントランスホールは広々としており、重厚感のある石貼りと大理石が使われています。これらの設備は、入居企業の印象を高め、快適なオフィス環境を提供します。 このビルは日本薬学会が入居しており、主に医療関連の企業が多くを占めています。そのため、医療・薬学分野のビジネスに携わる企業にとって、同業他社や関連団体との連携が容易な環境が整っていると言えます。また、周辺には渋谷ヒカリエや青山学院大学のキャンパスなどがあり、飲食店やコンビニ、銀行などビジネスをサポートする充実した周辺環境があります。 日本薬学会長井記念館ビルは、そのアクセスの良さ、快適なオフィス環境、多目的に使用できる施設など、ビジネスの様々なニーズに対応できる賃貸オフィス物件です。医療・薬学分野をはじめとする各業界の企業が、活発なビジネス活動を展開するための理想的な場所と言えるでしょう。
自分で探すより問い合わせる方が早いことがあります
WEB非公開物件があるから
オーナー様のご希望により「WEBでは非公開」にしている物件があります。 それらはWEBでいくら検索しても見つかりません。 先ずは条件などお知らせ頂けましたら非公開物件含め ピッタリのオフィスをご提案させて頂きます。 無理なお勧めはしておりませんので、お気軽にお問い合わせください。
対面でのご相談も受け付けております
ご来店も歓迎です
オフィス移転は社内・社外ともに非公開に行われることが殆どです。そのためアットオフィスでは、基本的に訪問によるコンサルティングを行っておりますが、ご来店の相談も歓迎です。お一人おひとりに親身にご対応させて頂きたい為、要予約とさせて頂いております。ご来店の際は先ずは下記よりご予約下さい。
募集終了のテナント区画
| 階数 | 坪数 | 賃料 + 共益費 | 敷金/礼金敷金 礼金 | 検討 |
|---|---|---|---|---|
| 1階 | 76.39坪 (252.53m²) | 募集終了 | - | - |
| 1階 | 42.66坪 (141.03m²) | 募集終了 | - | - |
| 3階 | 34.46坪 (113.92m²) | 募集終了 | - | - |
| 4階 | 168.03坪 (555.49m²) | 募集終了 | - | - |
| 4階 | 132.49坪 (437.98m²) | 募集終了 | - | - |
| 5階 | 156.85坪 (518.51m²) | 募集終了 | - | - |
| 7階 | 146.47坪 (484.2m²) | 募集終了 | - | - |
| 7階 | 103.71坪 (342.84m²) | 募集終了 | - | - |
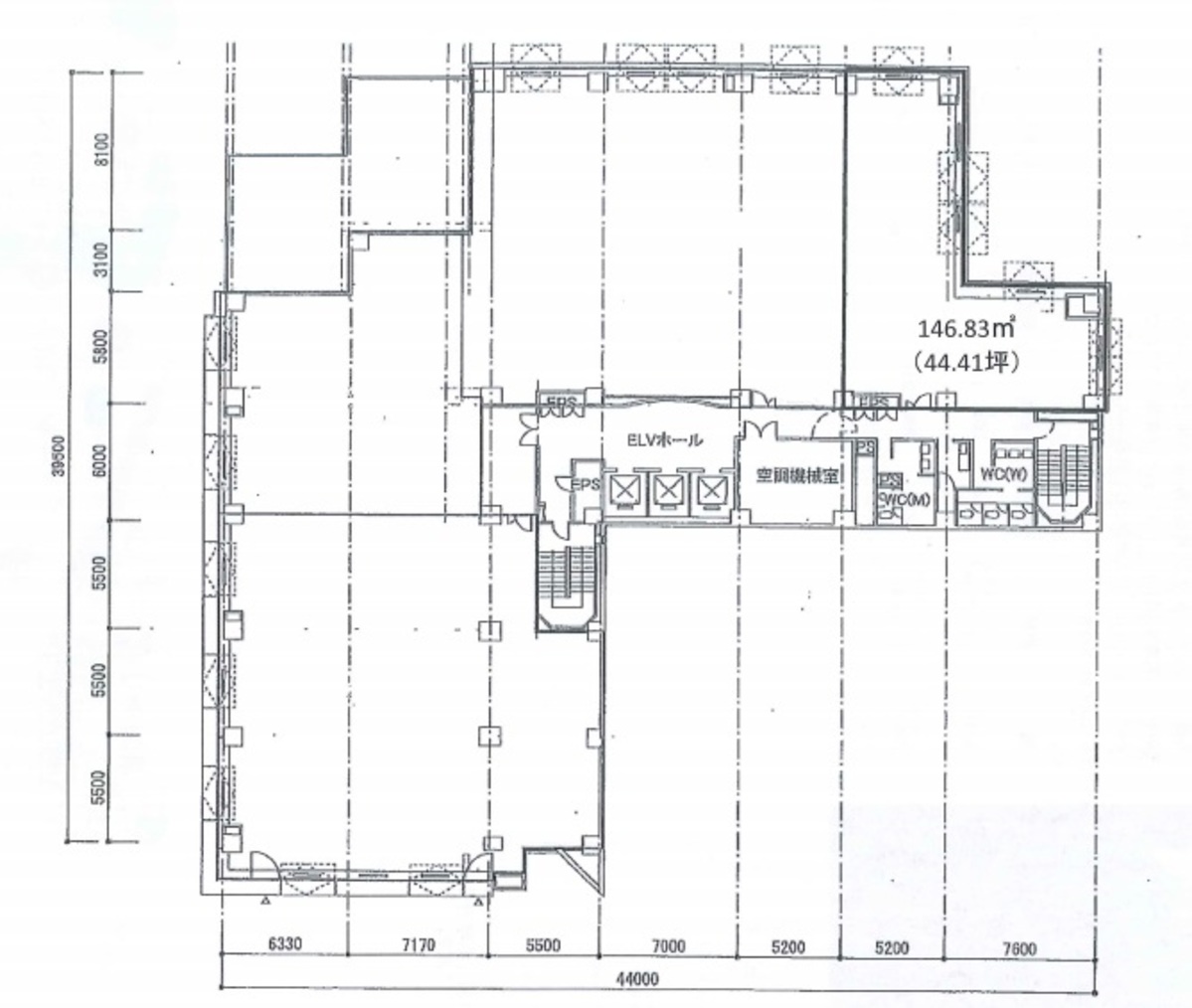
| 7階 | 44.41坪 (146.83m²) | 募集終了 | - | - |
| 8階 | 142.85坪 (472.23m²) | 募集終了 | - | - |
| 8階 | 50.42坪 (166.68m²) | 募集終了 | - | - |
読込中...
渋谷エリアで日本薬学会長井記念館に似た条件の物件
読込中...
| 取扱様態 | 仲介 |
|---|---|
| 取扱会社 | 株式会社 アットオフィス |