210野村ビル2階の賃貸情報
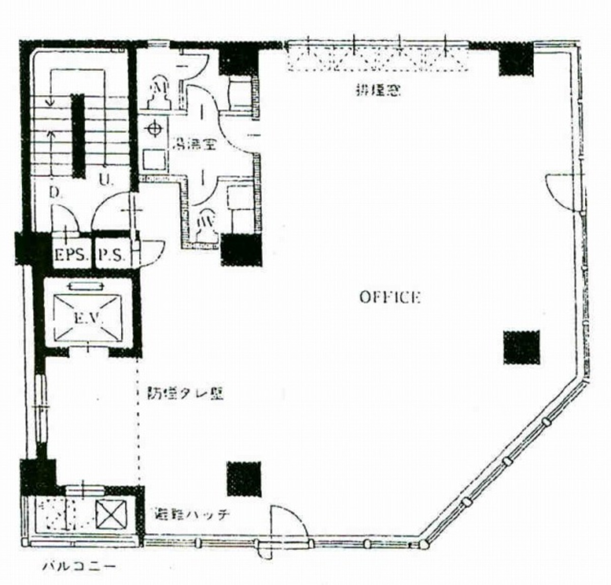
30 坪 (98.36m²)
※このサイトに記載がある賃貸条件は、敷金・保証金などの預かり金を除き、別途消費税がかかります。
210野村ビルの建物概要
設備詳細
| 空調 | 個別空調 |
|---|---|
| トイレ | - |
| 床仕様 | - |
| エレベータ | 1 基 |
| 駐車場設備 | - |
| その他 | 機械警備 / 24時間利用可 / 光ファイバー / 新耐震基準 |
210野村ビルについて
210野村ビルは、渋谷区渋谷に位置する魅力的な賃貸オフィスビルです。1991年に新耐震基準で建築されたこのビルは、現代の安全基準に適合しており、地震発生時でもテナント企業と従業員の安全を確保します。また、ビルの外観はハーフミラーのシャープなデザインで、洗練された印象を与えます。ビル内には1基のエレベーターが設置されており、快適な移動が可能です。 立地については、渋谷駅から徒歩5分という非常に便利な場所にあります。渋谷はビジネスの中心地でありながら、渋谷ヒカリエや渋谷クロスタワーなどの商業施設が近くにあり、ビジネスとショッピングの両方が楽しめるエリアです。また、青山通りから少し入った角地に位置しており、視認性が高く、採光性に優れています。このため、オフィス内は明るく開放的な雰囲気が広がっています。 オフィスの設備に関しては、男女別トイレが完備されており、24時間利用可能です。また、機械警備が完備されているため、セキュリティ面でも安心して業務に取り組むことができます。オフィスは約30坪というコンパクトながらも使い勝手の良いサイズで、柱の配置もレイアウトを妨げない設計となっています。 210野村ビルの周辺環境は、飲食店やコンビニが豊富にあり、ビジネスに必要な日常の利便性が高いことも特徴です。また、最寄りの渋谷駅からは、電車やバスを利用して都内各所へのアクセスが容易です。特に、六本木通りを走るバスを利用すれば、六本木駅へも簡単にアクセスすることができます。 総じて、210野村ビルは、立地の良さ、安全性、便利な設備を備えた、ビジネスに最適なオフィスビルです。このビルは、中小企業やスタートアップ企業にとって、渋谷という活動的なエリアでの業務展開に理想的な環境を提供します。
210野村ビルのこだわり
自分で探すより問い合わせる方が早いことがあります
WEB非公開物件があるから
オーナー様のご希望により「WEBでは非公開」にしている物件があります。 それらはWEBでいくら検索しても見つかりません。 先ずは条件などお知らせ頂けましたら非公開物件含め ピッタリのオフィスをご提案させて頂きます。 無理なお勧めはしておりませんので、お気軽にお問い合わせください。
対面でのご相談も受け付けております
ご来店も歓迎です
オフィス移転は社内・社外ともに非公開に行われることが殆どです。そのためアットオフィスでは、基本的に訪問によるコンサルティングを行っておりますが、ご来店の相談も歓迎です。お一人おひとりに親身にご対応させて頂きたい為、要予約とさせて頂いております。ご来店の際は先ずは下記よりご予約下さい。
渋谷エリアで210野村ビルに似た条件の物件
読込中...
210野村ビルと同じ最寄駅の物件
読込中...
| 取扱様態 | 仲介 |
|---|---|
| 取扱会社 | 株式会社 アットオフィス |