※このサイトに記載がある賃貸条件は、敷金・保証金などの預かり金を除き、別途消費税がかかります。
お電話でもお気軽にお問い合わせください
物件情報
設備詳細
| 空調 | 個別空調 |
|---|---|
| トイレ | 男女別トイレ |
| 床仕様 | - |
| エレベータ | 1 基 / エレベーター有 |
| 駐車場設備 | - |
| その他 | 機械警備 / 24時間利用可 / 光ファイバー / 新耐震基準 |
アクセスマップ
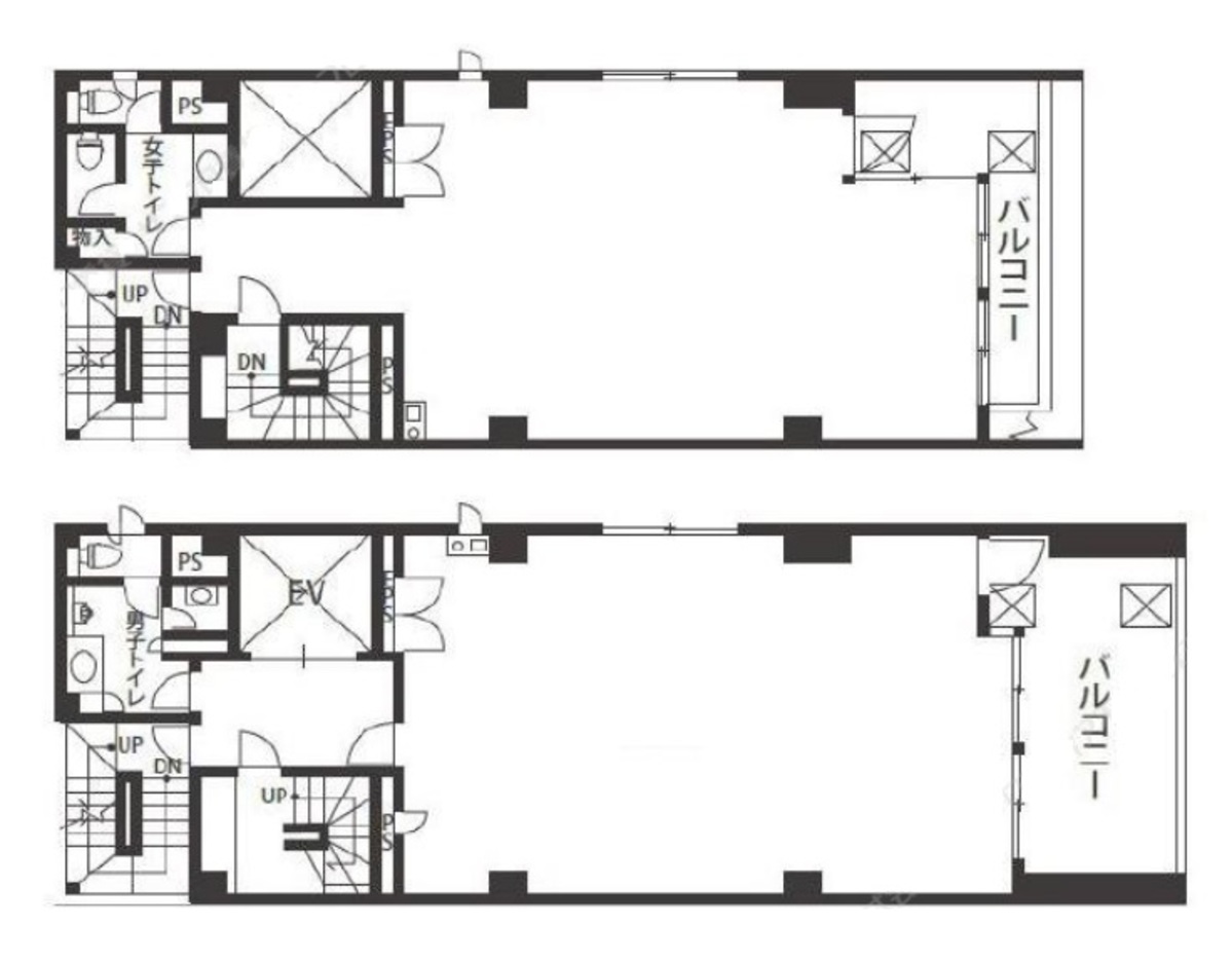
渋谷S-6ビルは、1992年に竣工した東京都渋谷区渋谷1-7-1に位置する賃貸オフィス物件です。この物件は、青山通りから一本入った静かな場所にありながら、渋谷駅まで徒歩6分というアクセスの良さを兼ね備えています。ビルの設計は、現代の働き方に適した実用的なつくりであり、オフィス内は無柱空間でレイアウトの自由度が高く、天井高2.5mと快適な作業空間を提供しています。 基準階面積は約31坪で、長方形に近い間取りは、企業が効率的なオフィスレイアウトを実現するのに適しています。また、募集区画によってはメゾネットタイプの貸室も用意されており、異なる業種やワークスタイルに合わせた選択肢を提供しています。 ビル内の設備には、OAフロア、個別空調、男女別トイレが完備されており、24時間使用可能な貸室もあります。これにより、様々なビジネスシーンに対応可能です。セキュリティ面では、機械警備が導入されており、テナントの安全を確保しています。 立地面では、JR山手線・埼京線を含む9路線が利用可能な渋谷駅が最寄りであり、ビジネスに最適なアクセス条件を備えています。周辺には飲食店やコンビニ、銀行などが充実しており、日々の業務に必要なサービスが手軽に利用できます。また、表参道駅も徒歩9分の位置にあり、さらに多くの選択肢を提供しています。 渋谷S-6ビルは、耐震基準に適合した安心の構造で、外観は青色のパネルが印象的なデザインです。高級感あるきれいなエントランスは、来訪者を迎える顔としての役割も果たしています。オフィスビルとしての機能性とデザイン、立地の良さを兼ね備え、さまざまなビジネスニーズに対応する渋谷S-6ビルは、渋谷区における企業活動の拠点として最適な選択肢の一つです。
募集終了のテナント区画
| 階数 | 坪数 | 賃料 + 共益費 | 敷金/礼金敷金 礼金 | 検討 |
|---|---|---|---|---|
| 3階 | 31.45坪 (103.97m²) | 募集終了 | - | - |
| 6階 | 31.45坪 (103.97m²) | 募集終了 | - | - |
WEB非公開物件がございます
オーナー様ご希望によるWEB非公開の物件もございます。先ずは条件などお知らせ頂けましたら、非公開物件含めピッタリのオフィスをご提案させて頂きます。具体的な物件がお決まりでない場合でも問題ございません。無理なお勧めはしておりませんので、お気軽にお問い合わせください。
ご来店も歓迎です
オフィス移転は社内・社外ともに非公開に行われることが殆どです。そのためアットオフィスでは、基本的に訪問によるコンサルティングを行っておりますが、ご来店の相談も歓迎です。
※お一人おひとりに親身にご対応させて頂きたい為、要予約とさせて頂いております。ご来店の際は先ずは上記よりご予約下さい。
読込中...
渋谷エリアで渋谷S-6ビルに似た条件の物件
読込中...