goodoffice 渋谷駅前の賃料条件
| 階数 | 坪数 | 賃料 + 共益費 | 敷金/礼金敷金 礼金 | 検討 |
|---|---|---|---|---|
| 5階 | 62坪 (204m²) | 1,800,000円 (坪:29,032 円) | 5ヶ月 1ヶ月5ヶ月/1ヶ月 |
※このサイトに記載がある賃貸条件は、敷金・保証金などの預かり金を除き、別途消費税がかかります。
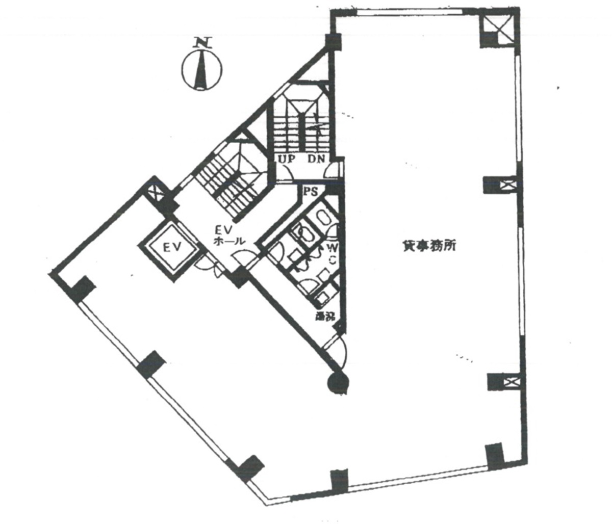
物件情報
設備詳細
| 空調 | - |
|---|---|
| トイレ | 男女別トイレ室内 |
| 床仕様 | - |
| エレベータ | 1 基 |
| 駐車場設備 | - |
| その他 | 機械警備 / 原状回復義務なし |
goodoffice 渋谷駅前の賃貸オフィス・事務所に関するお問い合わせ
goodoffice 渋谷駅前について
小林ビルは、東京都渋谷区渋谷1丁目に位置する、ビジネスオフィスにふさわしい賃貸物件です。このビルは渋谷駅から徒歩わずか1分という、群を抜くアクセスの良さを誇っています。渋谷という日本を代表するビジネスと文化の中心地にあるため、どんな業種にもマッチする多様なビジネスチャンスを提供します。 ビルにはエレベーターが1機設置されており、物件へのアクセスはスムーズです。また、エントランスは近年リニューアルされ、訪れる人々に良い第一印象を与えます。ビルの所在地は明治通り沿いという視認性の高い立地であり、来客が多いテナントにとっては非常にメリットが大きいです。 内部では、3面採光のおかげでオフィススペースが非常に明るく、働く人々の生産性と気分を高める環境が整っています。このような環境は、クリエイティブな作業を要する企業やスタートアップにとって理想的な条件です。 さらに、このビルの魅力は、渋谷という立地にあります。渋谷は多様な企業が集まるビジネスハブでありながら、ショッピング、エンターテイメント、飲食など多彩な生活サービスが充実しています。このような環境は、従業員の満足度を高め、ビジネスの発展を支援します。 小林ビルは、立地の利便性、優れたビル設備、そして快適なオフィス環境を兼ね備え、あらゆるビジネスのニーズに対応できる賃貸オフィスビルです。渋谷でのビジネス展開を考えている企業にとって、非常に魅力的な選択肢と言えるでしょう。
goodoffice 渋谷駅前のこだわり
自分で探すより問い合わせる方が早いことがあります
WEB非公開物件があるから
オーナー様のご希望により「WEBでは非公開」にしている物件があります。 それらはWEBでいくら検索しても見つかりません。 先ずは条件などお知らせ頂けましたら非公開物件含め ピッタリのオフィスをご提案させて頂きます。 無理なお勧めはしておりませんので、お気軽にお問い合わせください。
対面でのご相談も受け付けております
ご来店も歓迎です
オフィス移転は社内・社外ともに非公開に行われることが殆どです。そのためアットオフィスでは、基本的に訪問によるコンサルティングを行っておりますが、ご来店の相談も歓迎です。お一人おひとりに親身にご対応させて頂きたい為、要予約とさせて頂いております。ご来店の際は先ずは下記よりご予約下さい。
募集終了のテナント区画
| 階数 | 坪数 | 賃料 + 共益費 | 敷金/礼金敷金 礼金 | 検討 |
|---|---|---|---|---|
| B1階 | 62.09坪 (205.28m²) | 募集終了 | - | - |
| 1階 | 73.48坪 (242.9m²) | 募集終了 | - | - |
| 3階 | 62坪 (204m²) | 募集終了 | - | - |
| 4階 | 62坪 (204.96m²) | 募集終了 | - | - |
読込中...
渋谷エリアでgoodoffice 渋谷駅前に似た条件の物件
読込中...
| 取扱様態 | 仲介 |
|---|---|
| 取扱会社 | 株式会社 アットオフィス |