日本生命渋谷アネックス7階の賃貸情報
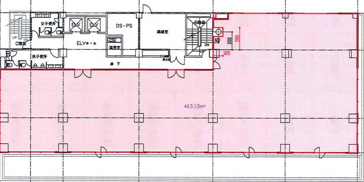
140 坪 (463.13m²)
※このサイトに記載がある賃貸条件は、敷金・保証金などの預かり金を除き、別途消費税がかかります。
日本生命渋谷アネックスの建物概要
設備詳細
| 空調 | 個別空調 |
|---|---|
| トイレ | 男女別トイレ室外 |
| 床仕様 | OA対応床(フリーアクセス) |
| エレベータ | 2 基 |
| 駐車場設備 | 機械式駐車場 |
| その他 | 大型ビル |
日本生命渋谷アネックス7階の賃貸オフィス・事務所に関するお問い合わせ
日本生命渋谷アネックスについて
日本生命渋谷アネックスビルは、東京都渋谷区神南1-19-4に位置する、ビジネスシーンに最適なオフィスビルとしてその名を馳せています。このビルは、1982年に竣工した鉄骨鉄筋コンクリート造りの地下2階地上7階建てで、延床面積は2,198坪に及びます。渋谷という世界が注目するエリアにあることで、国内外の企業から高い評価を受けています。 立地においては、JR渋谷駅から徒歩5分、東京メトロ渋谷駅から徒歩3分、京王井の頭線渋谷駅から徒歩3分と、複数の路線が利用可能な好アクセスです。この絶好の位置により、ビジネスの拠点として最適な環境を提供します。周辺には飲食店や店舗が充実しており、ビジネスのほか、日常の利便性も高いことが特徴です。 ビルの設備については、2009年のリニューアル工事により、最新のビジネスニーズに対応できるようになっています。ビル内には2基のエレベーターがあり、スムーズな移動を支援。また、24時間利用可能な機械警備システムが導入され、安心してビジネスを行うことができます。さらに、ビル内に駐車場を備えており、来訪者の利便性を大幅に向上させています。 本ビルの特徴は、個別空調・OAフロア・男女別トイレといった設備が充実していることです。これにより、オフィス内の環境を自由に調整でき、快適なワークスペースを実現できます。清潔感のあるエントランスは、ビジネスイメージを高めるのに一役買っています。 日本生命渋谷アネックスビルは、立地の利便性、充実した設備、そしてビジネスシーンでの快適さを提供することで、企業の成功をサポートします。渋谷という発展し続けるエリアに位置し、ビジネスの拠点として、また、企業イメージを高める場所として最適な選択肢となるでしょう。
自分で探すより問い合わせる方が早いことがあります
WEB非公開物件があるから
オーナー様のご希望により「WEBでは非公開」にしている物件があります。 それらはWEBでいくら検索しても見つかりません。 先ずは条件などお知らせ頂けましたら非公開物件含め ピッタリのオフィスをご提案させて頂きます。 無理なお勧めはしておりませんので、お気軽にお問い合わせください。
対面でのご相談も受け付けております
ご来店も歓迎です
オフィス移転は社内・社外ともに非公開に行われることが殆どです。そのためアットオフィスでは、基本的に訪問によるコンサルティングを行っておりますが、ご来店の相談も歓迎です。お一人おひとりに親身にご対応させて頂きたい為、要予約とさせて頂いております。ご来店の際は先ずは下記よりご予約下さい。
渋谷エリアで日本生命渋谷アネックスに似た条件の物件
読込中...
日本生命渋谷アネックスと同じ最寄駅の物件
読込中...
| 取扱様態 | 仲介 |
|---|---|
| 取扱会社 | 株式会社 アットオフィス |