※このサイトに記載がある賃貸条件は、敷金・保証金などの預かり金を除き、別途消費税がかかります。
物件情報
設備詳細
| 空調 | 個別空調 |
|---|---|
| トイレ | 男女別トイレ室外 |
| 床仕様 | OA対応床(フリーアクセス) |
| エレベータ | 2 基 |
| 駐車場設備 | 空有 / 機械式駐車場 |
| その他 | 24時間利用可 / 光ファイバー / 新耐震基準 / 機械警備 / 1階の物件 / 店舗可(飲食可) / クリニック |
いちご渋谷道玄坂ビルの賃貸オフィス・事務所に関するお問い合わせ
いちご渋谷道玄坂ビルについて
いちご渋谷道玄坂ビルは、東京都渋谷区円山町28-3に位置する、1994年に竣工された賃貸オフィスビルです。本物件は、鉄骨鉄筋コンクリート造の地上9階建て(地下2階含む)であり、新耐震基準に適合した構造を有しています。これにより、地震発生時のリスクを軽減し、テナント企業の安全性を確保しています。また、基準階面積は約100坪と広大であり、各階に個別空調が完備されています。これにより、各テナントは快適なオフィス環境を実現することができます。 立地に関して、いちご渋谷道玄坂ビルは、京王井の頭線神泉駅から徒歩4分、JR山手線・JR埼京線・東急田園都市線・東京メトロ銀座線・東京メトロ半蔵門線が乗り入れる渋谷駅からも徒歩10分の距離にあります。この立地は、ビジネスの要として最適であり、複数の交通機関を利用することが可能なため、テナント企業の従業員やビジネスパートナーにとって、非常にアクセスしやすい位置にあります。 ビル設備について、エレベーターは2基設置され、テナント企業の移動の利便性を高めています。また、24時間使用可能なセキュリティシステムを導入しており、テナント企業の安全とセキュリティを保証しています。光ファイバーの導入により、高速インターネット環境を提供し、現代のビジネスニーズに対応しています。加えて、機械式駐車場が完備されており、車通勤するテナント企業の従業員にとっても便利です。 周辺環境として、ビルは玉川通り沿いに位置し、視認性が高い立地にあります。周辺には飲食店やコンビニなどが豊富にあり、ビジネスランチやアフター5の利用に困ることがありません。また、渋谷区は商業施設が充実しており、ショッピングやエンターテインメント施設の利用も容易です。 総じて、いちご渋谷道玄坂ビルは、耐震性に優れ、優れたアクセス、快適なオフィス環境、安全性とセキュリティを提供する賃貸オフィスビルです。これらの特徴は、テナント企業にとってビジネスの発展と働く従業員の生産性向上に寄与することでしょう。
自分で探すより問い合わせる方が早いことがあります
WEB非公開物件があるから
オーナー様のご希望により「WEBでは非公開」にしている物件があります。 それらはWEBでいくら検索しても見つかりません。 先ずは条件などお知らせ頂けましたら非公開物件含め ピッタリのオフィスをご提案させて頂きます。 無理なお勧めはしておりませんので、お気軽にお問い合わせください。
対面でのご相談も受け付けております
ご来店も歓迎です
オフィス移転は社内・社外ともに非公開に行われることが殆どです。そのためアットオフィスでは、基本的に訪問によるコンサルティングを行っておりますが、ご来店の相談も歓迎です。お一人おひとりに親身にご対応させて頂きたい為、要予約とさせて頂いております。ご来店の際は先ずは下記よりご予約下さい。
募集終了のテナント区画
| 階数 | 坪数 | 賃料 + 共益費 | 敷金/礼金敷金 礼金 | 検討 |
|---|---|---|---|---|
| B1階 | 55.44坪 (183.27m²) | 募集終了 | - | - |
| B1階 | 22.8坪 (75.37m²) | 募集終了 | - | - |
| 1階 | 29.75坪 (98.35m²) | 募集終了 | - | - |
| 2階 | 100.72坪 (332.96m²) | 募集終了 | - | - |
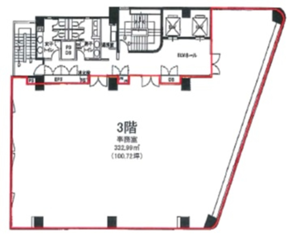
| 3階 | 100.72坪 (332.96m²) | 募集終了 | - | - |
| 4階 | 39.1坪 (129.26m²) | 募集終了 | - | - |
| 4階 | 61.62坪 (203.7m²) | 募集終了 | - | - |
| 4階 | 100.72坪 (332.95m²) | 募集終了 | - | - |
| 5階 | 100.49坪 (332.19m²) | 募集終了 | - | - |
| 6階 | 100.49坪 (332.19m²) | 募集終了 | - | - |
| 7階 | 39.1坪 (129.25m²) | 募集終了 | - | - |
| 7階 | 61.39坪 (202.94m²) | 募集終了 | - | - |
| 8階 | 100.49坪 (332.19m²) | 募集終了 | - | - |
| 8階 | 200.98坪 (664.4m²) | 募集終了 | - | - |
| 9階 | 100.49坪 (332.2m²) | 募集終了 | - | - |
読込中...
渋谷エリアでいちご渋谷道玄坂ビルに似た条件の物件
読込中...
| 取扱様態 | 仲介 |
|---|---|
| 取扱会社 | 株式会社 アットオフィス |