※このサイトに記載がある賃貸条件は、敷金・保証金などの預かり金を除き、別途消費税がかかります。
物件情報
設備詳細
| 空調 | - |
|---|---|
| トイレ | - |
| 床仕様 | - |
| エレベータ | 1 基 |
| 駐車場設備 | - |
| その他 | 24時間利用可 / 光ファイバー |
長島第一ビルの賃貸オフィス・事務所に関するお問い合わせ
長島第一ビルについて
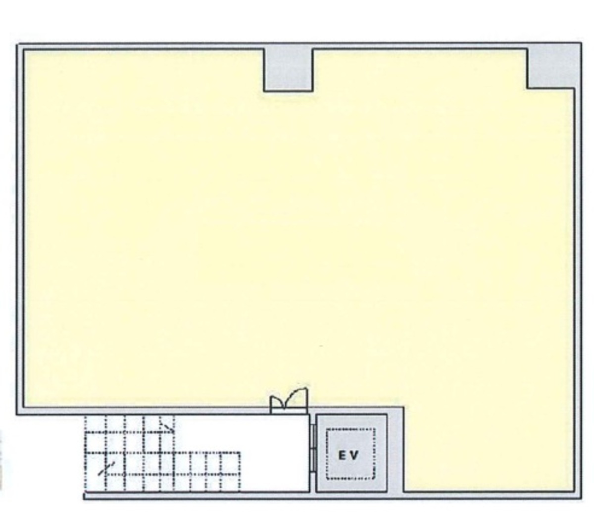
長島第1ビルは、渋谷区道玄坂に位置する、交通アクセスとビル設備の充実性が特徴の賃貸オフィスビルです。このビルは、渋谷駅から徒歩約7分という抜群の立地にあり、複数の鉄道路線が利用可能で、ビジネスの中心地にあることからアクセスの良さはもちろん、周辺の生活インフラも非常に充実しています。2006年にリニューアルされたこの物件は、1972年の新耐震基準以前に竣工しておりながらも、最新の設備と快適なオフィス環境を提供しています。 ビル内には、貸会議室やカフェ・ラウンジが設置されており、ビジネスミーティングやクライアントとの打ち合わせに最適な空間が整っています。また、基準階約38坪のオフィスフロアは、シンプルで使いやすい長方形のレイアウトを採用しており、効率的なオフィスレイアウトが可能です。男女別トイレや個別空調システムも完備されており、24時間利用可能なことから、企業のさまざまなニーズに対応しています。 加えて、長島第1ビルは、ビル内に月極駐車場を備えており、ビジネスでの自動車利用にも便利です。このビルのエレベーターは1機設置されていますが、その分、待ち時間の削減と効率的な移動を実現しています。 周辺環境も、ビジネスチャンスに溢れる渋谷区道玄坂に位置し、飲食店が充実しているだけでなく、コンビニ、銀行、郵便局など生活に必要な施設が徒歩圏内に揃っています。さらに、最寄り駅の神泉駅へは徒歩4分と、ビジネスパーソンにとって理想的なアクセスの良さを実現しています。 このように、長島第1ビルは、優れた立地、充実したビル設備、快適なオフィス環境を兼ね備え、ビジネスの成功を支える最適なスペースを提供しています。あなたのビジネスを次のレベルへと押し上げるための選択肢として、長島第1ビルをぜひご検討ください。
長島第一ビルのこだわり
自分で探すより問い合わせる方が早いことがあります
WEB非公開物件があるから
オーナー様のご希望により「WEBでは非公開」にしている物件があります。 それらはWEBでいくら検索しても見つかりません。 先ずは条件などお知らせ頂けましたら非公開物件含め ピッタリのオフィスをご提案させて頂きます。 無理なお勧めはしておりませんので、お気軽にお問い合わせください。
対面でのご相談も受け付けております
ご来店も歓迎です
オフィス移転は社内・社外ともに非公開に行われることが殆どです。そのためアットオフィスでは、基本的に訪問によるコンサルティングを行っておりますが、ご来店の相談も歓迎です。お一人おひとりに親身にご対応させて頂きたい為、要予約とさせて頂いております。ご来店の際は先ずは下記よりご予約下さい。
募集終了のテナント区画
| 階数 | 坪数 | 賃料 + 共益費 | 敷金/礼金敷金 礼金 | 検討 |
|---|---|---|---|---|
| 1階 | 30坪 (99.17m²) | 募集終了 | - | - |
| 4階 | 38坪 (125.62m²) | 募集終了 | - | - |
| 5階 | 38坪 (125.62m²) | 募集終了 | - | - |
読込中...
渋谷エリアで長島第一ビルに似た条件の物件
読込中...
| 取扱様態 | 仲介 |
|---|---|
| 取扱会社 | 株式会社 アットオフィス |