※このサイトに記載がある賃貸条件は、敷金・保証金などの預かり金を除き、別途消費税がかかります。
お電話でもお気軽にお問い合わせください
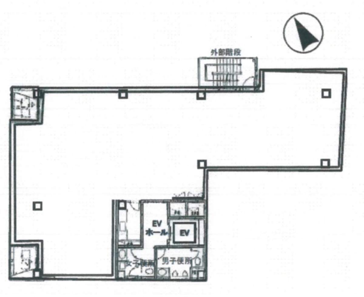
物件情報
設備詳細
| 空調 | - |
|---|---|
| トイレ | - |
| 床仕様 | - |
| エレベータ | 1 基 |
| 駐車場設備 | - |
| その他 | 新耐震基準 / 24時間利用可 |
アクセスマップ
上野中央ビルは、現代ビジネス人が求めるすべての要素を兼ね備えた、台東区上野に位置する理想的なオフィス賃貸物件です。このビルは1990年に竣工し、耐震性に優れた構造を持っており、安心してビジネスを行うことができます。特に注目すべきはその立地の利便性で、上野駅からわずか徒歩3分という駅近物件でありながら、山手線、京浜東北線、日比谷線、銀座線など複数の路線が使用可能で、東京都内はもちろん、都外へのアクセスも非常にスムーズです。 ビルのデザインには、黒いパネルとガラス張りが用いられており、高級感と重厚感を演出しています。来訪者を迎えるエントランスは広々としており、ビジネスの第一印象を重視する企業にとっては最適の環境です。また、ビル内には1基のエレベーターが設置されていますが、これには非停止機能が付いており、スムーズな移動をサポートします。 オフィスビルとしての機能も充実しており、男女別のトイレはもちろん、24時間利用可能で機械警備が完備されています。これにより、時間に縛られることなくビジネスを展開することができ、セキュリティ面でも安心して作業に集中できます。 周辺環境もビジネスには欠かせない要素です。上野中央ビルは、オフィスビルが立ち並ぶ落ち着いた環境に位置しており、必要な飲食店やコンビニ等の生活インフラが整っています。特に、ビル前面の通りには徒歩2分の距離にローソンがあり、日常の利便性が大きく向上しています。 このように、上野中央ビルは、立地の優れたアクセス、洗練されたデザイン、充実したビルの機能性、そして便利な周辺環境と、ビジネスの成功に必要な要素をすべて備えています。あらゆる業種の企業にとって理想的なオフィス空間と言えるでしょう。ビジネスの新たな拠点として、上野中央ビルの魅力を是非ご検討ください。
募集終了のテナント区画
| 階数 | 坪数 | 賃料 + 共益費 | 敷金/礼金敷金 礼金 | 検討 |
|---|---|---|---|---|
| 1階 | 42.65坪 (141m²) | 募集終了 | - | - |
| 8階 | 70.31坪 (232.42m²) | 募集終了 | - | - |
WEB非公開物件がございます
オーナー様ご希望によるWEB非公開の物件もございます。先ずは条件などお知らせ頂けましたら、非公開物件含めピッタリのオフィスをご提案させて頂きます。具体的な物件がお決まりでない場合でも問題ございません。無理なお勧めはしておりませんので、お気軽にお問い合わせください。
ご来店も歓迎です
オフィス移転は社内・社外ともに非公開に行われることが殆どです。そのためアットオフィスでは、基本的に訪問によるコンサルティングを行っておりますが、ご来店の相談も歓迎です。
※お一人おひとりに親身にご対応させて頂きたい為、要予約とさせて頂いております。ご来店の際は先ずは上記よりご予約下さい。
読込中...
上野/台東/東上野エリアで上野中央ビルに似た条件の物件
読込中...