イトービル3階の賃貸情報
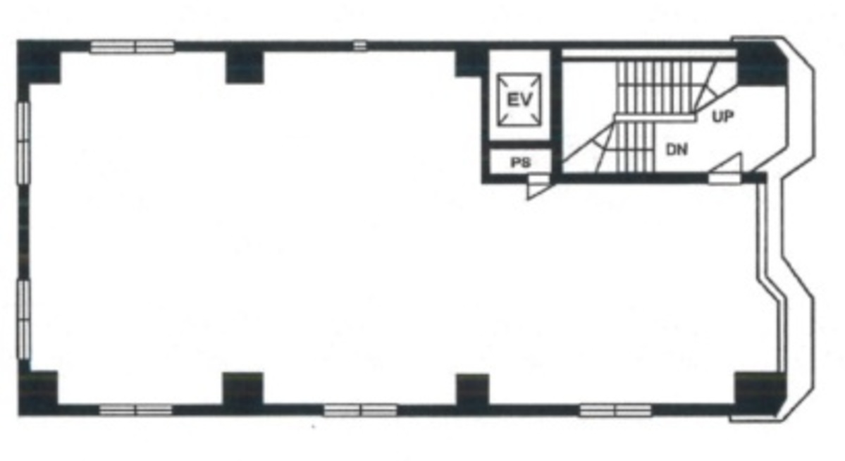
39.24 坪 (129.72m²)
※このサイトに記載がある賃貸条件は、敷金・保証金などの預かり金を除き、別途消費税がかかります。
設備詳細
| 空調 | - |
|---|---|
| トイレ | - |
| 床仕様 | - |
| エレベータ | 1 基 |
| 駐車場設備 | - |
| その他 | - |
イトービル3階の賃貸オフィス・事務所に関するお問い合わせ
イトービルについて
葛飾区新小岩1丁目に所在するイトービルは、総武線「新小岩駅」から徒歩2分の位置にあります。地上8階、地下1階の構造を持ち、オフィスやサービス店舗など様々な事業用途に利用が想定される建物です。駅から近い立地のため、来訪者や従業員の移動がスムーズに行える環境が整っています。また、建物にはエレベーターが設置されており、複数フロアでの業務展開や荷物の搬入・搬出時にも活用できます。新小岩エリアは周辺に店舗や生活利便施設が点在し、日常的な業務を行ううえでの基本的な要素が揃っている環境です。ビルの構造上、多層階の利用を検討されている法人にも適した物件といえます。詳細はお問い合わせください。
イトービルのこだわり
自分で探すより問い合わせる方が早いことがあります
WEB非公開物件があるから
オーナー様のご希望により「WEBでは非公開」にしている物件があります。 それらはWEBでいくら検索しても見つかりません。 先ずは条件などお知らせ頂けましたら非公開物件含め ピッタリのオフィスをご提案させて頂きます。 無理なお勧めはしておりませんので、お気軽にお問い合わせください。
対面でのご相談も受け付けております
ご来店も歓迎です
オフィス移転は社内・社外ともに非公開に行われることが殆どです。そのためアットオフィスでは、基本的に訪問によるコンサルティングを行っておりますが、ご来店の相談も歓迎です。お一人おひとりに親身にご対応させて頂きたい為、要予約とさせて頂いております。ご来店の際は先ずは下記よりご予約下さい。
葛飾区エリアでイトービルに似た条件の物件
読込中...
イトービルと同じ最寄駅の物件
読込中...
| 取扱様態 | 仲介 |
|---|---|
| 取扱会社 | 株式会社 アットオフィス |