京橋第3長岡ビル7階の賃貸情報
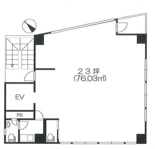
23 坪 (76.03m²)
※このサイトに記載がある賃貸条件は、敷金・保証金などの預かり金を除き、別途消費税がかかります。
京橋第3長岡ビルの建物概要
設備詳細
| 空調 | 個別空調 |
|---|---|
| トイレ | - |
| 床仕様 | - |
| エレベータ | 1 基 |
| 駐車場設備 | - |
| その他 | 24時間利用可 / 光ファイバー / 新耐震基準 / 機械警備 |
京橋第3長岡ビル7階の賃貸オフィス・事務所に関するお問い合わせ
京橋第3長岡ビルについて
京橋第3長岡ビルは、東京都中央区八丁堀3丁目というビジネスの中心地に位置する、1984年に竣工した耐震性を備えたオフィスビルです。このビルは、最先端のビジネスニーズに応えるため、全面的なリニューアルを経て現代のオフィス環境に適した設備と機能を完備しています。 特筆すべきは、その整形で無柱の構造です。この設計により、テナントはレイアウトの自由度が高く、効率的なオフィス環境を実現することが可能になります。オフィスの使い勝手を左右する大きな要素として、この点は特に価値が高いと言えるでしょう。 ビル内には1機のエレベーターが設置されており、快適な移動をサポートします。また、24時間利用が可能で、機械警備も完備されているため、セキュリティ面でも安心してビジネスを行うことができます。これらの設備は、テナントの皆様がいかなる時間帯でもビルを活用できるようにするためのものであり、多忙なビジネスマンにとっては非常に重宝するはずです。 立地に関しても、京橋第3長岡ビルは非常に魅力的な位置にあります。3駅以上を利用できる好立地であり、都心へのアクセスが非常に便利です。ビジネスの機会を広げる上で、このようなアクセスの良さは計り知れない価値があります。 このビルは、その耐震構造、柔軟なレイアウト可能性、24時間利用可能なセキュリティ環境、そして絶好の立地条件という、ビジネスオフィスにとって求められるすべての要素を兼ね備えています。これらの特性は、テナント企業が安全かつ効率的に業務を遂行するための強力なサポートとなるでしょう。京橋第3長岡ビルは、ビジネスの成長と発展を目指す企業にとって、最適な選択肢の一つです。
京橋第3長岡ビルのこだわり
自分で探すより問い合わせる方が早いことがあります
WEB非公開物件があるから
オーナー様のご希望により「WEBでは非公開」にしている物件があります。 それらはWEBでいくら検索しても見つかりません。 先ずは条件などお知らせ頂けましたら非公開物件含め ピッタリのオフィスをご提案させて頂きます。 無理なお勧めはしておりませんので、お気軽にお問い合わせください。
対面でのご相談も受け付けております
ご来店も歓迎です
オフィス移転は社内・社外ともに非公開に行われることが殆どです。そのためアットオフィスでは、基本的に訪問によるコンサルティングを行っておりますが、ご来店の相談も歓迎です。お一人おひとりに親身にご対応させて頂きたい為、要予約とさせて頂いております。ご来店の際は先ずは下記よりご予約下さい。
近くのエリアで探してみる
茅場町/新川/八丁堀エリアで京橋第3長岡ビルに似た条件の物件
読込中...
京橋第3長岡ビルと同じ最寄駅の物件
読込中...
| 取扱様態 | 仲介 |
|---|---|
| 取扱会社 | 株式会社 アットオフィス |