※このサイトに記載がある賃貸条件は、敷金・保証金などの預かり金を除き、別途消費税がかかります。
物件情報
設備詳細
| 空調 | 個別空調 |
|---|---|
| トイレ | 男女別トイレ室内 |
| 床仕様 | - |
| エレベータ | 1 基 |
| 駐車場設備 | - |
| その他 | 24時間利用可 / 光ファイバー / 機械警備 |
山上ビルの賃貸オフィス・事務所に関するお問い合わせ
山上ビルについて
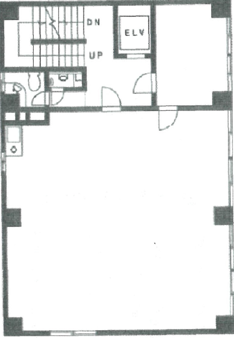
【山上ビル:千代田区神田岩本町の賃貸オフィスビル紹介】 山上ビルは、ビジネスの中心地、東京都千代田区神田岩本町1に位置する地上9階・地下1階建ての賃貸オフィスビルです。このビルは、交通アクセスの良さ、充実した設備、そして抜群の立地条件を兼ね備え、ビジネスの成功を後押しする最適な環境を提供します。 【アクセスの優位性】 山上ビルは、複数の駅に近接しています。最寄り駅である岩本町駅から徒歩1分、東京の電子機器とサブカルチャーの中心地、秋葉原駅からは徒歩3分という、非常に便利な立地です。さらに、神田駅や淡路町駅、小伝馬町駅も徒歩圏内にあり、都内各所へのアクセスが容易です。 【充実した設備】 1966年の新耐震基準以前に竣工しながらも、ビルの設備は現代のビジネスニーズに対応したものになっています。各階は約30坪の広さで、柱のない正方形に近い間取りがレイアウトの自由度を高めています。個別空調や光回線など、現代のオフィス環境に欠かせない設備が整っており、ビジネスの効率化をサポートします。 【ビルの魅力】 山上ビルの1〜2階には人気のカフェチェーン店が入居しており、ビジネスの合間にリフレッシュする場所としても最適です。また、ビル内に駐車場が設置されているため、車での移動が必要なビジネスパーソンにとっても便利です。エレベーターは1機設置されていますが、効率的な動線設計によりスムーズな移動が可能です。 【立地の利点】 山上ビルの周辺環境は、ビジネスを行う上で非常に魅力的です。すぐ北側を流れる神田川の景観、そして昭和通りに面した好立地は、従業員やクライアントを迎えるにあたり、印象的なビジネスシーンを演出します。隣接するドラッグストアやコンビニ、郵便局などの生活便利施設が充実しており、日々の業務に必要なものがすぐに手に入ります。 山上ビルは、立地、設備、環境と三拍子揃った賃貸オフィスビルです。ビジネスの拠点としての機能性はもちろんのこと、従業員の働きやすさやクライアントを迎える際の印象など、ビジネスを成功に導くための様々な要素を備えています。このビルで、新たなビジネスのステージを始めてみませんか?ご内見や詳細情報については、お気軽にお問い合わせください。
山上ビルのこだわり
自分で探すより問い合わせる方が早いことがあります
WEB非公開物件があるから
オーナー様のご希望により「WEBでは非公開」にしている物件があります。 それらはWEBでいくら検索しても見つかりません。 先ずは条件などお知らせ頂けましたら非公開物件含め ピッタリのオフィスをご提案させて頂きます。 無理なお勧めはしておりませんので、お気軽にお問い合わせください。
対面でのご相談も受け付けております
ご来店も歓迎です
オフィス移転は社内・社外ともに非公開に行われることが殆どです。そのためアットオフィスでは、基本的に訪問によるコンサルティングを行っておりますが、ご来店の相談も歓迎です。お一人おひとりに親身にご対応させて頂きたい為、要予約とさせて頂いております。ご来店の際は先ずは下記よりご予約下さい。
募集終了のテナント区画
| 階数 | 坪数 | 賃料 + 共益費 | 敷金/礼金敷金 礼金 | 検討 |
|---|---|---|---|---|
| B1階 | 25.72坪 (85.02m²) | 募集終了 | - | - |
| 2階 | 28.6坪 (94.55m²) | 募集終了 | - | - |
| 3階 | 28.6坪 (94.55m²) | 募集終了 | - | - |
| 4階 | 28.6坪 (94.55m²) | 募集終了 | - | - |
| 5階 | 28.6坪 (94.55m²) | 募集終了 | - | - |
読込中...
神田/秋葉原エリアで山上ビルに似た条件の物件
読込中...
| 取扱様態 | 仲介 |
|---|---|
| 取扱会社 | 株式会社 アットオフィス |