※このサイトに記載がある賃貸条件は、敷金・保証金などの預かり金を除き、別途消費税がかかります。
お電話でもお気軽にお問い合わせください
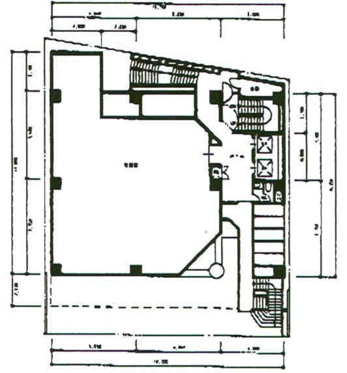
物件情報
設備詳細
| 空調 | - |
|---|---|
| トイレ | - |
| 床仕様 | - |
| エレベータ | 2 基 |
| 駐車場設備 | 空有 |
| その他 | 機械警備 / 光ファイバー / 新耐震基準 |
アクセスマップ
プレミア道玄坂ビルは、渋谷区道玄坂1丁目に位置する、1991年に竣工したモダンなオフィスビルです。この物件は、新耐震基準に適合し、安全性において最高レベルの品質を確保しています。ビルの立地は、渋谷マークシティの出入り口から非常に近く、渋谷駅へは雨の日でもほぼ屋外に出ることなくアクセス可能です。この立地の良さは、ビジネスの中心地である渋谷で活動する企業にとって非常に魅力的なポイントです。 プレミア道玄坂ビルの貸室は、効率的なレイアウトが可能な綺麗な形状をしており、無駄な柱がないため、使い勝手の良さが際立っています。これにより、オフィススペースを最大限に活用し、企業が求める独自性を表現する空間を創出することができます。 ビル内にはエレベーターが2機設置されており、ビルの利用者がスムーズに移動できるようになっています。また、ビル内に駐車場も完備されているため、車を利用する従業員や来客の利便性も高いです。空き状況に関してはお問い合わせいただくことで、ニーズに合わせたご案内が可能です。 渋谷は大型開発が進む注目のエリアであり、プレミア道玄坂ビルはその中心にありながら、高い安全基準、効率的なオフィスレイアウト、優れたアクセス性を兼ね備えています。ビジネスの成長と発展を支える場所として、また、企業のイメージを高めるオフィスとして、最適な環境を提供します。プレミア道玄坂ビルは、これからも渋谷で活躍する企業にとって、理想的なオフィススペースであり続けるでしょう。
募集終了のテナント区画
| 階数 | 坪数 | 賃料 + 共益費 | 敷金/礼金敷金 礼金 | 検討 |
|---|---|---|---|---|
| B1階 | 65.58坪 (216.79m²) | 募集終了 | - | - |
| 2階 | 71.82坪 (237.42m²) | 募集終了 | - | - |
| 3階 | 98.76坪 (326.48m²) | 募集終了 | - | - |
| 4階 | 98.76坪 (326.48m²) | 募集終了 | - | - |
| 5階 | 77.19坪 (255.17m²) | 募集終了 | - | - |
| 6階 | 64.96坪 (214.74m²) | 募集終了 | - | - |
| 7階 | 56.21坪 (185.82m²) | 募集終了 | - | - |
| 8階 | 45.11坪 (149.12m²) | 募集終了 | - | - |
WEB非公開物件がございます
オーナー様ご希望によるWEB非公開の物件もございます。先ずは条件などお知らせ頂けましたら、非公開物件含めピッタリのオフィスをご提案させて頂きます。具体的な物件がお決まりでない場合でも問題ございません。無理なお勧めはしておりませんので、お気軽にお問い合わせください。
ご来店も歓迎です
オフィス移転は社内・社外ともに非公開に行われることが殆どです。そのためアットオフィスでは、基本的に訪問によるコンサルティングを行っておりますが、ご来店の相談も歓迎です。
※お一人おひとりに親身にご対応させて頂きたい為、要予約とさせて頂いております。ご来店の際は先ずは上記よりご予約下さい。
読込中...
渋谷エリアでプレミア道玄坂ビルに似た条件の物件
読込中...