根津テラスの賃料条件
| 階数 | 坪数 | 賃料 + 共益費 | 敷金/礼金敷金 礼金 | 検討 |
|---|---|---|---|---|
| 1階 | 26.76坪 (88.46m²) | 381,260円 (坪:14,247 円) | 5ヶ月 無5ヶ月/無 | |
| 2階 | 24.44坪 (80.82m²) | 374,380円 (坪:15,318 円) | 5ヶ月 無5ヶ月/無 | |
| 3階 | 22.75坪 (75.21m²) | 338,500円 (坪:14,879 円) | 5ヶ月 無5ヶ月/無 |
※このサイトに記載がある賃貸条件は、敷金・保証金などの預かり金を除き、別途消費税がかかります。
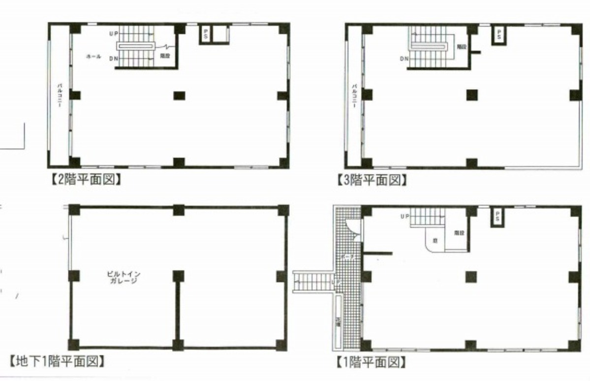
物件情報
設備詳細
| 空調 | - |
|---|---|
| トイレ | - |
| 床仕様 | - |
| エレベータ | - |
| 駐車場設備 | - |
| その他 | 1階の物件 / スケルトン |
根津テラスの賃貸オフィス・事務所に関するお問い合わせ
根津テラスについて
東京都文京区根津1丁目に位置する「根津テラス」は、ビジネスシーンでの利用に最適な賃貸事務所物件です。この物件は、鉄筋コンクリート造の堅牢な構造を持ち、地上4階建ての建物です。1973年10月に竣工された歴史ある建物ですが、その分、風格と安定感を兼ね備えています。加えて、24時間利用可能なため、フレキシブルな働き方を支える環境が整っています。 根津テラスの最大の魅力は、その利便性にあります。最寄り駅である東京メトロ千代田線「根津」駅から徒歩わずか2分という好立地です。このアクセスの良さは、通勤の利便性を高めるだけでなく、ビジネスパートナーやクライアントを迎える際にも大きなアドバンテージとなります。周辺にはカフェや飲食店、コンビニエンスストアなどが充実しており、ランチや仕事後のリフレッシュにも困ることはありません。 また、根津は文京区の中でも歴史と文化が息づくエリアで、落ち着いた街並みが魅力です。根津神社や上野公園といった観光スポットも近く、ビジネスの合間に自然を感じたり、リフレッシュすることができます。さらに、東京の主要ビジネスエリアへのアクセスも良好で、渋谷や新宿、丸の内などへもスムーズに移動が可能です。 ビジネスの拠点としてオフィスを構えるにあたって、根津テラスはその立地条件と環境の良さから、多くのメリットを提供します。新たなビジネスをスタートさせたい方や、事業拡大に伴うオフィス移転を検討中の企業にとって、根津テラスは魅力的な選択肢となることでしょう。文京区の安定した環境と、根津の利便性を最大限に活用し、成功への一歩を踏み出してみませんか。
根津テラスのこだわり
自分で探すより問い合わせる方が早いことがあります
WEB非公開物件があるから
オーナー様のご希望により「WEBでは非公開」にしている物件があります。 それらはWEBでいくら検索しても見つかりません。 先ずは条件などお知らせ頂けましたら非公開物件含め ピッタリのオフィスをご提案させて頂きます。 無理なお勧めはしておりませんので、お気軽にお問い合わせください。
対面でのご相談も受け付けております
ご来店も歓迎です
オフィス移転は社内・社外ともに非公開に行われることが殆どです。そのためアットオフィスでは、基本的に訪問によるコンサルティングを行っておりますが、ご来店の相談も歓迎です。お一人おひとりに親身にご対応させて頂きたい為、要予約とさせて頂いております。ご来店の際は先ずは下記よりご予約下さい。
読込中...
白山/千石/根津エリアで根津テラスに似た条件の物件
読込中...
| 取扱様態 | 仲介 |
|---|---|
| 取扱会社 | 株式会社 アットオフィス |