入山プラザビル4階の賃貸情報
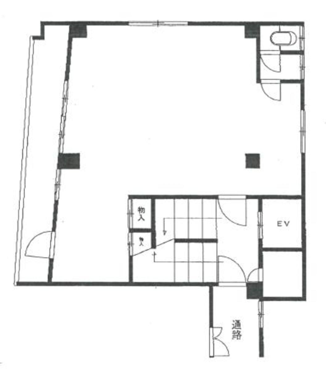
22.04 坪 (72.86m²)
※このサイトに記載がある賃貸条件は、敷金・保証金などの預かり金を除き、別途消費税がかかります。
入山プラザビルの建物概要
設備詳細
| 空調 | - |
|---|---|
| トイレ | - |
| 床仕様 | - |
| エレベータ | 1 基 |
| 駐車場設備 | - |
| その他 | 東京賃料が坪11000円以下 |
入山プラザビル4階の賃貸オフィス・事務所に関するお問い合わせ
入山プラザビルについて
入山プラザビルは、板橋区赤塚2丁目に位置する地上5階建ての建物です。東上本線「下赤塚駅」から徒歩1分、有楽町線「地下鉄赤塚駅」から徒歩2分と、複数の鉄道駅が近接する場所にあります。また、東上本線「成増駅」も徒歩圏内にあり、周辺エリアからのアクセスが可能です。建物内にはエレベーターが設置されており、移動の際に利用できます。周辺は駅前の落ち着いた雰囲気が感じられるエリアで、日々の業務や来訪者の動線を考慮した拠点づくりに適した環境が整っています。各階の構成や用途に合わせて柔軟なレイアウト計画が立てやすい点も特徴です。詳細はお問い合わせください。
入山プラザビルのこだわり
自分で探すより問い合わせる方が早いことがあります
WEB非公開物件があるから
オーナー様のご希望により「WEBでは非公開」にしている物件があります。 それらはWEBでいくら検索しても見つかりません。 先ずは条件などお知らせ頂けましたら非公開物件含め ピッタリのオフィスをご提案させて頂きます。 無理なお勧めはしておりませんので、お気軽にお問い合わせください。
対面でのご相談も受け付けております
ご来店も歓迎です
オフィス移転は社内・社外ともに非公開に行われることが殆どです。そのためアットオフィスでは、基本的に訪問によるコンサルティングを行っておりますが、ご来店の相談も歓迎です。お一人おひとりに親身にご対応させて頂きたい為、要予約とさせて頂いております。ご来店の際は先ずは下記よりご予約下さい。
板橋区エリアで入山プラザビルに似た条件の物件
読込中...
入山プラザビルと同じ最寄駅の物件
読込中...
| 取扱様態 | 仲介 |
|---|---|
| 取扱会社 | 株式会社 アットオフィス |