AGビル1階の賃貸情報
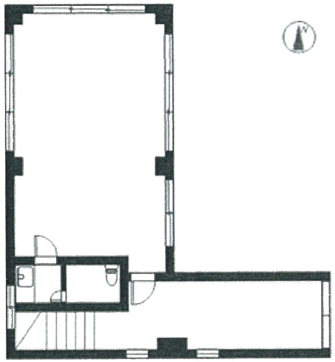
18.31 坪 (60.53m²)
※このサイトに記載がある賃貸条件は、敷金・保証金などの預かり金を除き、別途消費税がかかります。
AGビルの建物概要
設備詳細
| 空調 | - |
|---|---|
| トイレ | 男女共用トイレ・室内 |
| 床仕様 | - |
| エレベータ | - |
| 駐車場設備 | - |
| その他 | 新耐震基準 / 保証金・敷金+礼金が3か月以下 / 1階の物件 |
AGビル1階の賃貸オフィス・事務所に関するお問い合わせ
AGビルについて
### AGビルの魅力的なご紹介 皆様にご紹介するのは、豊島区巣鴨1丁目に位置する「AGビル」です。このビルは1989年に新耐震基準施工後に竣工された信頼性の高い物件です。オフィスとしての利用に最適で、駐車場も完備されております。駐車場の空き状況については、お気軽にお問い合わせください。 #### 立地とアクセス AGビルの所在地は、東京都豊島区巣鴨1丁目。最寄り駅はJR山手線と都営三田線が交差する「巣鴨駅」で、徒歩圏内に「千石駅」も利用可能です。ビルは白山通りから少し中に入った閑静なエリアに位置しており、静かで落ち着いた環境が整っています。大通りまで歩けば飲食店やコンビニも充実しており、ビジネスランチや急な買い物にも困りません。 #### 建物の概要 AGビルは3階建てのコンパクトな建物で、基準階は約18坪の賃貸オフィス物件となっています。特徴的なのは、丸い角の外観デザイン。この独自のデザインは視認性が高く、初めて訪れるお客様にも一目でわかります。エレベーターは設置されておりませんが、階段でのアクセスもスムーズに行えます。 #### 設備と特徴 AGビルのもう一つの大きな魅力は、ビル内に駐車場を完備している点です。これにより、車での通勤やビジネス移動が非常に便利になります。オフィス内はシンプルで使いやすい設計となっており、どんなビジネスにも対応できる柔軟性があります。 #### ビジネスにおける利点 AGビルの立地は、ビジネスの観点からも非常に優れています。巣鴨駅や千石駅からのアクセスが良好で、交通の便が非常に良いです。静かな環境で集中して業務に取り組むことができ、周囲には必要な施設も揃っているため、社員の働きやすさも向上します。また、ビルの外観が特徴的なため、来客時の案内も容易です。 #### お問い合わせ AGビルは、その利便性と快適さから、多くの企業様にご満足いただける物件です。駐車場の空き状況やその他の詳細については、お気軽にお問い合わせください。皆様からのお問い合わせを心よりお待ちしております。 以上が、AGビルのご紹介となります。このビルが皆様のビジネスにとって最高の環境を提供できることを確信しております。是非、ご検討ください。
AGビルのこだわり
自分で探すより問い合わせる方が早いことがあります
WEB非公開物件があるから
オーナー様のご希望により「WEBでは非公開」にしている物件があります。 それらはWEBでいくら検索しても見つかりません。 先ずは条件などお知らせ頂けましたら非公開物件含め ピッタリのオフィスをご提案させて頂きます。 無理なお勧めはしておりませんので、お気軽にお問い合わせください。
対面でのご相談も受け付けております
ご来店も歓迎です
オフィス移転は社内・社外ともに非公開に行われることが殆どです。そのためアットオフィスでは、基本的に訪問によるコンサルティングを行っておりますが、ご来店の相談も歓迎です。お一人おひとりに親身にご対応させて頂きたい為、要予約とさせて頂いております。ご来店の際は先ずは下記よりご予約下さい。
駒込/巣鴨/大塚エリアでAGビルに似た条件の物件
読込中...
AGビルと同じ最寄駅の物件
読込中...
| 取扱様態 | 仲介 |
|---|---|
| 取扱会社 | 株式会社 アットオフィス |