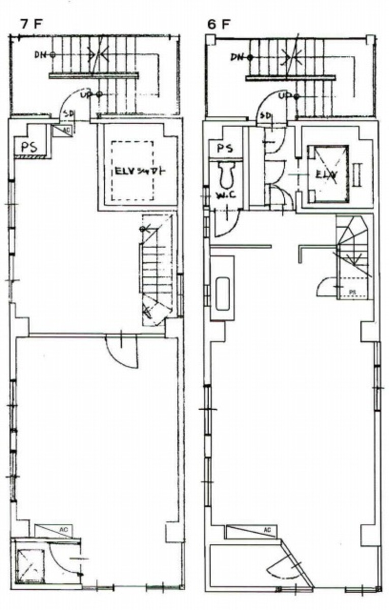
第5DMJビル6階の賃貸情報
26.74 坪 (88.4m²)
※このサイトに記載がある賃貸条件は、敷金・保証金などの預かり金を除き、別途消費税がかかります。
第5DMJビルの建物概要
設備詳細
| 空調 | 個別空調 |
|---|---|
| トイレ | - |
| 床仕様 | OA対応床(フリーアクセス) |
| エレベータ | 1 基 |
| 駐車場設備 | - |
| その他 | クリニック |
第5DMJビル6階の賃貸オフィス・事務所に関するお問い合わせ
第5DMJビルについて
第5DMJビルは、都心のビジネスエリアの心臓部に位置する千代田区九段南4丁目に誇りを持って立地しております。この優れたオフィスビルは、その立地のみならず、設計と機能性の両方で企業の皆様にとって理想的なオフィス環境を提供します。本文書では、第5DMJビルの特徴、立地、設備などを詳細にご紹介し、ビルが持つ独自の魅力とビジネスにおける利点を強調いたします。 第5DMJビルは、交通の便が非常に良い点が特徴です。複数の主要鉄道路線が乗り入れる駅が徒歩圏内にあり、東京都内はもちろん、近郊エリアへのアクセスも容易です。ビジネスにおいて、クライアントとの面会や外出が頻繁に必要となる企業にとって、この立地は大きな利点となります。 ビルの設計においては、現代的なオフィスのニーズに応えるための工夫が随所に見られます。広々としたオープンフロアプランを採用しており、テナントの企業が自由にレイアウトを変更できる柔軟性を持っています。これにより、チームのコラボレーションを促進し、生産性の向上を図ることが可能です。 また、第5DMJビルは、最新の設備を完備しております。高速インターネット接続、最新の空調システム、エネルギー効率の高い照明など、テナントの企業が快適に業務を行える環境を提供します。セキュリティ面でも、24時間体制のセキュリティサービスと監視カメラシステムを導入し、テナント企業とその従業員の安全を守ります。 さらに、第5DMJビルの周辺環境も魅力的です。ビジネス街でありながら、緑豊かな公園も近くにあり、働く人々にとってのリフレッシュスペースとして最適です。また、飲食店、カフェ、コンビニエンスストアなど、日々の生活に必要な施設が充実しており、オフィスでの生活がより快適になります。 第5DMJビルは、立地、設計、設備、周辺環境ともに、企業のビジネスをサポートするための全てを備えています。このビルを拠点とすることで、企業はそのポテンシャルを最大限に引き出し、事業の成功へとつなげることができるでしょう。今日、第5DMJビルで新たなビジネスの歴史を刻みませんか。
第5DMJビルのこだわり
自分で探すより問い合わせる方が早いことがあります
WEB非公開物件があるから
オーナー様のご希望により「WEBでは非公開」にしている物件があります。 それらはWEBでいくら検索しても見つかりません。 先ずは条件などお知らせ頂けましたら非公開物件含め ピッタリのオフィスをご提案させて頂きます。 無理なお勧めはしておりませんので、お気軽にお問い合わせください。
対面でのご相談も受け付けております
ご来店も歓迎です
オフィス移転は社内・社外ともに非公開に行われることが殆どです。そのためアットオフィスでは、基本的に訪問によるコンサルティングを行っておりますが、ご来店の相談も歓迎です。お一人おひとりに親身にご対応させて頂きたい為、要予約とさせて頂いております。ご来店の際は先ずは下記よりご予約下さい。
番町/麹町/平河町エリアで第5DMJビルに似た条件の物件
読込中...
第5DMJビルと同じ最寄駅の物件
読込中...
| 取扱様態 | 仲介 |
|---|---|
| 取扱会社 | 株式会社 アットオフィス |