神田美倉町ビル13階の賃貸情報
12.6 坪 (41.66m²)
※このサイトに記載がある賃貸条件は、敷金・保証金などの預かり金を除き、別途消費税がかかります。
神田美倉町ビルの建物概要
設備詳細
| 空調 | 個別空調 |
|---|---|
| トイレ | - |
| 床仕様 | OA対応床(フリーアクセス) |
| エレベータ | 1 基 / エレベーター有 |
| 駐車場設備 | - |
| その他 | オートロック / 機械警備 / 24時間利用可 / 光ファイバー / 新耐震基準 / 大通り面する |
神田美倉町ビル13階の賃貸オフィス・事務所に関するお問い合わせ
神田美倉町ビルについて
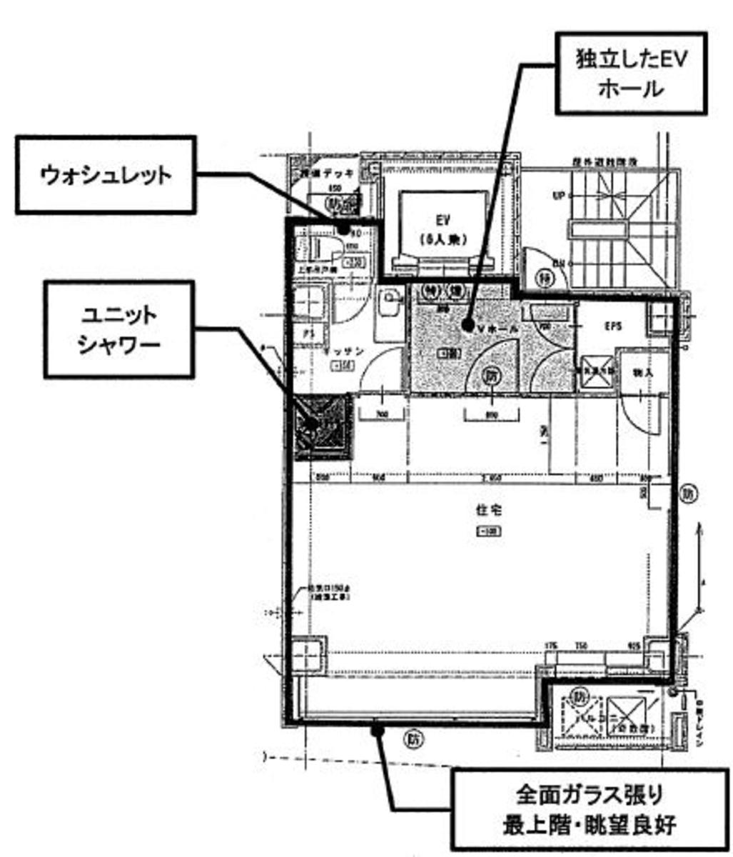
東京都心、千代田区神田美倉町に位置する築浅ビル「神田美倉町ビル」は、その利便性とセキュリティーの高さで、今注目を集めています。このビルは、オートロック、エレベーター不停止機能を備え、セキュリティ面での安心感が格別です。さらに、日当たりが良好で、昭和通り沿いの前面ガラス張りのデザインは、視認性とアクセシビリティの両方を兼ね備えています。 立地においては、複数の鉄道駅が徒歩圏内にあります。神田駅、小伝馬町駅、新日本橋駅まで徒歩5分、岩本町駅まで徒歩7分というアクセスの良さは、都心でのビジネス運営において大きな利点となります。これにより、従業員はもちろん、来客もスムーズに訪れることが可能です。 建物自体は、1フロア約10坪というコンパクトながらも効率的なスペース設計が特徴です。ワンフロアワンテナント制を採用しており、プライヴァシーと専有性が保たれる環境でビジネスを行うことが可能です。このような小規模ながらも独立したフロアを提供する物件は、非常に希少価値が高いと言えます。 初期費用の面でも、周辺相場と比較して抑えられている点が魅力の一つです。スタートアップ企業や中小企業にとって、初期投資は大きな負担となりがちですが、神田美倉町ビルではその点を軽減できる可能性があります。 設備面では、オートロック、エレベーターの不停止機能に加え、日当たりの良い明るいオフィス空間が確保されています。このような設備は、働く従業員のモチベーション向上にも寄与し、企業の生産性向上に繋がると考えられます。 神田美倉町ビルは、その立地、設備、コストパフォーマンスの良さを兼ね備え、都心でビジネスを行う企業にとって最適な選択肢の一つとなるでしょう。小規模ながらも独立性を重視するビジネスオーナーや、初期投資を抑えてスタートしたい企業にお勧めの物件です。
神田美倉町ビルのこだわり
自分で探すより問い合わせる方が早いことがあります
WEB非公開物件があるから
オーナー様のご希望により「WEBでは非公開」にしている物件があります。 それらはWEBでいくら検索しても見つかりません。 先ずは条件などお知らせ頂けましたら非公開物件含め ピッタリのオフィスをご提案させて頂きます。 無理なお勧めはしておりませんので、お気軽にお問い合わせください。
対面でのご相談も受け付けております
ご来店も歓迎です
オフィス移転は社内・社外ともに非公開に行われることが殆どです。そのためアットオフィスでは、基本的に訪問によるコンサルティングを行っておりますが、ご来店の相談も歓迎です。お一人おひとりに親身にご対応させて頂きたい為、要予約とさせて頂いております。ご来店の際は先ずは下記よりご予約下さい。
神田/秋葉原エリアで神田美倉町ビルに似た条件の物件
読込中...
神田美倉町ビルと同じ最寄駅の物件
読込中...
| 取扱様態 | 仲介 |
|---|---|
| 取扱会社 | 株式会社 アットオフィス |