※このサイトに記載がある賃貸条件は、敷金・保証金などの預かり金を除き、別途消費税がかかります。
物件情報
設備詳細
| 空調 | - |
|---|---|
| トイレ | - |
| 床仕様 | - |
| エレベータ | 1 基 |
| 駐車場設備 | - |
| その他 | 新耐震基準 / クリニック / 1階の物件 |
サンライズビル三ツ境の賃貸オフィス・事務所に関するお問い合わせ
サンライズビル三ツ境について
サンライズビルは、横浜市瀬谷区三ツ境に位置する地上5階建ての建物です。相模鉄道本線「三ツ境駅」から徒歩2分の距離にあり、駅周辺エリアへのアクセスがしやすい立地となっています。そのほか、「希望ヶ丘駅」や「瀬谷駅」も徒歩圏内にあり、複数の駅から利用が可能です。建物にはエレベーターが設置されており、各階への移動が容易です。 駅近くに所在することで、周辺には様々な店舗やサービスが点在しているエリアです。ビジネスの拠点や事業所としての利用を検討する際に、近隣施設との連携や人の流れを意識した使い方が想定できます。また、5階建ての構造はテナントやオフィスとしてフロアごとの利用にも適しています。 交通量のあるエリアに立地し、事業活動に必要な移動や訪問などにも便利な環境です。駅からのアクセス性と建物の規模感を活かし、業態や規模に応じた多様な使い方が可能です。詳細はお問い合わせください。
サンライズビル三ツ境のこだわり
自分で探すより問い合わせる方が早いことがあります
WEB非公開物件があるから
オーナー様のご希望により「WEBでは非公開」にしている物件があります。 それらはWEBでいくら検索しても見つかりません。 先ずは条件などお知らせ頂けましたら非公開物件含め ピッタリのオフィスをご提案させて頂きます。 無理なお勧めはしておりませんので、お気軽にお問い合わせください。
対面でのご相談も受け付けております
ご来店も歓迎です
オフィス移転は社内・社外ともに非公開に行われることが殆どです。そのためアットオフィスでは、基本的に訪問によるコンサルティングを行っておりますが、ご来店の相談も歓迎です。お一人おひとりに親身にご対応させて頂きたい為、要予約とさせて頂いております。ご来店の際は先ずは下記よりご予約下さい。
募集終了のテナント区画
| 階数 | 坪数 | 賃料 + 共益費 | 敷金/礼金敷金 礼金 | 検討 |
|---|---|---|---|---|
| 3階 | 54.92坪 (181.55m²) | 募集終了 | - | - |
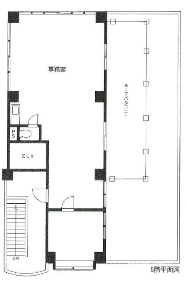
| 5階 | 22.09坪 (73.05m²) | 募集終了 | - | - |
読込中...
瀬谷区エリアでサンライズビル三ツ境に似た条件の物件
読込中...
| 取扱様態 | 仲介 |
|---|---|
| 取扱会社 | 株式会社 アットオフィス |