※このサイトに記載がある賃貸条件は、敷金・保証金などの預かり金を除き、別途消費税がかかります。
物件情報
設備詳細
| 空調 | 個別空調 |
|---|---|
| トイレ | - |
| 床仕様 | OA対応床(フリーアクセス) |
| エレベータ | 1 基 |
| 駐車場設備 | - |
| その他 | 機械警備 / 24時間利用可 / SOHO/マンション / 光ファイバー / 新耐震基準 / 居抜き / オフィス居抜き特集 |
Jプロ半蔵門の賃貸オフィス・事務所に関するお問い合わせ
Jプロ半蔵門について
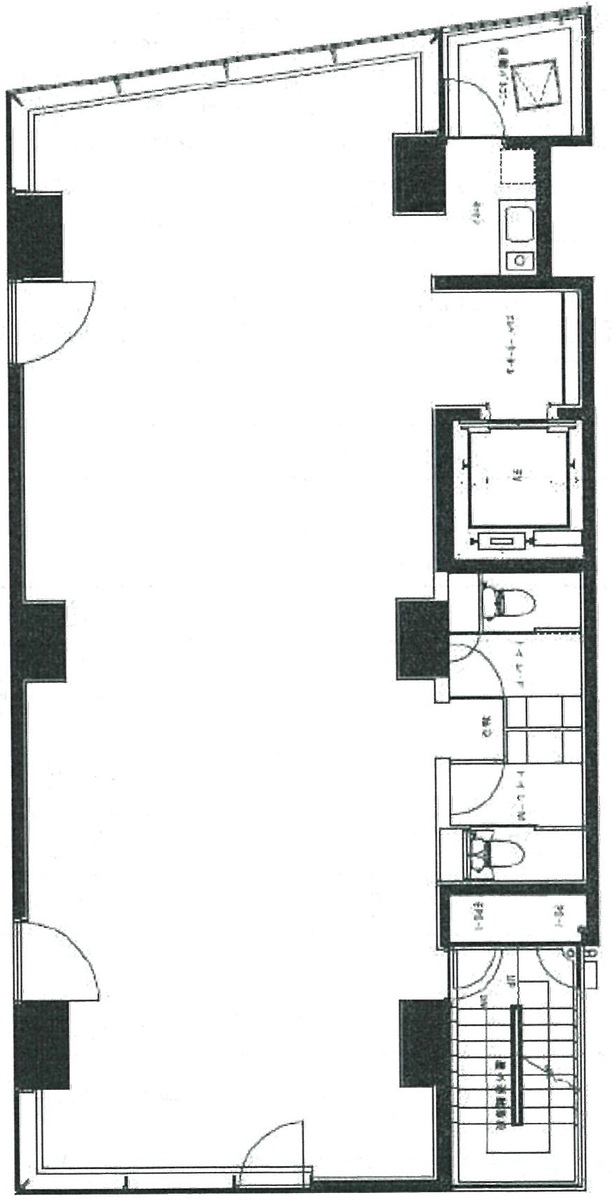
Jプロ半蔵門ビル(旧:プライムビル)は、東京都千代田区隼町に位置し、2006年に新耐震基準に基づいて建設された賃貸オフィスビルです。この物件は、東京メトロ半蔵門線の半蔵門駅から徒歩わずか1分という絶好の立地にあります。さらに、麹町駅と永田町駅も徒歩10分圏内に位置し、3駅3路線を利用することが可能で、ビジネスの拠点としてのアクセスの良さは抜群です。 物件は光ケーブル対応で、エントランスにはオートロックシステムが設置されており、24時間の機械警備体制により安心して働くことができます。また、室内はLED照明を完備し、2面採光で自然光が十分に取り入れられる設計となっており、明るく快適なオフィス環境を提供します。特に7階と8階にはメゾネットタイプの区画があり、バルコニーとシャワールーム付きで、他のフロアにはない特別な設備を備えています。 基準となるフロア面積は約35坪で、ほぼ長方形の間取りをしており、募集時期によっては複数フロアの一括賃貸が可能です。ビル内には男女別トイレ、給湯設備を完備し、オフィス内の快適さを追求しています。さらに、ビル内に駐車場がありますので、お車での通勤も考慮されています。 周辺環境も充実しており、ビルのすぐ近くにはコンビニや飲食店が複数あり、銀行や郵便局も徒歩5分程度の距離に位置しています。この立地はビジネスだけでなく、日々の生活にも便利なポイントを数多く備えています。 Jプロ半蔵門ビルは、優れた設備とセキュリティ、また交通の利便性を兼ね備えた、ビジネスの拠点として最適なオフィスビルです。新耐震基準に対応した安全性、快適なオフィス環境を求める企業にとって、この物件は魅力的な選択肢の一つでしょう。
Jプロ半蔵門のこだわり
自分で探すより問い合わせる方が早いことがあります
WEB非公開物件があるから
オーナー様のご希望により「WEBでは非公開」にしている物件があります。 それらはWEBでいくら検索しても見つかりません。 先ずは条件などお知らせ頂けましたら非公開物件含め ピッタリのオフィスをご提案させて頂きます。 無理なお勧めはしておりませんので、お気軽にお問い合わせください。
対面でのご相談も受け付けております
ご来店も歓迎です
オフィス移転は社内・社外ともに非公開に行われることが殆どです。そのためアットオフィスでは、基本的に訪問によるコンサルティングを行っておりますが、ご来店の相談も歓迎です。お一人おひとりに親身にご対応させて頂きたい為、要予約とさせて頂いております。ご来店の際は先ずは下記よりご予約下さい。
募集終了のテナント区画
| 階数 | 坪数 | 賃料 + 共益費 | 敷金/礼金敷金 礼金 | 検討 |
|---|---|---|---|---|
| 1階 | 25.16坪 (83.18m²) | 募集終了 | - | - |
| 2階 | 32.04坪 (105.93m²) | 募集終了 | - | - |
| 3階 | 34.75坪 (114.89m²) | 募集終了 | - | - |
| 4階 | 34.75坪 (114.89m²) | 募集終了 | - | - |
| 5階 | 34.75坪 (114.89m²) | 募集終了 | - | - |
| 6階 | 34.75坪 (114.89m²) | 募集終了 | - | - |
| 7階 | 31.76坪 (104.99m²) | 募集終了 | - | - |
| 8階 | 42.62坪 (140.95m²) | 募集終了 | - | - |
| 8階 | 10.86坪 (35.9m²) | 募集終了 | - | - |
読込中...
番町/麹町/平河町エリアでJプロ半蔵門に似た条件の物件
読込中...
| 取扱様態 | 仲介 |
|---|---|
| 取扱会社 | 株式会社 アットオフィス |