八重洲香川ビルディングの賃料条件
| 階数 | 坪数 | 賃料 + 共益費 | 敷金/礼金敷金 礼金 | 検討 |
|---|---|---|---|---|
| 5階 | 51.32坪 (169.65m²) | お問合せ下さい (坪:-) | 相談 無相談/無 | |
| 7階 | 51.32坪 (169.65m²) | お問合せ下さい (坪:-) | 相談 無相談/無 |
※このサイトに記載がある賃貸条件は、敷金・保証金などの預かり金を除き、別途消費税がかかります。
物件情報
設備詳細
| 空調 | 個別空調 |
|---|---|
| トイレ | 男女別トイレ室内 |
| 床仕様 | OA対応床(フリーアクセス) |
| エレベータ | 2 基 |
| 駐車場設備 | - |
| その他 | 24時間利用可 / 光ファイバー / 新耐震基準 / クリニック |
八重洲香川ビルディングの賃貸オフィス・事務所に関するお問い合わせ
八重洲香川ビルディングについて
八重洲香川ビルは、ビジネスと自然美の融合が魅力的な一等地に位置する賃貸オフィスビルです。このビルは、都心の活気と桜の美しさが共存するさくら通り沿いにあり、洗練されたガラス張りの外観が印象的です。徒歩わずか3分でJR線「東京」駅にアクセス可能であり、「日本橋」駅や「三越前」駅も至近にあるため、どこへ行くにも非常に便利な立地条件を誇ります。 ビル内部は、上品で清潔感あふれる内装が特徴で、エントランスも訪れる人々を優雅な雰囲気で迎えます。長方形のメインスペースは、柔軟なオフィスレイアウトに対応可能であり、大きな窓からは豊富な自然光が注ぎ、快適な作業環境を提供します。ビルディングとしてのスペックも高く、現代のビジネスニーズに応える設備が整っています。 さらに、八重洲香川ビルは、約150本の桜が植えられているさくら通りに面しており、春には圧倒的な美しさを楽しむことができます。このように、自然の美しさと都会の快適さが融合したこのビルは、ビジネスの場としてだけでなく、働く人々にとっての癒しの空間としても機能します。 立地、設備、環境の全てにおいて一流を求める企業にとって、八重洲香川ビルは理想的な選択肢です。アクセスの良さは営業活動や顧客との面会にとって大きな利点となり、上品な内装と設備は社員が快適に働ける環境を提供します。そして、季節の移ろいを身近に感じられる立地は、ビジネスの成功と共に社員の満足度も高めるでしょう。 八重洲香川ビルは、ただのオフィスビルではありません。それは、ビジネスの成功を促進し、働く人々にとっての憩いの場を提供する、独自の魅力を持った賃貸オフィスビルです。この素晴らしい環境で、あなたのビジネスを次のレベルへと導いてみませんか?
八重洲香川ビルディングのこだわり
自分で探すより問い合わせる方が早いことがあります
WEB非公開物件があるから
オーナー様のご希望により「WEBでは非公開」にしている物件があります。 それらはWEBでいくら検索しても見つかりません。 先ずは条件などお知らせ頂けましたら非公開物件含め ピッタリのオフィスをご提案させて頂きます。 無理なお勧めはしておりませんので、お気軽にお問い合わせください。
対面でのご相談も受け付けております
ご来店も歓迎です
オフィス移転は社内・社外ともに非公開に行われることが殆どです。そのためアットオフィスでは、基本的に訪問によるコンサルティングを行っておりますが、ご来店の相談も歓迎です。お一人おひとりに親身にご対応させて頂きたい為、要予約とさせて頂いております。ご来店の際は先ずは下記よりご予約下さい。
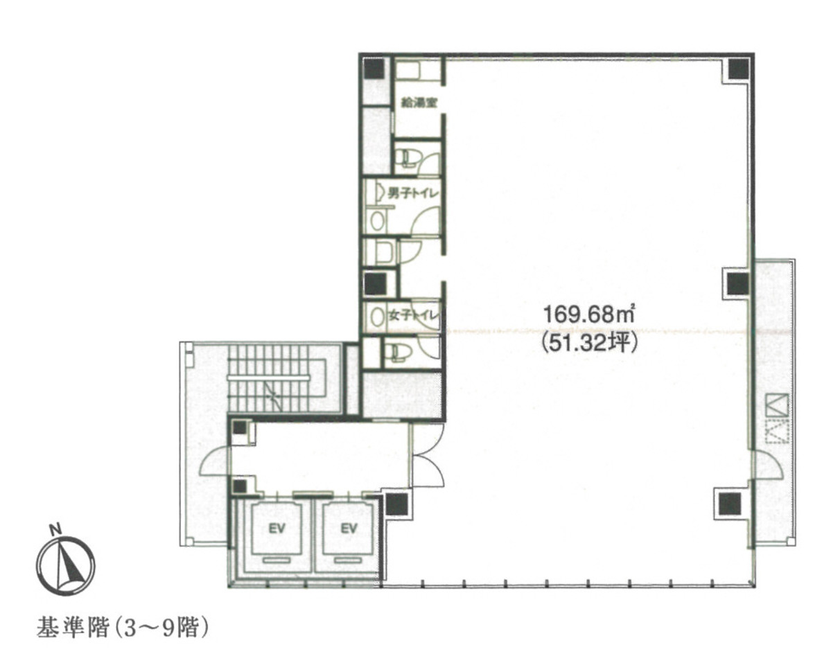
募集終了のテナント区画
| 階数 | 坪数 | 賃料 + 共益費 | 敷金/礼金敷金 礼金 | 検討 |
|---|---|---|---|---|
| 3階 | 51.33坪 (169.68m²) | 募集終了 | - | - |
| 4階 | 51.33坪 (169.68m²) | 募集終了 | - | - |
| 6階 | 51.33坪 (169.68m²) | 募集終了 | - | - |
| 8階 | 51.32坪 (169.65m²) | 募集終了 | - | - |
| 9階 | 51.33坪 (169.68m²) | 募集終了 | - | - |
| 10階 | 20.92坪 (69.15m²) | 募集終了 | - | - |
読込中...
近くのエリアで探してみる
八重洲/日本橋/三越前エリアで八重洲香川ビルディングに似た条件の物件
読込中...
| 取扱様態 | 仲介 |
|---|---|
| 取扱会社 | 株式会社 アットオフィス |