大広ビル10階の賃貸情報
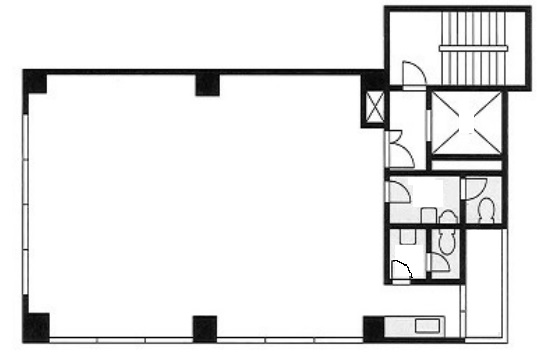
28.5 坪 (94.21m²)
※このサイトに記載がある賃貸条件は、敷金・保証金などの預かり金を除き、別途消費税がかかります。
大広ビルの建物概要
設備詳細
| 空調 | 個別空調 |
|---|---|
| トイレ | 男女別トイレ室内 |
| 床仕様 | - |
| エレベータ | 1 基 |
| 駐車場設備 | - |
| その他 | 機械警備 / 光ファイバー / 新耐震基準 / クリニック / スケルトン |
大広ビルについて
大広ビル(中央区築地)は、東京のビジネス中心地に位置する、1988年竣工の高品質オフィスビルです。地上10階建てのこのビルは、新大橋通りに面し、築地駅からわずか徒歩1分という、ビジネスにおけるアクセスの良さを誇ります。さらには、新富町駅と東銀座駅も徒歩圏内にあり、東京メトロ日比谷線をはじめ複数の路線が利用可能で、ビジネスチャンスを広げる絶好の立地条件を備えています。 ビル内の設備においては、最新の光ケーブルがMDFまで引き込まれており、高速インターネット環境が整っています。これにより、テレワークや大容量データのやり取りもスムーズに行え、効率的なビジネス展開が可能です。また、個別空調システムにより、オフィス内の快適な環境を一年中保つことができます。これは、従業員の働きやすさを追求する企業にとって、非常に重要なポイントです。 セキュリティ面では、機械警備システムを導入しており、入居企業と従業員の安全を守る体制が整っています。また、男女別のトイレ設備や、エレベーター1基の設置など、利便性にも配慮された設計となっています。 大広ビルの周辺環境は、ビジネスに最適なだけでなく、生活面でも魅力的です。築地本願寺や築地市場といった観光スポットが近くにあり、ランチタイムや仕事終わりのリフレッシュに最適な環境です。更に、隣にコンビニがあり、裏手には主要な都市銀行の支店が並ぶなど、日々の生活に必要な施設が充実しています。 基準階約30坪のオフィススペースは、日当たりが良く、長方形の形状でレイアウトしやすい設計です。これにより、様々な業種の企業が自社のイメージやニーズに合わせたオフィス環境を構築できます。 大広ビルは、優れた立地、高品質な設備、安全性、そして快適な周辺環境を兼ね備えたビルです。これらの特性は、ビジネスの成功を追求する企業にとって、大きな利点となります。高いスペックと利便性を求める企業にとって、大広ビルはぜひ検討すべき賃貸事務所物件です。
自分で探すより問い合わせる方が早いことがあります
WEB非公開物件があるから
オーナー様のご希望により「WEBでは非公開」にしている物件があります。 それらはWEBでいくら検索しても見つかりません。 先ずは条件などお知らせ頂けましたら非公開物件含め ピッタリのオフィスをご提案させて頂きます。 無理なお勧めはしておりませんので、お気軽にお問い合わせください。
対面でのご相談も受け付けております
ご来店も歓迎です
オフィス移転は社内・社外ともに非公開に行われることが殆どです。そのためアットオフィスでは、基本的に訪問によるコンサルティングを行っておりますが、ご来店の相談も歓迎です。お一人おひとりに親身にご対応させて頂きたい為、要予約とさせて頂いております。ご来店の際は先ずは下記よりご予約下さい。
新富/築地エリアで大広ビルに似た条件の物件
読込中...
大広ビルと同じ最寄駅の物件
読込中...
| 取扱様態 | 仲介 |
|---|---|
| 取扱会社 | 株式会社 アットオフィス |