※このサイトに記載がある賃貸条件は、敷金・保証金などの預かり金を除き、別途消費税がかかります。
物件情報
設備詳細
| 空調 | 個別空調 |
|---|---|
| トイレ | - |
| 床仕様 | - |
| エレベータ | 2 基 |
| 駐車場設備 | - |
| その他 | 新耐震基準 |
Y・Sビルの賃貸オフィス・事務所に関するお問い合わせ
Y・Sビルについて
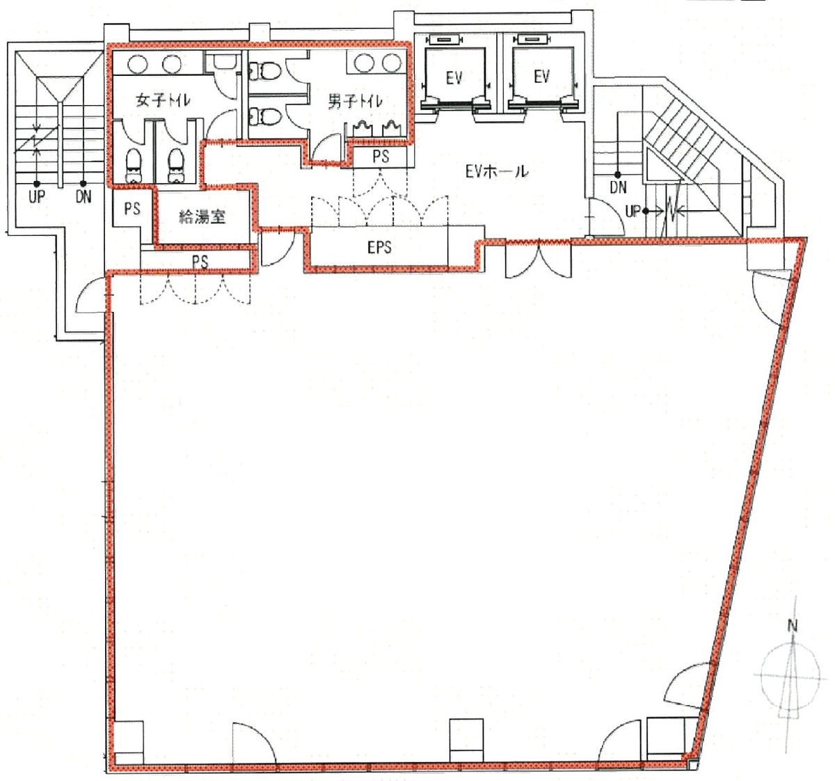
東京都中野区本町に位置する「Y・Sビル」は、ビジネスの拠点として最適な賃貸オフィス物件です。この物件は1993年に竣工した鉄骨鉄筋コンクリート(SRC)構造の地上8階、地下1階建てのビルで、新耐震基準を満たしています。物件は山手通りに面しており、窓が多いため、自然光がたっぷりと差し込み、明るい作業環境を提供します。各階に個別空調と男女別トイレが完備されており、執務スペース外に水回りが分離されているため、快適に業務に集中できる環境が整っています。 Y・Sビルは、都営大江戸線「西新宿五丁目駅」から徒歩6分、東京メトロ丸ノ内線「中野坂上駅」から徒歩5分という便利な立地にあります。両駅からのアクセスが良く、都心への通勤や移動もスムーズに行えます。周辺にはマンションが多く、生活の利便性も高いエリアです。ビルの目の前には首都高速道路が通っており、交通の便が良い一方で、音や眺望については内見時に確認することをお勧めします。近隣にはコンビニエンスストアがあり、日常の買い物にも便利です。 この物件は、60坪程度の区画が豊富にあり、柱がないため、レイアウトの自由度が高い点も魅力です。機械警備と有人警備が導入されており、セキュリティ面でも安心です。また、敷地内には機械式駐車場が併設されており、車を利用する方にも便利です。24時間利用可能なオフィスであるため、フレキシブルな働き方にも対応しています。 ビジネスの拠点としてY・Sビルを選ぶメリットは、利便性の高い立地と快適なオフィス環境です。周辺は静かな住宅街でありながら、主要なビジネスエリアへのアクセスが良く、ビジネスチャンスを広げる拠点として非常に魅力的です。中野区本町という住所は、商業と住居のバランスが取れたエリアで、従業員の通勤や生活の質を向上させることができるでしょう。 このように、Y・Sビルは、ビジネスを展開する上で必要な機能と利便性を兼ね備えたオフィス物件です。開業やオフィスの移転を検討している方にとって、理想的な選択肢となるでしょう。お問い合わせはお気軽にどうぞ。弊社での契約実績もあり、安心してご相談いただけます。
Y・Sビルのこだわり
自分で探すより問い合わせる方が早いことがあります
WEB非公開物件があるから
オーナー様のご希望により「WEBでは非公開」にしている物件があります。 それらはWEBでいくら検索しても見つかりません。 先ずは条件などお知らせ頂けましたら非公開物件含め ピッタリのオフィスをご提案させて頂きます。 無理なお勧めはしておりませんので、お気軽にお問い合わせください。
対面でのご相談も受け付けております
ご来店も歓迎です
オフィス移転は社内・社外ともに非公開に行われることが殆どです。そのためアットオフィスでは、基本的に訪問によるコンサルティングを行っておりますが、ご来店の相談も歓迎です。お一人おひとりに親身にご対応させて頂きたい為、要予約とさせて頂いております。ご来店の際は先ずは下記よりご予約下さい。
募集終了のテナント区画
| 階数 | 坪数 | 賃料 + 共益費 | 敷金/礼金敷金 礼金 | 検討 |
|---|---|---|---|---|
| B1階 | 56坪 (185.12m²) | 募集終了 | - | - |
| 1階 | 36.63坪 (121.09m²) | 募集終了 | - | - |
| 4階 | 60坪 (198.35m²) | 募集終了 | - | - |
| 5階 | 60坪 (198.35m²) | 募集終了 | - | - |
| 6階 | 60坪 (198.35m²) | 募集終了 | - | - |
| 7階 | 60坪 (198.35m²) | 募集終了 | - | - |
| 8階 | 60坪 (198.35m²) | 募集終了 | - | - |
読込中...
中野区エリアでY・Sビルに似た条件の物件
読込中...
| 取扱様態 | 仲介 |
|---|---|
| 取扱会社 | 株式会社 アットオフィス |