紅屋茗荷谷ビル3階の賃貸情報
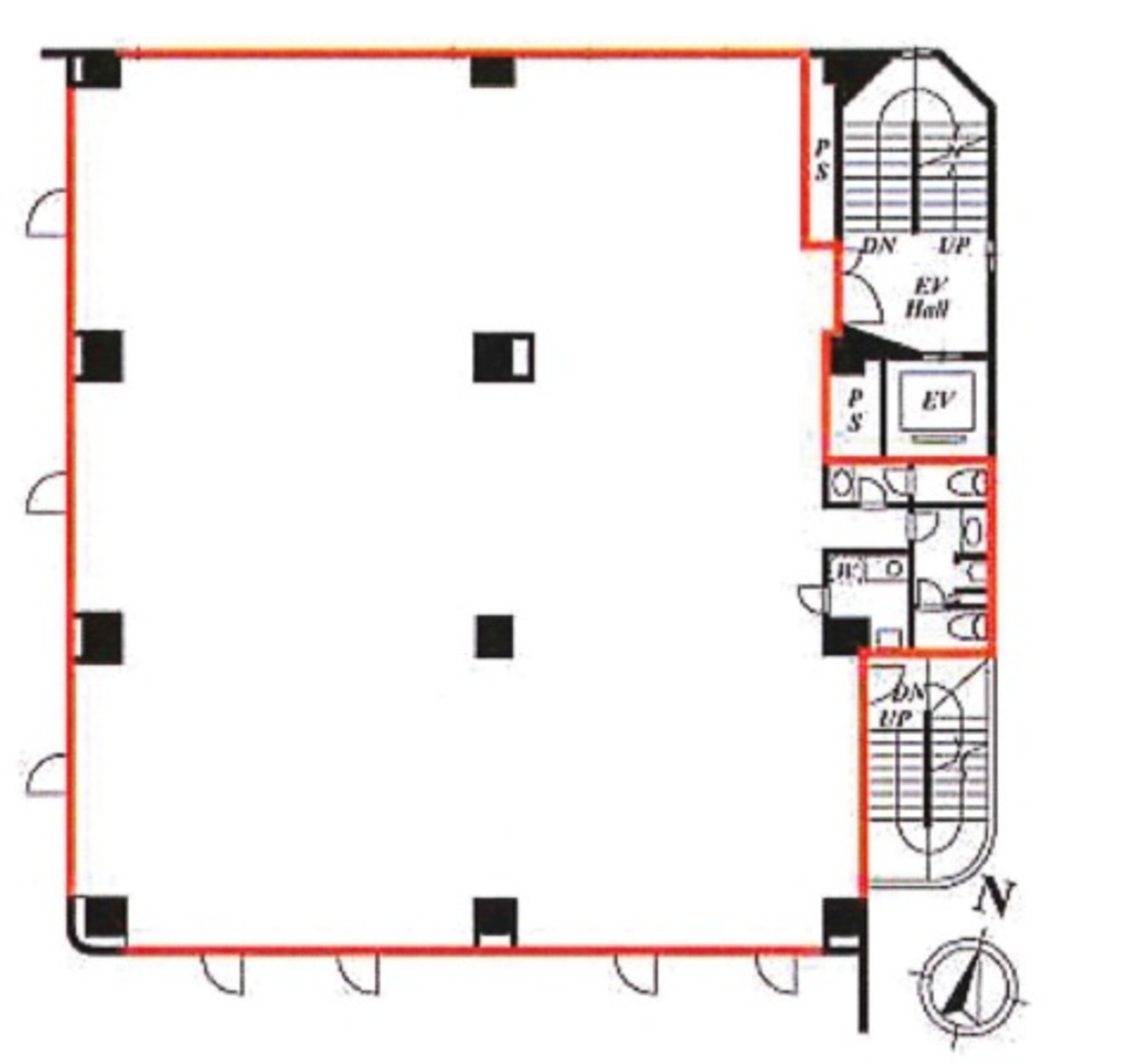
84.47 坪 (279.24m²)
※このサイトに記載がある賃貸条件は、敷金・保証金などの預かり金を除き、別途消費税がかかります。
紅屋茗荷谷ビルの建物概要
設備詳細
| 空調 | 個別空調 |
|---|---|
| トイレ | - |
| 床仕様 | OA対応床(フリーアクセス) |
| エレベータ | 1 基 |
| 駐車場設備 | 空有 |
| その他 | 新耐震基準 / クリニック / 東京賃料が坪11000円以下 |
紅屋茗荷谷ビルについて
【吉田ビルの魅力とその特徴】 吉田ビルは、1992年に文京区大塚3丁目に竣工された耐震性に優れたオフィスビルです。このビルは、最新の耐震基準に則って建設されたため、安全面での信頼性が非常に高いのが特長です。オフィスビルとしての機能性に加え、月極駐車場をビル内に備えているため、車通勤される方々にとっても非常に便利です。利用可能な駐車スペースについては、事前にお問い合わせいただくことをお勧めします。 立地においても、吉田ビルは文京区の中心部に位置し、周辺には多数の企業や商業施設が集まる活気あふれるエリアです。ビルから少し歩けば、茗荷谷駅や護国寺駅へのアクセスも可能で、都心への移動もスムーズに行えます。ビルの外観は明るい石造りで、高いグレード感を放っており、訪れるクライアントを印象付けることでしょう。 内部についても特筆すべき点が多々あります。吉田ビルのオフィスフロアは約80坪と広々としており、3面採光による明るい作業環境が確保されています。これにより、働くスタッフの創造性と生産性の向上が期待できます。また、真四角に近いオフィス空間は、レイアウトの自由度が高く、多様なオフィススタイルに対応可能です。 さらに、地元の中高生が通う個別指導塾が入居していることから、ビルは常に活気にあふれ、人の出入りも多いですが、騒がしいと感じることはありません。これは、ビルが提供する快適な環境が保たれている証とも言えるでしょう。 文京区大塚に位置するこの吉田ビルは、その耐震性、立地の良さ、広々とした快適なオフィス空間、そして便利な設備が整った賃貸オフィスビルとして、多くのビジネスオーナーにとって魅力的な選択肢となることでしょう。ビジネスの拠点として、または新たな事業展開の場として、ぜひ一度、吉田ビルをご検討いただければと思います。
自分で探すより問い合わせる方が早いことがあります
WEB非公開物件があるから
オーナー様のご希望により「WEBでは非公開」にしている物件があります。 それらはWEBでいくら検索しても見つかりません。 先ずは条件などお知らせ頂けましたら非公開物件含め ピッタリのオフィスをご提案させて頂きます。 無理なお勧めはしておりませんので、お気軽にお問い合わせください。
対面でのご相談も受け付けております
ご来店も歓迎です
オフィス移転は社内・社外ともに非公開に行われることが殆どです。そのためアットオフィスでは、基本的に訪問によるコンサルティングを行っておりますが、ご来店の相談も歓迎です。お一人おひとりに親身にご対応させて頂きたい為、要予約とさせて頂いております。ご来店の際は先ずは下記よりご予約下さい。
湯島/本郷/後楽園エリアで紅屋茗荷谷ビルに似た条件の物件
読込中...
紅屋茗荷谷ビルと同じ最寄駅の物件
読込中...
| 取扱様態 | 仲介 |
|---|---|
| 取扱会社 | 株式会社 アットオフィス |