リバティー新横浜ビル6階の賃貸情報
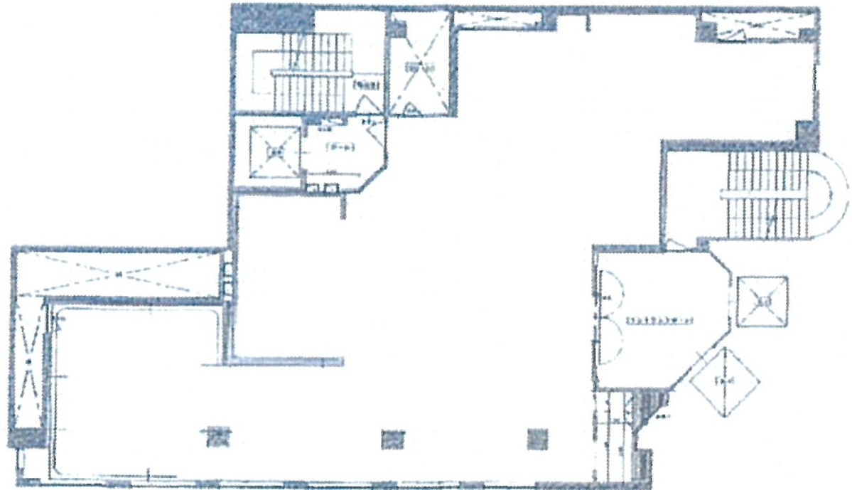
78.65 坪 (260m²)
※このサイトに記載がある賃貸条件は、敷金・保証金などの預かり金を除き、別途消費税がかかります。
リバティー新横浜ビルの建物概要
設備詳細
| 空調 | - |
|---|---|
| トイレ | - |
| 床仕様 | - |
| エレベータ | 3 基 |
| 駐車場設備 | - |
| その他 | 新耐震基準 / スケルトン / 神奈川賃料が10000円以下 / 店舗可(飲食可) |
リバティー新横浜ビル6階の賃貸オフィス・事務所に関するお問い合わせ
リバティー新横浜ビルについて
リバティー新横浜は、新横浜3丁目にあるオフィスビルです。新横浜駅から徒歩4分の駅近物件です。菊名駅からは徒歩19分です。1991年に竣工しました。鉄骨鉄筋コンクリート造により耐震性に優れています。個別空調付きです。エレベーターが2基あります。店舗や飲食店、クリニック向けの物件です。内装のないスケルトン物件です。周辺には飲食店やコンビニ、ショッピングモールがあります。大通りの交差点に位置しており、見通しの良い場所です。シティホテルやアミューズメント施設が集まる商業地のため、移動にも便利なエリアです。
自分で探すより問い合わせる方が早いことがあります
WEB非公開物件があるから
オーナー様のご希望により「WEBでは非公開」にしている物件があります。 それらはWEBでいくら検索しても見つかりません。 先ずは条件などお知らせ頂けましたら非公開物件含め ピッタリのオフィスをご提案させて頂きます。 無理なお勧めはしておりませんので、お気軽にお問い合わせください。
対面でのご相談も受け付けております
ご来店も歓迎です
オフィス移転は社内・社外ともに非公開に行われることが殆どです。そのためアットオフィスでは、基本的に訪問によるコンサルティングを行っておりますが、ご来店の相談も歓迎です。お一人おひとりに親身にご対応させて頂きたい為、要予約とさせて頂いております。ご来店の際は先ずは下記よりご予約下さい。
港北区エリアでリバティー新横浜ビルに似た条件の物件
読込中...
リバティー新横浜ビルと同じ最寄駅の物件
読込中...
| 取扱様態 | 仲介 |
|---|---|
| 取扱会社 | 株式会社 アットオフィス |