※このサイトに記載がある賃貸条件は、敷金・保証金などの預かり金を除き、別途消費税がかかります。
物件情報
設備詳細
| 空調 | 個別空調 |
|---|---|
| トイレ | - |
| 床仕様 | - |
| エレベータ | 1 基 |
| 駐車場設備 | - |
| その他 | オートロック / 24時間利用可 / 管理人常駐 / SOHO/マンション / 光ファイバー |
新宿光陽ビルの賃貸オフィス・事務所に関するお問い合わせ
新宿光陽ビルについて
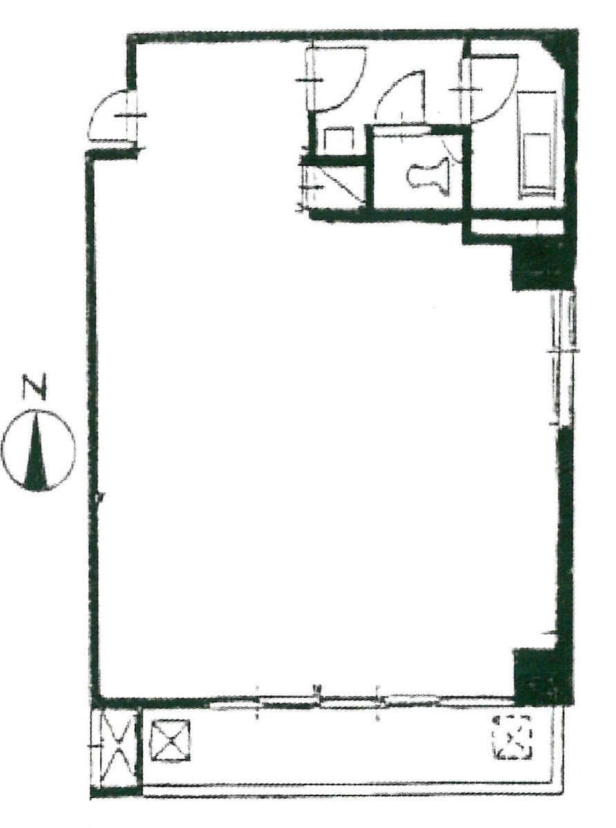
新宿光陽ビルを紹介させていただきます。このビルは、都会の中心、新宿区新宿5丁目に位置し、新宿三丁目駅からわずか徒歩3分の距離にあります。その立地の良さは、新宿駅や東新宿駅にも徒歩圏内という、3駅以上利用可能な絶好のアクセス性を誇ります。ビジネスの中心地として、また日々の通勤にも大変便利な立地です。 新宿光陽ビルは、1979年に竣工された茶色レンガ調の外観が特徴的なマンション風の賃貸オフィス物件です。このビルは24時間使用可能で、エレベーターも設置されており、夜遅くまで働く方々や、さまざまなビジネスニーズに柔軟に応えることができます。また、管理人常駐という点も安心感を与えてくれます。 内装に関しては、室内に水回りが完備されており、募集時期やフロアによっては分割も可能です。各オフィスは間取りや内装が区画により異なるため、自社のイメージに合ったオフィススペースを選ぶことが可能です。オフィス室内は、空調スイッチ、インターホン、給湯設備、洗面台、トイレ個室など、オフィスとして必要な設備が整っております。 周辺環境も大変魅力的で、明治通り沿いに立地し、新宿三丁目駅・新宿駅方面へ少し歩けば、店舗が大変充実するエリアです。近くにはコンビニエンスストアがあり、ビジネスの合間に買い物をするのにも便利です。また、オフィスの近隣ではカフェや飲食店も豊富にあり、ビジネスランチやアフター5の時間を楽しむことができます。 新宿光陽ビルは、立地の良さ、充実した設備、そして快適なオフィス環境を提供しております。ビジネスの拠点として、または新たなオフィスの開設をお考えの皆様にとって、最適な選択肢の1つとなることでしょう。どうぞ、この機会に新宿光陽ビルをご検討ください。詳細やご相談については、お気軽にお問い合わせください。
新宿光陽ビルのこだわり
自分で探すより問い合わせる方が早いことがあります
WEB非公開物件があるから
オーナー様のご希望により「WEBでは非公開」にしている物件があります。 それらはWEBでいくら検索しても見つかりません。 先ずは条件などお知らせ頂けましたら非公開物件含め ピッタリのオフィスをご提案させて頂きます。 無理なお勧めはしておりませんので、お気軽にお問い合わせください。
対面でのご相談も受け付けております
ご来店も歓迎です
オフィス移転は社内・社外ともに非公開に行われることが殆どです。そのためアットオフィスでは、基本的に訪問によるコンサルティングを行っておりますが、ご来店の相談も歓迎です。お一人おひとりに親身にご対応させて頂きたい為、要予約とさせて頂いております。ご来店の際は先ずは下記よりご予約下さい。
募集終了のテナント区画
| 階数 | 坪数 | 賃料 + 共益費 | 敷金/礼金敷金 礼金 | 検討 |
|---|---|---|---|---|
| 2階 | 20.47坪 (67.66m²) | 募集終了 | - | - |
| 3階 | 16.52坪 (54.63m²) | 募集終了 | - | - |
| 4階 | 16.59坪 (54.87m²) | 募集終了 | - | - |
| 5階 | 18.1坪 (59.85m²) | 募集終了 | - | - |
| 6階 | 16.59坪 (54.87m²) | 募集終了 | - | - |
| 9階 | 16.52坪 (54.63m²) | 募集終了 | - | - |
| 10階 | 18.1坪 (59.83m²) | 募集終了 | - | - |
| 10階 | 16.59坪 (54.87m²) | 募集終了 | - | - |
読込中...
新宿/西新宿エリアで新宿光陽ビルに似た条件の物件
読込中...
| 取扱様態 | 仲介 |
|---|---|
| 取扱会社 | 株式会社 アットオフィス |