三恵大塚ビル4階の賃貸情報
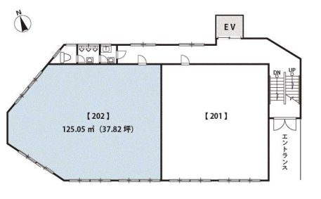
11.25 坪 (37.19m²)
※このサイトに記載がある賃貸条件は、敷金・保証金などの預かり金を除き、別途消費税がかかります。
三恵大塚ビルの建物概要
設備詳細
| 空調 | - |
|---|---|
| トイレ | - |
| 床仕様 | - |
| エレベータ | 1 基 |
| 駐車場設備 | 空無 |
| その他 | 東京賃料が坪11000円以下 |
三恵大塚ビル4階の賃貸オフィス・事務所に関するお問い合わせ
三恵大塚ビルについて
三恵大塚ビルは東京都豊島区北大塚に位置する、1964年竣工のオフィス賃貸ビルです。地上6階建てのこのビルは、大塚駅から徒歩2分という利便性の高い立地にあり、近隣には巣鴨新田駅や向原駅もアクセス可能で、複数の交通路線が使える点が大きな特徴です。ビル周辺は住宅街が広がり、商業施設も充実しており、日々の業務に必要なものがすぐに手に入る環境です。 ビルの内部は、基準階で約59坪の広さを誇り、正方形の間取りが特徴的です。この形状はオフィスのレイアウトを容易にし、柔軟な空間利用を可能にします。また、各階に共用のトイレと給湯スペースが設置されており、利便性が考慮されています。オフィス内は南向きの窓から自然光がたっぷりと入り、明るく快適な作業環境が確保されています。 土日や祝日も利用可能なため、フレキシブルな働き方をサポートします。敷地内には駐車場も完備されており、来客時の利便性も高いです。ビルのエントランスは清潔感があり、良好な第一印象を与えることができます。 三恵大塚ビルの周辺環境は、オフィスビルが点在する一方で落ち着いた住宅街も広がっており、ビジネスとプライベートの両面で快適に過ごせる地域です。最寄りのコンビニまで徒歩4分と、日常的な買い物にも便利です。 このビルは、その立地の良さ、機能性を追求した設計、周辺環境のバランスの良さが魅力です。ビジネスの拠点として、または新たなオフィスの設立に適した物件であることは間違いありません。三恵大塚ビルは、都心で働く多くのプロフェッショナルにとって、理想的なオフィススペースを提供します。
三恵大塚ビルのこだわり
自分で探すより問い合わせる方が早いことがあります
WEB非公開物件があるから
オーナー様のご希望により「WEBでは非公開」にしている物件があります。 それらはWEBでいくら検索しても見つかりません。 先ずは条件などお知らせ頂けましたら非公開物件含め ピッタリのオフィスをご提案させて頂きます。 無理なお勧めはしておりませんので、お気軽にお問い合わせください。
対面でのご相談も受け付けております
ご来店も歓迎です
オフィス移転は社内・社外ともに非公開に行われることが殆どです。そのためアットオフィスでは、基本的に訪問によるコンサルティングを行っておりますが、ご来店の相談も歓迎です。お一人おひとりに親身にご対応させて頂きたい為、要予約とさせて頂いております。ご来店の際は先ずは下記よりご予約下さい。
駒込/巣鴨/大塚エリアで三恵大塚ビルに似た条件の物件
読込中...
三恵大塚ビルと同じ最寄駅の物件
読込中...
| 取扱様態 | 仲介 |
|---|---|
| 取扱会社 | 株式会社 アットオフィス |