巣鴨THビル1-2階の賃貸情報
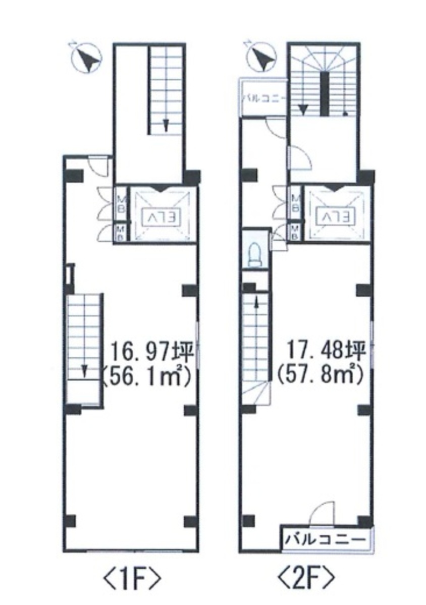
34.45 坪 (113.9m²)
400,000円 (坪:11,611 円)
※このサイトに記載がある賃貸条件は、敷金・保証金などの預かり金を除き、別途消費税がかかります。
巣鴨THビルの建物概要
設備詳細
| 空調 | - |
|---|---|
| トイレ | 男女共用トイレ・室内 |
| 床仕様 | - |
| エレベータ | 1 基 |
| 駐車場設備 | - |
| その他 | 新耐震基準 / 1階の物件 |
巣鴨THビル1-2階の賃貸オフィス・事務所に関するお問い合わせ
巣鴨THビルについて
### Geumsan巣鴨ビルのご紹介 **Geumsan巣鴨ビル**(旧:巣鴨THビル)は、1993年に竣工した地上7階建ての賃貸オフィスビルです。豊島区巣鴨1丁目に位置し、交通アクセスが非常に便利で、最寄りの巣鴨駅から徒歩6分、千石駅からもほぼ同距離にあります。この立地条件が、ビジネスの発展に大いに貢献するでしょう。 #### ビルの特徴と設備 Geumsan巣鴨ビルの基準階は約20坪で、執務スペースはほぼ長方形となっており、レイアウトがしやすいのが特徴です。オフィス内には個室トイレが設置されており、給湯設備も完備されています。エレベーターは1基設置されており、地上7階建てのビル内を快適に移動できます。 ビルの外観は、タイル張りで清潔感があり、エントランスも広々として洗練された雰囲気です。1階には飲食店が営業しており、ランチタイムや打ち合わせに便利です。 #### 周辺環境と利便性 Geumsan巣鴨ビルは白山通り沿いに位置しており、周辺には多数の店舗や住宅街があります。徒歩1分の場所にはコンビニエンスストア(ファミリーマート)があり、急な買い物にも便利です。また、徒歩2分の距離にモスバーガー巣鴨店があり、手軽にランチを楽しむことができます。その他にも周辺には多くの飲食店やファーストフード店が点在しており、食事の選択肢が豊富です。 #### ビジネスにおける利点 Geumsan巣鴨ビルの魅力は、その利便性だけではありません。周辺にはスーパーや公園もあり、社員がリフレッシュできる環境が整っています。このような環境は、ビジネスパフォーマンスの向上に寄与するでしょう。また、巣鴨駅からのアクセスの良さは、クライアントとの打ち合わせや訪問にも大変便利です。 さらに、執務スペースが長方形でレイアウトしやすい点は、業務効率を高めるためのオフィス設計が可能であることを意味します。個室トイレや給湯設備が室内に設置されているため、プライバシーを確保しつつ快適なオフィス環境を提供します。 #### まとめ Geumsan巣鴨ビルは、その優れた立地と設備、周辺環境の充実度から、多くの企業にとって理想的なオフィススペースとなります。清潔感のあるタイル張りの外観、レイアウトのしやすい室内、便利な周辺施設など、多くの魅力が詰まっています。このビルで新たなビジネスのステージをスタートさせてみてはいかがでしょうか。 お問い合わせや内覧のご希望がございましたら、どうぞお気軽にご連絡ください。皆様のビジネスが更なる飛躍を遂げるための一助となることをお約束いたします。
自分で探すより問い合わせる方が早いことがあります
WEB非公開物件があるから
オーナー様のご希望により「WEBでは非公開」にしている物件があります。 それらはWEBでいくら検索しても見つかりません。 先ずは条件などお知らせ頂けましたら非公開物件含め ピッタリのオフィスをご提案させて頂きます。 無理なお勧めはしておりませんので、お気軽にお問い合わせください。
対面でのご相談も受け付けております
ご来店も歓迎です
オフィス移転は社内・社外ともに非公開に行われることが殆どです。そのためアットオフィスでは、基本的に訪問によるコンサルティングを行っておりますが、ご来店の相談も歓迎です。お一人おひとりに親身にご対応させて頂きたい為、要予約とさせて頂いております。ご来店の際は先ずは下記よりご予約下さい。
駒込/巣鴨/大塚エリアで巣鴨THビルに似た条件の物件
読込中...
巣鴨THビルと同じ最寄駅の物件
読込中...
| 取扱様態 | 仲介 |
|---|---|
| 取扱会社 | 株式会社 アットオフィス |