HT新橋ビル4階の賃貸情報
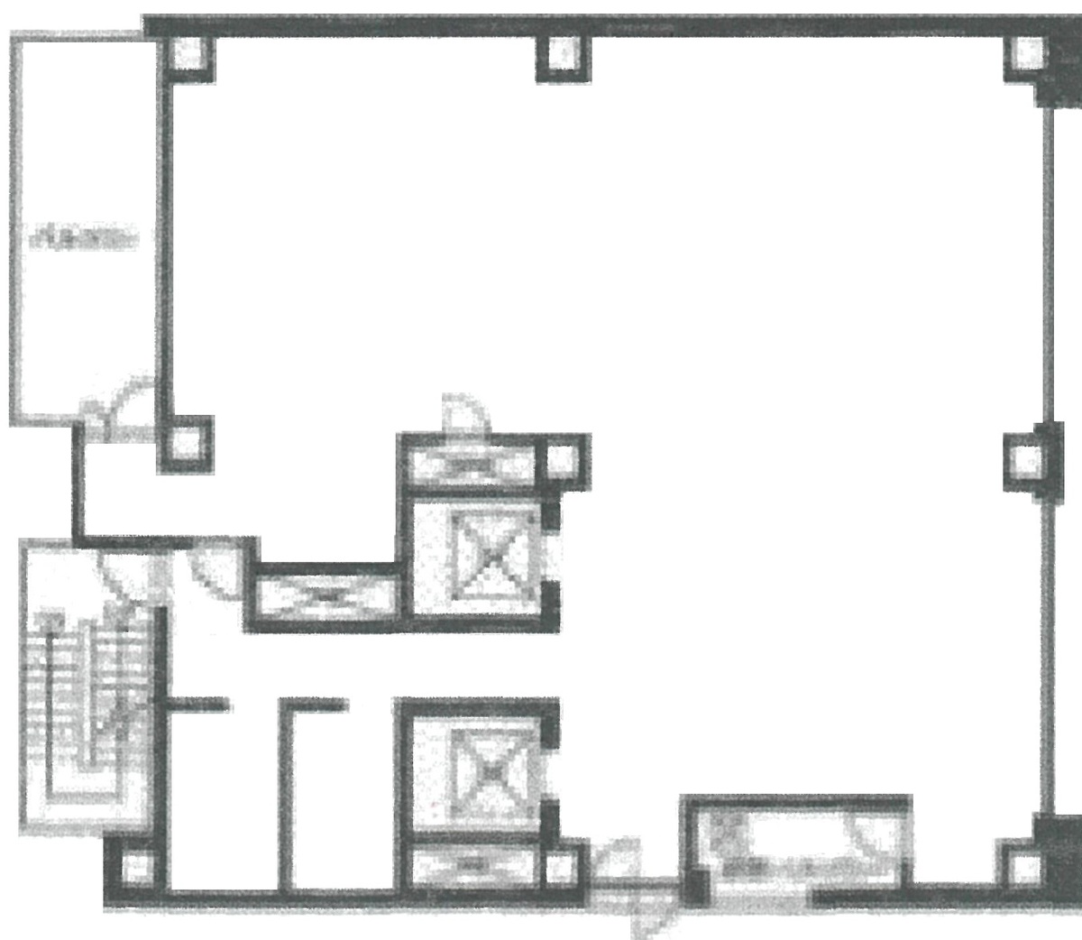
58.7 坪 (194.07m²)
※このサイトに記載がある賃貸条件は、敷金・保証金などの預かり金を除き、別途消費税がかかります。
HT新橋ビルの建物概要
設備詳細
| 空調 | 個別空調 / 空調なし |
|---|---|
| トイレ | - |
| 床仕様 | - |
| エレベータ | 2 基 |
| 駐車場設備 | - |
| その他 | スケルトン / 店舗可(飲食可) |
HT新橋ビル4階の賃貸オフィス・事務所に関するお問い合わせ
HT新橋ビルについて
東京都港区新橋2丁目に位置する「ミクニ新橋ビル」は、ビジネスの中心地にある洗練されたオフィス賃貸物件です。このビルは、その立地と設備、そして機能性において、多くの企業にとって理想的なオフィススペースを提供します。 まず、立地に関してですが、「ミクニ新橋ビル」は新橋エリアにあることから、東京都内の主要なビジネス街へのアクセスが非常に優れています。新橋駅はJR線、東京メトロ線、ゆりかもめ線など、複数の路線が乗り入れるハブ駅であり、都内はもちろん、首都圏外への移動もスムーズです。また、近隣には飲食店や商業施設が豊富にあり、ビジネスだけでなく、日常の利便性も高いエリアです。 設備面では、「ミクニ新橋ビル」は2機のエレベーターを備え、ビルの移動効率を高めています。これは、ビル内でのスムーズな人の流れを可能にし、テナントの皆様の快適なオフィスライフをサポートします。また、ビルのセキュリティシステムは最新のものを導入しており、テナント企業の安全とセキュリティを確保しています。 さらに、このビルの特徴は、そのモダンなデザインと機能的なオフィススペースにあります。光をたっぷりと取り入れた明るいオフィス環境は、働く人々の創造力と生産性を高めます。また、柔軟なレイアウトが可能なため、テナントのニーズに合わせたオフィス作りができる点も大きな魅力です。 新橋エリアの相場観としては、中心部に位置しつつも、比較的リーズナブルな賃料設定がされている物件が多く、コストパフォーマンスに優れています。「ミクニ新橋ビル」も、このエリアの魅力的な賃貸条件を提供しており、スタートアップから大手企業まで、幅広い企業にとって魅力的な選択肢となっています。 最後に、「ミクニ新橋ビル」は、ビジネスにおける利点だけでなく、働く人々の快適性や利便性も重視したオフィスビルです。その立地、設備、デザインが、ビジネスの成功と働きやすい環境の両方をサポートします。新橋エリアでオフィスをお探しの企業にとって、最適な選択肢の一つであることは間違いありません。
HT新橋ビルのこだわり
自分で探すより問い合わせる方が早いことがあります
WEB非公開物件があるから
オーナー様のご希望により「WEBでは非公開」にしている物件があります。 それらはWEBでいくら検索しても見つかりません。 先ずは条件などお知らせ頂けましたら非公開物件含め ピッタリのオフィスをご提案させて頂きます。 無理なお勧めはしておりませんので、お気軽にお問い合わせください。
対面でのご相談も受け付けております
ご来店も歓迎です
オフィス移転は社内・社外ともに非公開に行われることが殆どです。そのためアットオフィスでは、基本的に訪問によるコンサルティングを行っておりますが、ご来店の相談も歓迎です。お一人おひとりに親身にご対応させて頂きたい為、要予約とさせて頂いております。ご来店の際は先ずは下記よりご予約下さい。
近くのエリアで探してみる
新橋/虎ノ門/神谷町エリアでHT新橋ビルに似た条件の物件
読込中...
HT新橋ビルと同じ最寄駅の物件
読込中...
| 取扱様態 | 仲介 |
|---|---|
| 取扱会社 | 株式会社 アットオフィス |