※このサイトに記載がある賃貸条件は、敷金・保証金などの預かり金を除き、別途消費税がかかります。
物件情報
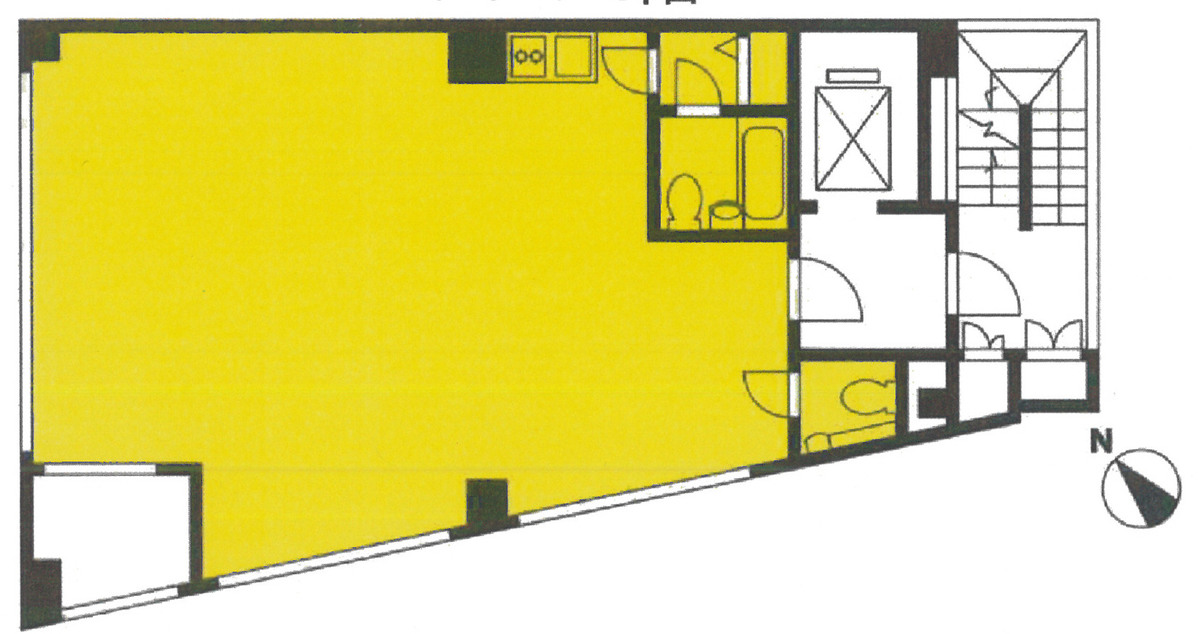
設備詳細
| 空調 | 個別空調 |
|---|---|
| トイレ | 男女別トイレ室内 |
| 床仕様 | OA対応床(フリーアクセス) |
| エレベータ | 1 基 |
| 駐車場設備 | - |
| その他 | 機械警備 / 24時間利用可 / SOHO/マンション / 光ファイバー / 新耐震基準 / オートロック |
クローバー神谷町の賃貸オフィス・事務所に関するお問い合わせ
クローバー神谷町について
東京都港区虎ノ門5-12-8に位置する、非常に魅力的な物件「クローバー神谷町ビル」をご紹介いたします。このビルは、ビジネスの中心地としての立地、洗練されたデザイン、そして利便性の高さを備えた、まさに理想的なオフィスビルです。 まず目を引くのは、その立地の良さ。神谷町駅からわずか徒歩1分というアクセスの利便性は、日々の通勤やビジネスシーンでの移動を非常にスムーズにします。さらに、六本木周辺を含む都心へのアクセスも良好で、ビジネスチャンスを広げる上で大きなアドバンテージとなるでしょう。 ビルの外観は、黒を基調としたシックなデザインが特徴的。洗練された雰囲気がビジネスシーンにふさわしい印象を与えます。内部に目を移すと、天井高2.6mと広々とした空間、OAフロア完備といったオフィス使用に最適化された設備が整っており、快適なワークスペースを実現します。 また、周辺にはコンビニがあり、休憩時間のちょっとした買い出しにも困りません。ビルからは東京タワーや六本木ヒルズを一望でき、桜田通りに面しているため、都心の活気を感じながらも落ち着いた環境で仕事に取り組むことができます。 2007年に竣工したこの築浅オフィスビルは、男女別のトイレ設備、24時間利用可能なフレックスタイムシステム、機械警備完備といったセキュリティ面も充実しており、安心してビジネスを行うための環境が整っています。エレベーターは1機設置されており、スムーズな移動をサポートします。 クローバー神谷町ビルは、SOHOや事務所利用を検討されている方に最適な物件です。立地の良さ、機能性、そして安心のセキュリティ環境を兼ね備え、あなたのビジネスをさらに加速させる環境がここにあります。この機会にぜひ、クローバー神谷町ビルをご検討ください。ご興味をお持ちの方は、お問い合わせをお待ちしております!
クローバー神谷町のこだわり
自分で探すより問い合わせる方が早いことがあります
WEB非公開物件があるから
オーナー様のご希望により「WEBでは非公開」にしている物件があります。 それらはWEBでいくら検索しても見つかりません。 先ずは条件などお知らせ頂けましたら非公開物件含め ピッタリのオフィスをご提案させて頂きます。 無理なお勧めはしておりませんので、お気軽にお問い合わせください。
対面でのご相談も受け付けております
ご来店も歓迎です
オフィス移転は社内・社外ともに非公開に行われることが殆どです。そのためアットオフィスでは、基本的に訪問によるコンサルティングを行っておりますが、ご来店の相談も歓迎です。お一人おひとりに親身にご対応させて頂きたい為、要予約とさせて頂いております。ご来店の際は先ずは下記よりご予約下さい。
募集終了のテナント区画
| 階数 | 坪数 | 賃料 + 共益費 | 敷金/礼金敷金 礼金 | 検討 |
|---|---|---|---|---|
| 1階 | 42.27坪 (139.74m²) | 募集終了 | - | - |
| 3階 | 22.96坪 (75.9m²) | 募集終了 | - | - |
| 4階 | 22.96坪 (75.92m²) | 募集終了 | - | - |
| 5階 | 22.96坪 (75.92m²) | 募集終了 | - | - |
| 7階 | 22.96坪 (75.92m²) | 募集終了 | - | - |
| 8階 | 22.96坪 (75.92m²) | 募集終了 | - | - |
| 9階 | 22.97坪 (75.92m²) | 募集終了 | - | - |
| 10階 | 22.96坪 (75.92m²) | 募集終了 | - | - |
読込中...
近くのエリアで探してみる
新橋/虎ノ門/神谷町エリアでクローバー神谷町に似た条件の物件
読込中...
| 取扱様態 | 仲介 |
|---|---|
| 取扱会社 | 株式会社 アットオフィス |