町田森野一丁目ビル5階の賃貸情報
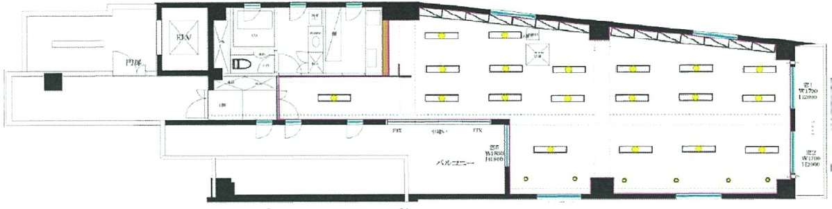
23.66 坪 (78.2m²)
※このサイトに記載がある賃貸条件は、敷金・保証金などの預かり金を除き、別途消費税がかかります。
町田森野一丁目ビルの建物概要
設備詳細
| 空調 | - |
|---|---|
| トイレ | - |
| 床仕様 | OA対応床(フリーアクセス) |
| エレベータ | 1 基 |
| 駐車場設備 | - |
| その他 | 新耐震基準 / 居抜き / 塾・スクール / オフィス居抜き特集 |
町田森野一丁目ビルについて
町田森野一丁目ビルは、小田急小田原線「町田駅」から徒歩3分、JR横浜線「町田駅」から徒歩6分の場所に位置しています。町田市森野1丁目に所在し、地上8階建ての構造となっています。複数路線が利用できる駅から徒歩圏内にあり、駅周辺の店舗や各種サービス施設が身近に整っています。建物周辺には商業施設や飲食店が点在しており、業務の合間や来客時にも活用できる環境です。 オフィスや店舗としての利用を検討される場合には、階数を活かしたフロアプランの検討が可能です。建物は視認性があり、通行量の多いエリアに立地しているため、事務所やサービス拠点としての用途にも対応できます。周辺にはビジネスや生活の拠点となりうる施設が集まっており、従業員や来客の動線にも配慮された立地です。 町田森野一丁目ビルの詳細はお問い合わせください。
町田森野一丁目ビルのこだわり
自分で探すより問い合わせる方が早いことがあります
WEB非公開物件があるから
オーナー様のご希望により「WEBでは非公開」にしている物件があります。 それらはWEBでいくら検索しても見つかりません。 先ずは条件などお知らせ頂けましたら非公開物件含め ピッタリのオフィスをご提案させて頂きます。 無理なお勧めはしておりませんので、お気軽にお問い合わせください。
対面でのご相談も受け付けております
ご来店も歓迎です
オフィス移転は社内・社外ともに非公開に行われることが殆どです。そのためアットオフィスでは、基本的に訪問によるコンサルティングを行っておりますが、ご来店の相談も歓迎です。お一人おひとりに親身にご対応させて頂きたい為、要予約とさせて頂いております。ご来店の際は先ずは下記よりご予約下さい。
町田市エリアで町田森野一丁目ビルに似た条件の物件
読込中...
町田森野一丁目ビルと同じ最寄駅の物件
読込中...
| 取扱様態 | 仲介 |
|---|---|
| 取扱会社 | 株式会社 アットオフィス |