リベラ茅場町ビル4階の賃貸情報
21.41 坪 (70.79m²)
※このサイトに記載がある賃貸条件は、敷金・保証金などの預かり金を除き、別途消費税がかかります。
リベラ茅場町ビルの建物概要
設備詳細
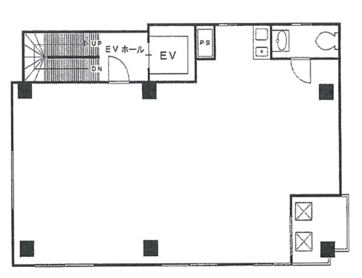
| 空調 | 個別空調 |
|---|---|
| トイレ | 男女共用トイレ・室内 |
| 床仕様 | - |
| エレベータ | 1 基 |
| 駐車場設備 | - |
| その他 | オートロック / 機械警備 / 光ファイバー / 東京賃料が坪11000円以下 |
リベラ茅場町ビルについて
リベラ茅場町ビルにおけるご紹介をさせていただきます。このビルは、東京都中央区日本橋茅場町3丁目に位置しており、2004年に竣工した耐震性能を備えた現代的なオフィスビルです。立地としては、ビジネスの中心地に位置し、八丁堀駅からわずか徒歩2分という駅近の利便性の高さが魅力です。さらに、3駅以上を利用可能とする好立地は、従業員やクライアントが都内各所へ容易にアクセスできるため、ビジネスの機動性を高めます。 ビル自体は、築年数が浅く、外観も内装も非常に綺麗に保たれています。オートロックのセキュリティーシステムを備えることで、入居企業の安全とセキュリティを確保。また、機械警備完備により、24時間体制でビルの安全を守ります。これにより、ビル内での業務に集中できる環境が整っています。 エレベーターは1機設置されており、スムーズな移動をサポートします。ビルの規模に合わせた適切な設備投資がなされていることは、効率的なオフィス運用に寄与します。 リベラ茅場町ビルは、その立地の良さ、安全性、そして美観を兼ね備えた現代的なオフィスビルとして、中央区でのビジネス拠点としての適性が非常に高いと言えるでしょう。ビジネスの中心地でありながら、環境面での配慮も忘れていないこの物件は、様々な業種の企業にとって魅力的な選択肢となることでしょう。また、アクセスの良さは従業員の通勤の利便性を高めるだけでなく、クライアントとのミーティングやビジネスの機会を広げる上でも大きな強みとなります。 以上の点を踏まえ、リベラ茅場町ビルは、機能性と快適性を求める企業にとって、理想的なオフィス環境を提供します。これから新たなビジネスの場を設ける企業様に、ぜひお勧めしたい物件の一つです。
リベラ茅場町ビルのこだわり
自分で探すより問い合わせる方が早いことがあります
WEB非公開物件があるから
オーナー様のご希望により「WEBでは非公開」にしている物件があります。 それらはWEBでいくら検索しても見つかりません。 先ずは条件などお知らせ頂けましたら非公開物件含め ピッタリのオフィスをご提案させて頂きます。 無理なお勧めはしておりませんので、お気軽にお問い合わせください。
対面でのご相談も受け付けております
ご来店も歓迎です
オフィス移転は社内・社外ともに非公開に行われることが殆どです。そのためアットオフィスでは、基本的に訪問によるコンサルティングを行っておりますが、ご来店の相談も歓迎です。お一人おひとりに親身にご対応させて頂きたい為、要予約とさせて頂いております。ご来店の際は先ずは下記よりご予約下さい。
近くのエリアで探してみる
茅場町/新川/八丁堀エリアでリベラ茅場町ビルに似た条件の物件
読込中...
リベラ茅場町ビルと同じ最寄駅の物件
読込中...
| 取扱様態 | 仲介 |
|---|---|
| 取扱会社 | 株式会社 アットオフィス |