武蔵屋第2ビル3-4階の賃貸情報
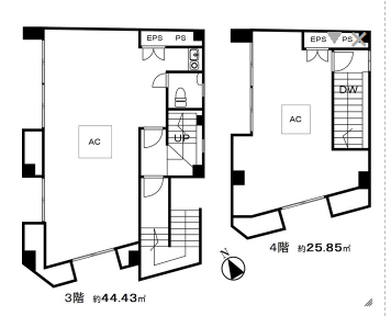
24.83 坪 (82.09m²)
※このサイトに記載がある賃貸条件は、敷金・保証金などの預かり金を除き、別途消費税がかかります。
武蔵屋第2ビルの建物概要
設備詳細
| 空調 | 個別空調 |
|---|---|
| トイレ | 男女共用トイレ・室内 |
| 床仕様 | - |
| エレベータ | - |
| 駐車場設備 | - |
| その他 | 新耐震基準 / 東京賃料が坪11000円以下 |
武蔵屋第2ビルについて
武蔵屋第2ビルのご紹介 武蔵屋第2ビルは、東京都豊島区池袋2丁目に位置するオフィス賃貸物件です。このビルは、ビジネスに最適な立地と便利な設備を提供し、企業の成長を強力にサポートします。 ### 1. 優れた立地 武蔵屋第2ビルの最大の魅力は、その抜群の立地にあります。池袋駅から徒歩わずか5分という好条件に位置し、アクセスの良さは抜群です。池袋駅は東京メトロ、JR、東武鉄道、西武鉄道など複数の路線が交差する大きなターミナル駅であり、通勤やビジネスの移動も非常に便利です。 ### 2. 安心の耐震構造 本ビルは1990年に竣工され、耐震オフィスビルとして設計されています。耐震性能を重視した構造により、地震などの災害時でも安心して業務に集中することができます。この点は、企業の持続的な運営にとって非常に重要な要素です。 ### 3. 周辺環境の魅力 武蔵屋第2ビルの周辺環境も非常に魅力的です。徒歩2分の距離にはデイリーヤマザキ池袋二丁目店があり、ちょっとした買い物に便利です。また、徒歩4分の距離には池袋郵便局があるため、郵便業務もスムーズに行えます。さらに、周辺には飲食店も充実しており、ランチタイムや仕事後のリフレッシュにも困りません。同じ並びには居酒屋「海畑」もあり、ビジネスの会食や同僚との交流の場として活用できます。 ### 4. オフィスビルの雰囲気 武蔵屋第2ビルは、シンプルで機能的なデザインが特徴です。出入口には階段が設置されており、ネームプレートには「武蔵屋第2ビル」と明示されています。このシンプルさが、ビジネス環境としてのプロフェッショナルな印象を与えます。 ### 5. 閑静なエリア ビルの周辺は閑静なエリアであり、業務に集中できる環境が整っています。賑やかな池袋駅近くにありながらも、静かな環境を享受できる点は、働きやすさを求める企業にとって大きなメリットです。 ### 総括 武蔵屋第2ビルは、優れた立地、安心の耐震構造、充実した周辺環境、そして静かな雰囲気を兼ね備えたオフィスビルです。これらの特徴により、ビジネスの拠点として非常に魅力的な選択肢となっています。企業の成長と発展をサポートする最適なオフィス空間として、是非一度ご検討ください。 お問い合わせや内覧のご予約は、どうぞお気軽にお申し付けください。皆様のご連絡を心よりお待ちしております。
自分で探すより問い合わせる方が早いことがあります
WEB非公開物件があるから
オーナー様のご希望により「WEBでは非公開」にしている物件があります。 それらはWEBでいくら検索しても見つかりません。 先ずは条件などお知らせ頂けましたら非公開物件含め ピッタリのオフィスをご提案させて頂きます。 無理なお勧めはしておりませんので、お気軽にお問い合わせください。
対面でのご相談も受け付けております
ご来店も歓迎です
オフィス移転は社内・社外ともに非公開に行われることが殆どです。そのためアットオフィスでは、基本的に訪問によるコンサルティングを行っておりますが、ご来店の相談も歓迎です。お一人おひとりに親身にご対応させて頂きたい為、要予約とさせて頂いております。ご来店の際は先ずは下記よりご予約下さい。
池袋/大塚/目白エリアで武蔵屋第2ビルに似た条件の物件
読込中...
武蔵屋第2ビルと同じ最寄駅の物件
読込中...
| 取扱様態 | 仲介 |
|---|---|
| 取扱会社 | 株式会社 アットオフィス |