※このサイトに記載がある賃貸条件は、敷金・保証金などの預かり金を除き、別途消費税がかかります。
お電話でもお気軽にお問い合わせください
物件情報
設備詳細
| 空調 | - |
|---|---|
| トイレ | - |
| 床仕様 | - |
| エレベータ | 1 基 |
| 駐車場設備 | - |
| その他 | - |
渋谷くすのきビルは、東京のビジネス中心地である渋谷区道玄坂1丁目に位置しており、その立地の良さは言うまでもありません。渋谷というアクセスの利便性と人の流れが豊富なエリアにおいて、このビルはビジネスの中心で活動する企業にとって理想的な環境を提供します。特に渋谷道玄坂角地に位置することで、周辺の商業施設や飲食店へのアクセスも抜群です。 渋谷くすのきビルの最大の魅力はその設備の高さとスペックの良さにあります。ビル内には1機のエレベーターがあり、快適な移動をサポートします。また、ビルの設計は最新のビジネスニーズに合わせており、オフィススペースは自然光がたっぷりと入る設計になっています。これにより、働く人々の生産性と満足度が高まること間違いなしです。 さらに、渋谷くすのきビルは、高度なセキュリティシステムを完備しており、入居企業とその従業員の安心と安全を守ります。24時間体制のセキュリティサービスや最新の入退館管理システムが導入されており、ビル内は常に安全な環境が保たれています。 立地の利点だけでなく、ビルの設備やセキュリティの面でも企業のニーズに応える渋谷くすのきビル。ここからビジネスを展開することは、企業のブランドイメージ向上にもつながります。渋谷というダイナミックな市場で競争するためには、このような高スペックなオフィスビルが重要な役割を果たします。 渋谷くすのきビルにオフィスを構えることは、単に優れた物理的な環境を得るだけでなく、企業が渋谷というエネルギッシュな場所のダイナミズムを自らのビジネスに取り入れる機会を意味します。賃貸か自社ビルかでお悩みの方、ビジネスの将来を見据えるなら、渋谷くすのきビルが提供する環境と可能性をぜひご検討ください。
募集終了のテナント区画
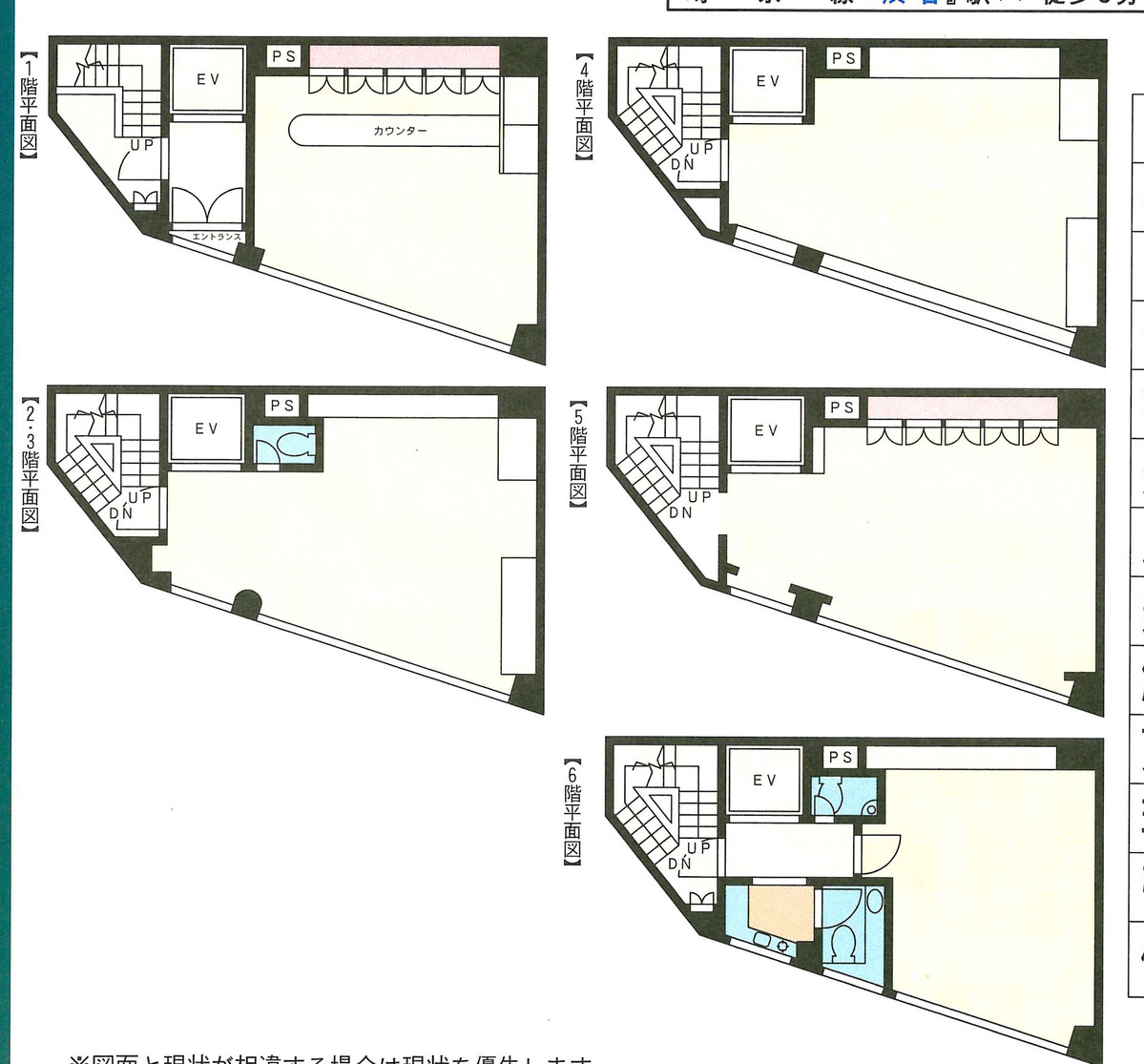
| 階数 | 坪数 | 賃料 + 共益費 | 敷金/礼金敷金 礼金 | 検討 |
|---|---|---|---|---|
| B1階 | 98.31坪 (324.99m²) | 募集終了 | - | - |
| B1階 | 13.11坪 (43.37m²) | 募集終了 | - | - |
| 1-2階 | 27.22坪 (90.01m²) | 募集終了 | - | - |
| 1階 | 11.13坪 (36.79m²) | 募集終了 | - | - |
| 2階 | 12.51坪 (41.36m²) | 募集終了 | - | - |
| 3階 | 12.51坪 (41.36m²) | 募集終了 | - | - |
| 4階 | 12.51坪 (41.36m²) | 募集終了 | - | - |
| 5階 | 12.51坪 (41.36m²) | 募集終了 | - | - |
| 6階 | 11.02坪 (36.43m²) | 募集終了 | - | - |
WEB非公開物件がございます
オーナー様ご希望によるWEB非公開の物件もございます。先ずは条件などお知らせ頂けましたら、非公開物件含めピッタリのオフィスをご提案させて頂きます。具体的な物件がお決まりでない場合でも問題ございません。無理なお勧めはしておりませんので、お気軽にお問い合わせください。
ご来店も歓迎です
オフィス移転は社内・社外ともに非公開に行われることが殆どです。そのためアットオフィスでは、基本的に訪問によるコンサルティングを行っておりますが、ご来店の相談も歓迎です。
※お一人おひとりに親身にご対応させて頂きたい為、要予約とさせて頂いております。ご来店の際は先ずは上記よりご予約下さい。
読込中...
渋谷エリアで渋谷くすのきビルに似た条件の物件
読込中...