※このサイトに記載がある賃貸条件は、敷金・保証金などの預かり金を除き、別途消費税がかかります。
お電話でもお気軽にお問い合わせください
物件情報
設備詳細
| 空調 | - |
|---|---|
| トイレ | - |
| 床仕様 | - |
| エレベータ | 1 基 |
| 駐車場設備 | - |
| その他 | オートロック / 新耐震基準 / 機械警備 / 会議室 |
アクセスマップ
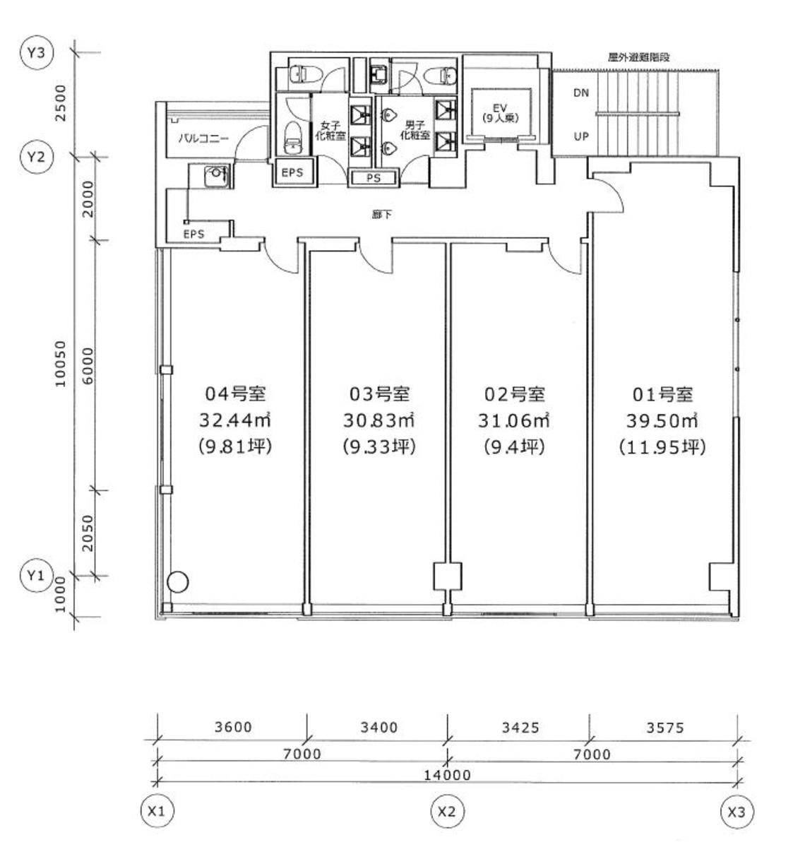
デニス赤坂ビルは、ビジネスの中心地・東京都港区赤坂に位置する、2008年竣工のモダンな設計が魅力の賃貸オフィスビルです。このビルは、赤坂駅、六本木一丁目駅、溜池山王駅という3つの駅が徒歩約5分の絶好の立地にあり、複数の交通網へのアクセスの良さが特徴です。ビジネスの動きが速い東京で、このような複数のアクセスポイントを持つ物件は、従業員やクライアントにとって非常に便利です。 デニス赤坂ビルの外観は、洗練されたデザイン性を誇り、ビルの視認性を高めています。これは、企業のブランドイメージを強化するのに役立ち、訪問客に良い第一印象を与えることができます。ビル内の設備も充実しており、男女別のトイレ、洗面台、そしてエアコンといった基本的な設備に加え、OAフロアでの作業スペースを提供しています。これにより、テナントは自社に合ったオフィス環境を簡単に構築することが可能になります。 ビルの周辺環境も魅力の一つです。多様な飲食店やコンビニ、カフェが周囲にあるため、ビジネスランチや休憩時間の利便性が高く、従業員の満足度を上げる要素となっています。また、近隣にはアーク森ビル内郵便局やココカラファイン赤坂二丁目店などの生活に便利な施設も揃っており、日々の業務に必要なあらゆるサポートを得ることができます。 セキュリティ面では、機械警備・オートロックシステムを完備しているため、テナントとその従業員は安心して働くことができます。さらに、オフィスのレイアウトは柔軟性に富んでおり、大小さまざまなビジネスニーズに対応可能です。10坪前後のお部屋から提供できるため、スタートアップ企業から大企業まで、幅広いテナントが利用しやすい設計となっています。 デニス赤坂ビルは、立地、設備、周辺環境の3つの要素が高いレベルでバランスを取っており、あなたのビジネスを次のレベルへと押し上げるための最適な場所です。このビルで、新たなビジネスの成功を築き上げましょう。
募集終了のテナント区画
| 階数 | 坪数 | 賃料 + 共益費 | 敷金/礼金敷金 礼金 | 検討 |
|---|---|---|---|---|
| 3階 | 10.34坪 (34.18m²) | 募集終了 | - | - |
| 3階 | 10.79坪 (35.66m²) | 募集終了 | - | - |
| 4階 | 13.15坪 (43.47m²) | 募集終了 | - | - |
| 4階 | 21.05坪 (69.58m²) | 募集終了 | - | - |
| 5階 | 10.34坪 (34.18m²) | 募集終了 | - | - |
| 5階 | 10.26坪 (33.91m²) | 募集終了 | - | - |
| 6階 | 21.05坪 (69.59m²) | 募集終了 | - | - |
WEB非公開物件がございます
オーナー様ご希望によるWEB非公開の物件もございます。先ずは条件などお知らせ頂けましたら、非公開物件含めピッタリのオフィスをご提案させて頂きます。具体的な物件がお決まりでない場合でも問題ございません。無理なお勧めはしておりませんので、お気軽にお問い合わせください。
ご来店も歓迎です
オフィス移転は社内・社外ともに非公開に行われることが殆どです。そのためアットオフィスでは、基本的に訪問によるコンサルティングを行っておりますが、ご来店の相談も歓迎です。
※お一人おひとりに親身にご対応させて頂きたい為、要予約とさせて頂いております。ご来店の際は先ずは上記よりご予約下さい。
読込中...
赤坂/六本木/麻布エリアでデニス赤坂ビルに似た条件の物件
読込中...