※このサイトに記載がある賃貸条件は、敷金・保証金などの預かり金を除き、別途消費税がかかります。
お電話でもお気軽にお問い合わせください
物件情報
設備詳細
| 空調 | - |
|---|---|
| トイレ | - |
| 床仕様 | - |
| エレベータ | 3 基 |
| 駐車場設備 | 空有 |
| その他 | 機械警備 / 24時間利用可 / 大型ビル / 新耐震基準 |
アクセスマップ
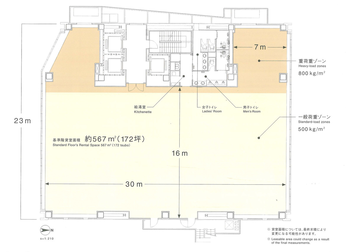
赤坂榎坂ビル(旧称:赤坂榎坂森ビル)は、2009年に港区赤坂1-7-1に誕生した、新耐震基準を満たす最先端のオフィスビルです。この物件は、東京メトロ南北線・銀座線の溜池山王駅からわずか徒歩1分、赤坂駅、虎ノ門ヒルズ駅、永田町駅からも徒歩圏内という絶好のロケーションに位置しています。そのため、アクセスの利便性は群を抜いており、ビジネスの拠点としての価値は計り知れません。 建物は地上11階、地下2階建てで、基準階約170坪の広々としたオフィススペースを提供しています。内装は高格調で、エントランスには森美術館監修のアート作品が飾られており、訪問客を迎えるにふさわしい落ち着いた雰囲気を醸し出しています。加えて、最新の設備が整っており、セントラル空調や個別空調、OAフロア、光ファイバー、男女別トイレなどが完備されており、快適なオフィス環境が保証されています。 安全面でも、機械警備による24時間セキュリティ体制が整っており、耐震性や耐力においても建築基準法で定められた耐力の1.5倍を確保しています。これは、安心してビジネスを運営できる環境が提供されていることを意味します。また、27台収容可能な機械式立体駐車場があり、3基のエレベーターは快適な移動をサポートします。 ビルの周辺環境も魅力的で、ANAインターコンチネンタルホテル東京、アメリカ合衆国大使館などが徒歩圏内にあり、六本木通り沿いには多様な飲食店や店舗施設が充実しています。ビジネスだけでなく、ライフスタイルの充実も図れる立地です。 赤坂榎坂ビルは、その最先端の設備、安全性、そしてアクセスしやすい立地により、赤坂エリアで際立つビジネスの拠点としてのポテンシャルを秘めています。ビジネスの成功を追求する企業にとって、このビルは最適な選択肢の一つと言えるでしょう。
募集終了のテナント区画
| 階数 | 坪数 | 賃料 + 共益費 | 敷金/礼金敷金 礼金 | 検討 |
|---|---|---|---|---|
| 1階 | 172坪 (568.6m²) | 募集終了 | - | - |
| 1階 | 18.28坪 (60.42m²) | 募集終了 | - | - |
| 2階 | 171.87坪 (568.16m²) | 募集終了 | - | - |
| 3階 | 171.87坪 (568.16m²) | 募集終了 | - | - |
| 3階 | 84.45坪 (279.17m²) | 募集終了 | - | - |
| 3階 | 81.6坪 (269.75m²) | 募集終了 | - | - |
| 4階 | 171.8坪 (567.93m²) | 募集終了 | - | - |
| 4階 | 81.6坪 (269.75m²) | 募集終了 | - | - |
| 5階 | 171.8坪 (567.18m²) | 募集終了 | - | - |
| 5階 | 84.45坪 (279.17m²) | 募集終了 | - | - |
| 6階 | 171.8坪 (567.93m²) | 募集終了 | - | - |
| 6階 | 84.45坪 (279.17m²) | 募集終了 | - | - |
| 7階 | 171.87坪 (568.16m²) | 募集終了 | - | - |
| 8階 | 171.87坪 (568.16m²) | 募集終了 | - | - |
| 10階 | 171.8坪 (567.18m²) | 募集終了 | - | - |
| 11階 | 171.87坪 (568.16m²) | 募集終了 | - | - |
WEB非公開物件がございます
オーナー様ご希望によるWEB非公開の物件もございます。先ずは条件などお知らせ頂けましたら、非公開物件含めピッタリのオフィスをご提案させて頂きます。具体的な物件がお決まりでない場合でも問題ございません。無理なお勧めはしておりませんので、お気軽にお問い合わせください。
ご来店も歓迎です
オフィス移転は社内・社外ともに非公開に行われることが殆どです。そのためアットオフィスでは、基本的に訪問によるコンサルティングを行っておりますが、ご来店の相談も歓迎です。
※お一人おひとりに親身にご対応させて頂きたい為、要予約とさせて頂いております。ご来店の際は先ずは上記よりご予約下さい。
読込中...
赤坂/六本木/麻布エリアで赤坂榎坂ビルに似た条件の物件
読込中...