日土地京橋ビル7階の賃貸情報
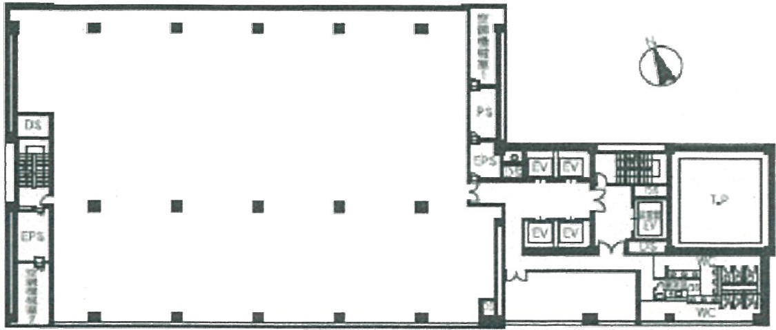
294 坪 (971.91m²)
※このサイトに記載がある賃貸条件は、敷金・保証金などの預かり金を除き、別途消費税がかかります。
日土地京橋ビルの建物概要
設備詳細
| 空調 | 個別空調 |
|---|---|
| トイレ | 男女別トイレ室外 |
| 床仕様 | OA対応床(フリーアクセス) |
| エレベータ | 4 基 |
| 駐車場設備 | 空有 |
| その他 | 機械警備 / 大型ビル / 光ファイバー / フリーレント |
日土地京橋ビル7階の賃貸オフィス・事務所に関するお問い合わせ
日土地京橋ビルについて
日土地京橋ビルは、中央区京橋2丁目に所在する2003年竣工のハイグレードオフィスビルです。本物件は、新耐震基準に準拠した施工により、安全性の高さが保証されると共に、先進的な設備を備えております。ここでは、日土地京橋ビルの特徴、立地、設備などを詳細に説明し、その独自の魅力とビジネスにおける利点を強調したいと思います。 【特徴】 日土地京橋ビルは、8階建てで基準階約294坪の大型オフィスビルです。このビルの特徴は、天井高2800mmという広々とした空間にあります。室内の一部に柱があるものの、窓からの採光が良好であるため、明るく開放感のあるオフィス環境を提供します。また、個別空調システムにより、各テナントのニーズに応じた快適な温度管理が可能です。 【立地】 京橋駅から徒歩1分という抜群のアクセスを誇り、宝町駅、銀座一丁目駅、日本橋駅へのアクセスも容易です。鍛冶橋通りと中央通りが近く、東京駅も徒歩圏内にあるため、都心へのアクセスが非常に便利です。周辺には飲食店が豊富にあり、ビジネスの場としてだけでなく、生活の利便性も高いエリアです。 【設備】 ビル内には駐車場が設置されており、最大42台の収容能力があります。セキュリティ面では機械警備が導入されており、安心してビジネスを行える環境が整っています。エレベーターは2基設置されており、来訪者のスムーズな移動を支援します。また、給湯スペースや個室トイレなど、テナントの利便性を高める設備も充実しています。 【ビジネスにおける利点】 日土地京橋ビルは、立地の良さ、高い安全性、先進的な設備を兼ね備えたハイグレードオフィスビルです。これらの特徴から、企業のブランドイメージの向上や従業員の働きやすい環境の提供が期待できます。また、中央区というビジネスの中心地に位置することで、多様な業種の企業との連携や新たなビジネスチャンスの創出につながる可能性があります。 日土地京橋ビルは、優れた立地と設備、安全性を備え、ビジネスの拠点として最適な環境を提供しています。これらの特長を生かし、様々な業種の企業が活躍できるフィールドとして、今後も多くの企業に選ばれることでしょう。
自分で探すより問い合わせる方が早いことがあります
WEB非公開物件があるから
オーナー様のご希望により「WEBでは非公開」にしている物件があります。 それらはWEBでいくら検索しても見つかりません。 先ずは条件などお知らせ頂けましたら非公開物件含め ピッタリのオフィスをご提案させて頂きます。 無理なお勧めはしておりませんので、お気軽にお問い合わせください。
対面でのご相談も受け付けております
ご来店も歓迎です
オフィス移転は社内・社外ともに非公開に行われることが殆どです。そのためアットオフィスでは、基本的に訪問によるコンサルティングを行っておりますが、ご来店の相談も歓迎です。お一人おひとりに親身にご対応させて頂きたい為、要予約とさせて頂いております。ご来店の際は先ずは下記よりご予約下さい。
近くのエリアで探してみる
八重洲/日本橋/三越前エリアで日土地京橋ビルに似た条件の物件
読込中...
日土地京橋ビルと同じ最寄駅の物件
読込中...
| 取扱様態 | 仲介 |
|---|---|
| 取扱会社 | 株式会社 アットオフィス |