※このサイトに記載がある賃貸条件は、敷金・保証金などの預かり金を除き、別途消費税がかかります。
物件情報
設備詳細
| 空調 | 個別空調 |
|---|---|
| トイレ | - |
| 床仕様 | - |
| エレベータ | - |
| 駐車場設備 | 空有 |
| その他 | 新耐震基準 |
藤沢朝日生命信和実業ビルの賃貸オフィス・事務所に関するお問い合わせ
藤沢朝日生命信和実業ビルについて
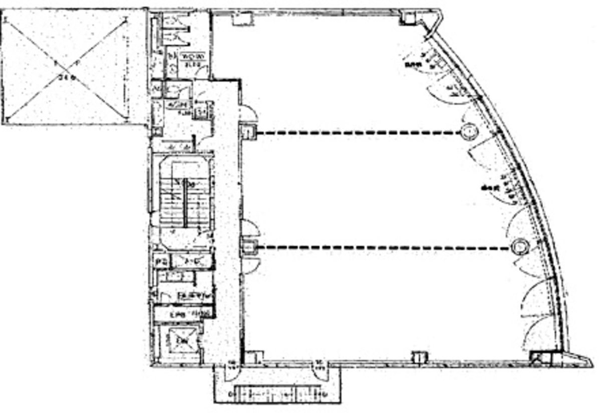
藤沢朝日生命信和実業ビルは、藤沢市鵠沼花沢町に位置する事業用ビルです。東海道線「藤沢駅」および江ノ島線「藤沢駅」からは徒歩1分、江ノ島電鉄線「藤沢駅」からも徒歩3分と、複数路線が利用可能な立地となっています。ビルは地上7階建てで、オフィスや事業所としての利用を想定した設計です。新耐震基準を満たしていることから、構造面での基準もクリアしています。駅から近い立地条件のため、来訪者や従業員のアクセスがしやすい環境が確保されています。また、周辺には各種店舗やサービスが点在しており、日常業務の中でさまざまな利用が可能です。ビジネス拠点や支店の設置、地域密着型の事業展開をお考えの法人様にも検討いただける物件です。詳細はお問い合わせください。
藤沢朝日生命信和実業ビルのこだわり
自分で探すより問い合わせる方が早いことがあります
WEB非公開物件があるから
オーナー様のご希望により「WEBでは非公開」にしている物件があります。 それらはWEBでいくら検索しても見つかりません。 先ずは条件などお知らせ頂けましたら非公開物件含め ピッタリのオフィスをご提案させて頂きます。 無理なお勧めはしておりませんので、お気軽にお問い合わせください。
対面でのご相談も受け付けております
ご来店も歓迎です
オフィス移転は社内・社外ともに非公開に行われることが殆どです。そのためアットオフィスでは、基本的に訪問によるコンサルティングを行っておりますが、ご来店の相談も歓迎です。お一人おひとりに親身にご対応させて頂きたい為、要予約とさせて頂いております。ご来店の際は先ずは下記よりご予約下さい。
募集終了のテナント区画
| 階数 | 坪数 | 賃料 + 共益費 | 敷金/礼金敷金 礼金 | 検討 |
|---|---|---|---|---|
| 2階 | 82坪 (271.07m²) | 募集終了 | - | - |
| 3階 | 87坪 (287.6m²) | 募集終了 | - | - |
| 4階 | 87坪 (287.6m²) | 募集終了 | - | - |
| 4階 | 31.99坪 (105.75m²) | 募集終了 | - | - |
| 5階 | 75.88坪 (250.84m²) | 募集終了 | - | - |
| 5階 | 32.51坪 (107.47m²) | 募集終了 | - | - |
| 6階 | 86.82坪 (287.01m²) | 募集終了 | - | - |
| 6階 | 23.66坪 (78.21m²) | 募集終了 | - | - |
| 7階 | 86.82坪 (287.01m²) | 募集終了 | - | - |
読込中...
藤沢市エリアで藤沢朝日生命信和実業ビルに似た条件の物件
読込中...
| 取扱様態 | 仲介 |
|---|---|
| 取扱会社 | 株式会社 アットオフィス |