※このサイトに記載がある賃貸条件は、敷金・保証金などの預かり金を除き、別途消費税がかかります。
物件情報
設備詳細
| 空調 | - |
|---|---|
| トイレ | - |
| 床仕様 | OA対応床(フリーアクセス) |
| エレベータ | 1 基 |
| 駐車場設備 | 空無 |
| その他 | 機械警備 / 24時間利用可 / 光ファイバー / SOHO/マンション / 新耐震基準 / 天井高3m以上 |
メットライフ三番町ビルの賃貸オフィス・事務所に関するお問い合わせ
メットライフ三番町ビルについて
三番町デュープレックスビズビルは、東京都千代田区三番町の、ビジネスの中心地に位置する2007年竣工のモダンなオフィスビルです。このビルの最大の魅力は、市ヶ谷駅からたったの徒歩5分という抜群のアクセスの良さにあります。さらに、半蔵門駅からも徒歩6分と、複数の駅が利用可能なことで、ビジネスの拠点として最適な立地条件を備えています。 三番町デュープレックスビズビルは、その開放感溢れるオフィス空間が特徴的です。全フロアにOAフロアを敷設しており、天井高は3メートルと、一般的なオフィスビルよりも高く設計されています。このような構造は、働く人々の創造性と生産性を高める快適な環境を提供します。 ビルのエントランスはスマートでモダンなデザインが施され、訪れる人々に良い第一印象を与えます。さらに、ビル内には24時間利用可能な男女別のトイレ設備や、月極駐車場、そして機械警備完備といった、テナントのニーズに応える充実した設備が整っています。 ビルの立地する千代田区三番町は、落ち着いた雰囲気の中にありながら、皇居まで簡単にアクセスできる距離にあります。このことは、ビジネスだけでなく、オフの時間も充実させたいと考えるテナントにとって魅力的なポイントです。 また、平日毎日の清掃サービスも提供されており、常に清潔で快適なオフィス環境が保たれます。このように、三番町デュープレックスビズビルは、その立地、設備、デザイン、そしてサービスにおいて、あらゆるビジネスの成功をサポートする理想的なオフィススペースを提供しています。お探しの方は、ぜひこの機会にご内見ください。このビルが、あなたのビジネスをさらなる高みへと導くでしょう。
メットライフ三番町ビルのこだわり
自分で探すより問い合わせる方が早いことがあります
WEB非公開物件があるから
オーナー様のご希望により「WEBでは非公開」にしている物件があります。 それらはWEBでいくら検索しても見つかりません。 先ずは条件などお知らせ頂けましたら非公開物件含め ピッタリのオフィスをご提案させて頂きます。 無理なお勧めはしておりませんので、お気軽にお問い合わせください。
対面でのご相談も受け付けております
ご来店も歓迎です
オフィス移転は社内・社外ともに非公開に行われることが殆どです。そのためアットオフィスでは、基本的に訪問によるコンサルティングを行っておりますが、ご来店の相談も歓迎です。お一人おひとりに親身にご対応させて頂きたい為、要予約とさせて頂いております。ご来店の際は先ずは下記よりご予約下さい。
募集終了のテナント区画
| 階数 | 坪数 | 賃料 + 共益費 | 敷金/礼金敷金 礼金 | 検討 |
|---|---|---|---|---|
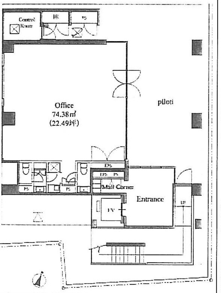
| 1階 | 22.49坪 (74.38m²) | 募集終了 | - | - |
| 2階 | 51.42坪 (169.98m²) | 募集終了 | - | - |
| 3階 | 51.42坪 (170.01m²) | 募集終了 | - | - |
| 5階 | 51.42坪 (170.01m²) | 募集終了 | - | - |
| 6階 | 51.42坪 (169.98m²) | 募集終了 | - | - |
| 6階 | 22.49坪 (74.34m²) | 募集終了 | - | - |
読込中...
番町/麹町/平河町エリアでメットライフ三番町ビルに似た条件の物件
読込中...
| 取扱様態 | 仲介 |
|---|---|
| 取扱会社 | 株式会社 アットオフィス |