※このサイトに記載がある賃貸条件は、敷金・保証金などの預かり金を除き、別途消費税がかかります。
物件情報
設備詳細
| 空調 | - |
|---|---|
| トイレ | - |
| 床仕様 | - |
| エレベータ | 1 基 |
| 駐車場設備 | - |
| その他 | 新耐震基準 |
百人町2丁目斉藤ビルの賃貸オフィス・事務所に関するお問い合わせ
百人町2丁目斉藤ビルについて
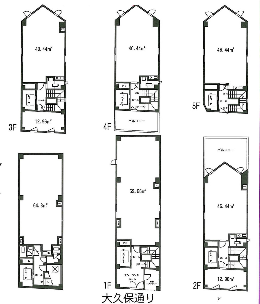
百人町2丁目斉藤は、新宿区百人町2丁目に位置する地上5階・地下1階建ての事業用建物です。JR総武・中央緩行線および中央線「大久保駅」から徒歩2分、JR山手線「新大久保駅」からも徒歩3分の距離にあり、複数路線が利用可能な立地です。駅からの距離が短いため、来訪者や従業員の移動もしやすい環境にあります。 建物にはエレベーターが1基設置されており、地上階と地下階の移動をサポートします。オフィスや店舗、サービス業の拠点など、事業用物件として多様な業種での利用を想定できます。また、周辺には商業施設や飲食店、住宅などが混在しており、地域の特性を活かした事業展開も検討しやすいエリアです。 建物の規模は地上5階・地下1階となっているため、各フロアごとの独立性を活かした利用や、複数部門でのフロア分割も可能です。新宿区内で事業拠点を探している法人や団体にとって、移動や運営面での利便を考えた空間設計がしやすい物件です。詳細はお問い合わせください。
百人町2丁目斉藤ビルのこだわり
自分で探すより問い合わせる方が早いことがあります
WEB非公開物件があるから
オーナー様のご希望により「WEBでは非公開」にしている物件があります。 それらはWEBでいくら検索しても見つかりません。 先ずは条件などお知らせ頂けましたら非公開物件含め ピッタリのオフィスをご提案させて頂きます。 無理なお勧めはしておりませんので、お気軽にお問い合わせください。
対面でのご相談も受け付けております
ご来店も歓迎です
オフィス移転は社内・社外ともに非公開に行われることが殆どです。そのためアットオフィスでは、基本的に訪問によるコンサルティングを行っておりますが、ご来店の相談も歓迎です。お一人おひとりに親身にご対応させて頂きたい為、要予約とさせて頂いております。ご来店の際は先ずは下記よりご予約下さい。
募集終了のテナント区画
| 階数 | 坪数 | 賃料 + 共益費 | 敷金/礼金敷金 礼金 | 検討 |
|---|---|---|---|---|
| B1階 | 95.05坪 (314.22m²) | 募集終了 | - | - |
読込中...
大久保/高田馬場エリアで百人町2丁目斉藤ビルに似た条件の物件
読込中...
| 取扱様態 | 仲介 |
|---|---|
| 取扱会社 | 株式会社 アットオフィス |