※このサイトに記載がある賃貸条件は、敷金・保証金などの預かり金を除き、別途消費税がかかります。
物件情報
設備詳細
| 空調 | - |
|---|---|
| トイレ | - |
| 床仕様 | OA対応床(フリーアクセス) |
| エレベータ | 2 基 |
| 駐車場設備 | - |
| その他 | 大型ビル / 新耐震基準 |
茅場町ファーストビルの賃貸オフィス・事務所に関するお問い合わせ
茅場町ファーストビルについて
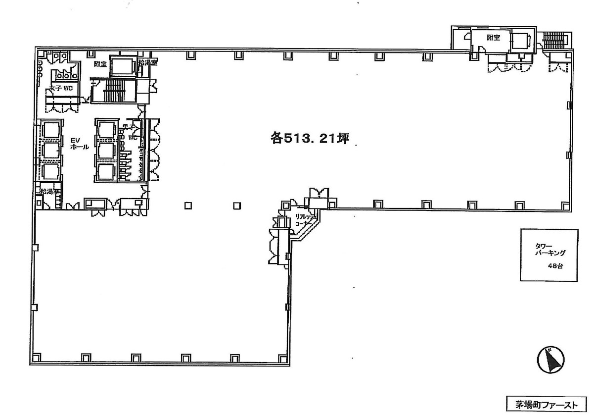
茅場町ファーストビルは、東京都中央区新川1丁目の絶好のロケーションに位置し、ビジネスの中心地にふさわしい洗練されたSOHOおよび事務所利用向けの大型マンションです。本物件は、2002年に新耐震基準に則って施工され、安心と信頼を兼ね備えた竣工物件です。これは、地震発生時の安全性を重視する企業にとって、選ばれる決定的な理由となります。 物件の立地には特筆すべき点があります。永代通りに面し、東京メトロ「茅場町」駅からわずか徒歩5分、「八丁堀」「水天宮前」駅から徒歩7分という距離にあり、ビジネスアクセスの利便性が抜群です。この立地条件は、従業員の通勤の利便性のみならず、顧客やパートナー企業との会合においても高い価値をもたらします。 ビルの設備についても、特筆すべき点が多数あります。基準階面積513坪、各階の天井高2900mmという開放的な空間は、創造性と生産性を高める働きやすい環境を提供します。また、エレベーターは計6基設置されており、混雑する時間帯でもスムーズな移動が可能です。さらに、敷地内には駐車場も完備されており、都心での車移動を必要とするビジネスにとって大きな利点となります。 茅場町ファーストビルは、ビジネスの成功を支えるための機能性と快適性を兼ね備えた物件です。安全性を確保した新耐震基準の施工、東京のビジネス中心地へのアクセスの良さ、開放的なオフィス空間、そして充実した設備は、企業の成長を促進し、従業員が満足する職場環境を作り出します。この物件は、ビジネスの機会を最大化し、企業価値を高めるための理想的な選択となり得ます。是非、ご検討ください。
自分で探すより問い合わせる方が早いことがあります
WEB非公開物件があるから
オーナー様のご希望により「WEBでは非公開」にしている物件があります。 それらはWEBでいくら検索しても見つかりません。 先ずは条件などお知らせ頂けましたら非公開物件含め ピッタリのオフィスをご提案させて頂きます。 無理なお勧めはしておりませんので、お気軽にお問い合わせください。
対面でのご相談も受け付けております
ご来店も歓迎です
オフィス移転は社内・社外ともに非公開に行われることが殆どです。そのためアットオフィスでは、基本的に訪問によるコンサルティングを行っておりますが、ご来店の相談も歓迎です。お一人おひとりに親身にご対応させて頂きたい為、要予約とさせて頂いております。ご来店の際は先ずは下記よりご予約下さい。
募集終了のテナント区画
| 階数 | 坪数 | 賃料 + 共益費 | 敷金/礼金敷金 礼金 | 検討 |
|---|---|---|---|---|
| 1階 | 287.53坪 (950.51m²) | 募集終了 | - | - |
| 1階 | 30坪 (99.17m²) | 募集終了 | - | - |
| 3階 | 513.21坪 (1696.56m²) | 募集終了 | - | - |
| 4階 | 513.21坪 (1696.56m²) | 募集終了 | - | - |
| 6階 | 513.21坪 (1696.56m²) | 募集終了 | - | - |
| 7階 | 513.21坪 (1696.56m²) | 募集終了 | - | - |
| 8階 | 513.21坪 (1696.56m²) | 募集終了 | - | - |
| 9階 | 513.21坪 (1696.56m²) | 募集終了 | - | - |
| 10階 | 513.21坪 (1696.56m²) | 募集終了 | - | - |
読込中...
近くのエリアで探してみる
茅場町/新川/八丁堀エリアで茅場町ファーストビルに似た条件の物件
読込中...
| 取扱様態 | 仲介 |
|---|---|
| 取扱会社 | 株式会社 アットオフィス |