※このサイトに記載がある賃貸条件は、敷金・保証金などの預かり金を除き、別途消費税がかかります。
物件情報
設備詳細
| 空調 | 個別空調 |
|---|---|
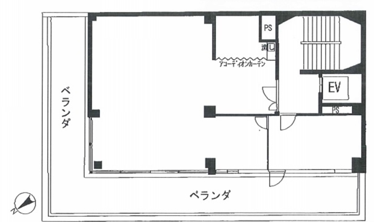
| トイレ | 男女別トイレ室外 |
| 床仕様 | - |
| エレベータ | 1 基 |
| 駐車場設備 | - |
| その他 | 24時間利用可 / 光ファイバー / オートロック / 機械警備 |
M・Oビルの賃貸オフィス・事務所に関するお問い合わせ
M・Oビルについて
MOビルは、東京都千代田区神田小川町3-6-10に位置する、1965年竣工の賃貸オフィスビルです。このビルは、その立地と設備の良さで、ビジネスの拠点として理想的な選択肢を提供します。神保町駅、小川町駅、淡路町駅、新御茶ノ水駅、御茶ノ水駅という5つの駅が徒歩10分圏内にあり、アクセスが非常に便利です。靖国通りに近く、周囲には飲食店やコンビニ、喫茶店などが豊富にあり、日々の業務に必要なものがすぐ手に入ります。 MOビルは5階建てで、各階には整形の良い区画が多く、レイアウト効率の良さが特徴です。このビルでは、男女別の室外トイレが設けられており、この規模のオフィスビルでは珍しい利点です。また、屋上が常時開放されているため、仕事の合間に外の空気を呼吸し、リフレッシュすることができます。エレベーターは1基設置されており、スムーズな移動をサポートします。 1階には2店舗の飲食店が入居しているため、来客時の待ち合わせや昼食にも便利です。ビルの前面は通りに面しており、視認性も良好です。近くには小川町郵便局があり、徒歩1分の距離には小諸そば駿河台店があります。 MOビルはその立地、設備、そして周辺環境の良さから、多様なビジネスニーズに応えることができます。アクセスの良さは従業員や来客にとって大きなメリットであり、周辺の充実した飲食店や便利な施設はビジネスライフをより快適にします。さらに、毎日の業務の中で小休止ができる屋上など、ユニークな設備も魅力の一つです。MOビルは、あなたのビジネスを次のレベルへと導くための最適な選択肢です。
M・Oビルのこだわり
自分で探すより問い合わせる方が早いことがあります
WEB非公開物件があるから
オーナー様のご希望により「WEBでは非公開」にしている物件があります。 それらはWEBでいくら検索しても見つかりません。 先ずは条件などお知らせ頂けましたら非公開物件含め ピッタリのオフィスをご提案させて頂きます。 無理なお勧めはしておりませんので、お気軽にお問い合わせください。
対面でのご相談も受け付けております
ご来店も歓迎です
オフィス移転は社内・社外ともに非公開に行われることが殆どです。そのためアットオフィスでは、基本的に訪問によるコンサルティングを行っておりますが、ご来店の相談も歓迎です。お一人おひとりに親身にご対応させて頂きたい為、要予約とさせて頂いております。ご来店の際は先ずは下記よりご予約下さい。
募集終了のテナント区画
| 階数 | 坪数 | 賃料 + 共益費 | 敷金/礼金敷金 礼金 | 検討 |
|---|---|---|---|---|
| 1階 | 30坪 (99.17m²) | 募集終了 | - | - |
| 2階 | 20.55坪 (67.82m²) | 募集終了 | - | - |
| 2階 | 12坪 (39.5m²) | 募集終了 | - | - |
| 3階 | 18.18坪 (60m²) | 募集終了 | - | - |
| 4階 | 5.44坪 (17.98m²) | 募集終了 | - | - |
| 4階 | 11.4坪 (37.68m²) | 募集終了 | - | - |
| 5階 | 28.55坪 (94.38m²) | 募集終了 | - | - |
読込中...
神田/秋葉原エリアでM・Oビルに似た条件の物件
読込中...
| 取扱様態 | 仲介 |
|---|---|
| 取扱会社 | 株式会社 アットオフィス |